Piso de dos habitaciones nuevo, primera planta, Kolan

€ 288.156
2
48 m²
1
1

Nota

Anuncio actualizado el 22/01/2026
Descripción

This description has been translated automatically and may not be accurate

referencia: 300411003-2056


MANDRE FIRST ROW TO THE SEA!

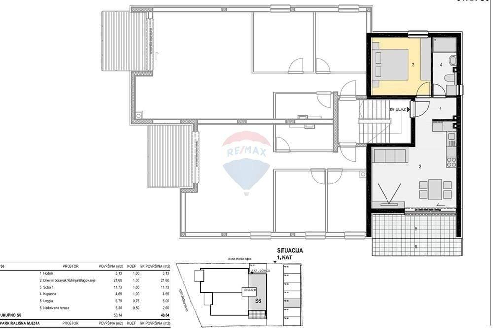
For sale is a luxurious apartment S6 on the first floor with a total area of 48.84 m!

The apartment is for sale as part of an exclusive new building project with 8 residential units. The apartments are arranged over three floors: ground floor, first and second floor.

Located in one of the most desirable locations in Mandre, these elegant and luxurious apartments offer top quality living space just a few steps from the sea. The distance to shops, restaurants and bars is only a few minutes.

The building is designed so that each apartment has an open view of the sea.

The apartment consists of TWO bedrooms, a kitchen, a living room/dining room, a bathroom with underfloor heating and a covered terrace with a beautiful sea view.

The apartment comes with one parking space.

This spacious apartment offers the perfect combination of comfort and functionality.
Mandre is a tourist center of the Kolan Municipality, located on the southern side of the island of Pag with a beautiful view of Silba and Olib and the islets of Maun and Škrda, which are full of coves and beautiful beaches. Located right on the coast, Mandre boasts a 3-kilometer-long pebble beach.

The planned completion of the works and the move-in is by summer.

More information on request.

+385 91 4444 271

ID CODE: 300411003-2056

RE/MAX Complete
Voditelj ureda
Mob: +385 914444271
Tel: +385 53 560 173
E-mail: complete@remax.hr
https://www.remax.hr/Complete
Si deseas más información puedes hablar con RE/MAX Complete.
Características
Tipología
Piso
Contrato
Venta
Planta
1 planta
Superficie
48 m²
Habitaciones
2
Dormitorios
1
Baños
1
Balcón
No
Terraza
No
Aire acondicionado
Individual, frío/calor
Información del precio
Precio
€ 288.156
Precio del m²
6.003 €/m²
Eficiencia energética
  • Estado

    Nuevo / En construcción
  • Aire acondicionado

    Individual, frío/calor
  • Certificación energética

    Exento
Descubre otros ángulos del inmueble
+13
Opciones adicionales

Contactar con el anunciante

O