Piso de cuatro habitaciones nuevo, tercera planta, Tar-Vabriga

€ 550.500
4
154 m²
2
3
Balcón
Terraza

Nota

Anuncio actualizado el 04/02/2026
Descripción

This description has been translated automatically and may not be accurate

referencia: 42352

ISTRIA, TAR Exclusive two-storey 3BR+LR apartment with a roof terrace and panoramic sea views

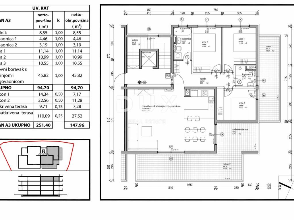
In the quiet settlement of Tara, just 350 m from the sea and a ten-minute walk to the well-maintained beaches, there is a modern new building of top quality with a total of 13 apartments. On the very third floor of the building is this unique two-storey penthouse, which extends over 147.96 m of living space and represents a combination of luxury, comfort and a superb view. APARTMENT DESCRIPTION - A3 First floor: * spacious entrance hall with a designated wardrobe * large open space area of as much as 45.82 m with a living room, kitchen and dining room, where there is also access to a spacious, partially covered terrace that stretches the width of the entire apartment. * three spacious bedrooms, one of which has access to a private balcony. * then two modern and comfortable bathrooms. Second floor: An internal staircase leads to a roof terrace of 110.09 m, which offers a panoramic and unobstructed view of the sea and the Istrian landscape. This space offers unlimited customization options - future owners can create their own oasis with a jacuzzi, summer bar, lounge area or a space for socializing and having fun with family and friends. ADDITIONAL INFORMATION - The building is built according to the highest construction standards, and the apartment is equipped with: * earthquake-resistant construction * three-layer PVC joinery with roller shutters and mosquito nets * electric underfloor heating in all rooms * air conditioning in each room * 10 cm of high-quality facade insulation (styrofoam and wool) * security doors * an elevator connecting all floors of the building * the apartment has two private parking spaces, included in the price of the apartment, while storage rooms are available for an additional purchase. ADDITIONAL: * Planned completion of construction and move-in: 12/2025. years * Ownership in order, natural person (1/1) Ideal opportunity for a luxurious family home, holiday apartment or investment with a high return through tourist rental. This apartment is not just real estate - it is a real lifestyle choice for those who want to enjoy luxury, comfort and spectacular sea views.

Dear clients, the agency commission is charged in accordance with the General Business Conditions: www.dux-nekretnine.hr/opci-uvjeti-poslovanja

ID CODE: 42352

Loren Kečan
Agent s licencom
Mob: +385 95 576 8337
Tel: +385 91 480 8808
E-mail: loren@dux-istra.com
www.dux-istra.com
Si deseas más información puedes hablar con Loren Kečan.
Características
Tipología
Piso
Contrato
Venta
Planta
3 planta
Ascensor
Superficie
154 m²
Habitaciones
4
Dormitorios
3
Baños
2
Balcón
Terraza
Aire acondicionado
Individual, frío/calor
Información del precio
Precio
€ 550.500
Precio del m²
3.575 €/m²
Eficiencia energética

Consumo de energia

A+

Descubre otros ángulos del inmueble
+2
Opciones adicionales

Contactar con el anunciante

O