Trilocale nuovo, secondo piano, Diklo - Puntamika, Zara

€ 614.000
3
136 m²
2
2
Balcone
Terrazzo

Nota

Annuncio aggiornato il 26/01/2026
Descrizione

This description has been translated automatically and may not be accurate

riferimento: S34

ATTICO IN ECCELLENTE NUOVA COSTRUZIONE

In vendita un attico di lusso in una nuova costruzione di alta qualità in una zona tranquilla di Zara, situato in un edificio con un totale di 6 appartamenti.

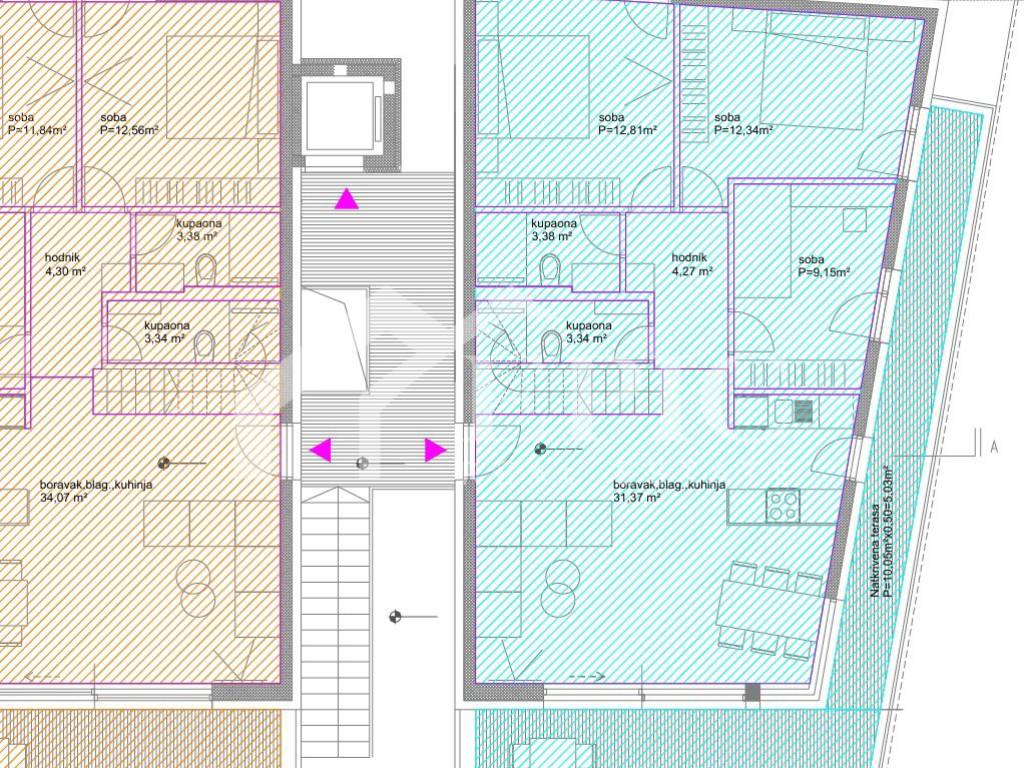
L'appartamento ha una pianta attentamente progettata che comprende un ampio spazio aperto con soggiorno e cucina, tre camere da letto, due bagni, una terrazza, un loggiato e una terrazza sul tetto con una vista che nessuna fotografia può rendere giustizia..
La superficie interna dell'appartamento è di 82,25 m2, mentre le terrazze coperte e il loggiato aggiungono altri 34 m2 di spazio per vivere e socializzare con famiglia e amici. L'appartamento è completato da una terrazza sul tetto di 75 m2 che con la sua vista non lascia indifferenti. L'immobile dispone inoltre di due posti auto della superficie complessiva di 27,50 m2 assegnati a questa unità abitativa. La superficie netta totale dell'immobile è di 136,53 m2.

Si tratta di un immobile di qualità, in una nuova costruzione moderna, realizzata con materiali da costruzione di prima scelta, caratteristica degli investitori affermati che portano a termine questo progetto, e contraddistinti da: infissi in alluminio con vetri tripli, zanzariere e tapparelle elettriche, riscaldamento a pavimento (pompa di calore), climatizzazione – sistema multi-split, porte blindate/antincendio, parquet e ceramica di alta qualità, ringhiere in vetro, pietra decorativa sulle terrazze...

A pochi minuti a piedi da tutti i servizi necessari (negozi, ristoranti, spiaggia) questo appartamento rappresenta un'opportunità ideale per chi cerca immobili rari e di valore sulla costa croata, come investimento con un ritorno sicuro, oppure per chi desidera una casa al mare.

La posizione è nota come meta ideale per vacanze e relax durante tutto l'anno, proprio grazie alla sua tranquillità e privacy riconosciute, senza rumori e affollamenti eccessivi.

La data prevista per il trasferimento è ottobre 2025.

Per qualsiasi domanda, informazioni necessarie o per organizzare una visita dell'appartamento, non esitate a contattarci!

Emil Perović
+385 98 63 36 17
info@epic-nekretnine.com
EPIC NEKRETNINE d.o.o.
Polačišće 4, Zadar
Se vuoi saperne di più, puoi parlare con Emil Perović.
Caratteristiche
Tipologia
Appartamento | Classe immobile media
Contratto
Vendita
Piano
2 piano
Piani edificio
2
Ascensore
Superficie
136 m²
Locali
3
Camere da letto
3
Bagni
2
Balcone
Terrazzo
Riscaldamento
Autonomo, a radiatori, alimentazione elettrica
Climatizzazione
Autonomo
Vista
Mare
Distanza dal mare
550 m
Altre caratteristiche
  • Giardino privato e comune
  • Porta blindata
Informazioni sul prezzo
Prezzo
€ 614.000
Prezzo al m²
4.515 €/m²
Efficienza energetica
  • Anno di costruzione

    2025
  • Stato

    Nuovo / In costruzione
  • Riscaldamento

    Autonomo, a radiatori, alimentazione elettrica
  • Climatizzatore

    Autonomo
Scopri ogni angolo dell'immobile
+27
Opzioni aggiuntive

Contatta l'inserzionista

Oppure