5.343 risultati 
case con giardino in vendita nella contea di Primorsko-goranska
- 1/15lite
 
1/28nuovolite
1/14nuovolite
1/13nuovolite
1/14lite
1/27lite
1/68nuovolite
1/13nuovolite
1/8nuovolite
1/33nuovolite
1/35lite
1/22nuovolite
1/15nuovolite
1/23nuovolite
1/86nuovolite
1/22nuovolite
1/14nuovolite
1/23nuovolite
1/19lite
1/22lite
1/5lite


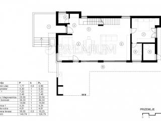
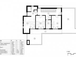
Appartamento€ 2.200.0004251 m²3T
Appartamento€ 630.000270 m²11
Appartamento€ 1.660.0004238 m²3T
Atticoprezzo su richiesta5302 m²32
1/19nuovolite
1/26nuovolite
1/23nuovolite
1/41nuovolite




















