Trgovina - Poslovni prostor za Najam

€ 1.500/mjesec
5
85 m²

Bilješka

Oglas ažuriran 13. 12. 2025.
Opis

referenca: 38534

OPATIJA, VOLOSKO- poslovni prostor 85,6m2 (poslovni prostor + apartman/ 2 apartmana) 50m od mora za najam

OPATIJA, VOLOSKO- poslovni prostor 85,6m2 (poslovni prostor + apartman/ 2 apartmana) 50m od mora za najam

Na vrhunskoj lokaciji u Opatiji --Volosko, nudimo svestran prostor od 85,6 m s dva ulaza, spreman za dovršiti gradnju 2 apartmana- s već izrađenim projektom! Moguća i poslovna ili mješovita namjena.
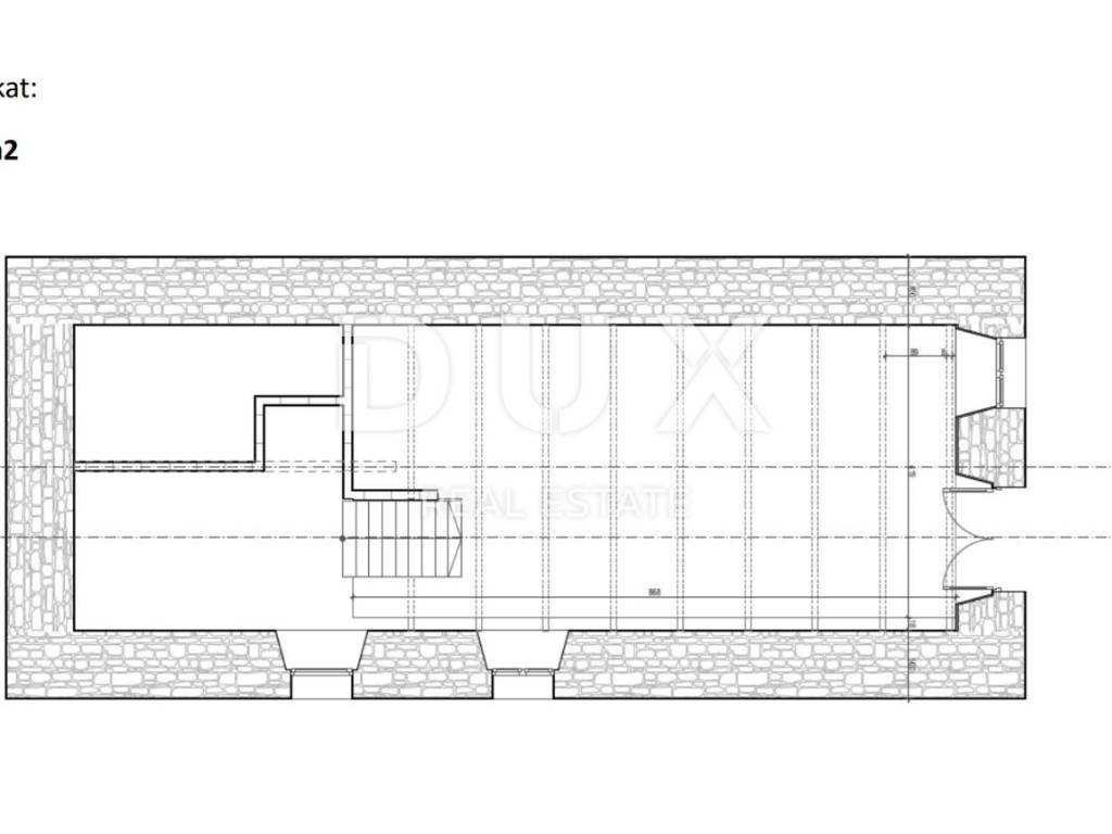
Ukupna površina prostora je 85,6 m, i to prizemlje: 51,1 m, i međukat: 34,5 m
Diobeni nacrt postoji.

TRENUTNO STANJE:
Visoki roh bau - svi zidovi u gips pločama
Novi priključak struje (11 kW) s kablom do bandere (mogućnost dokupiti do 27kw priključak)
Nova elektroinstalacija, vodovod i kanalizacija
Novi aluminijski prozori i vrata
Novi strop sa zvučnom izolacijom
Nova fasada

MOGUĆNOST UREĐENJA:
- Projekt za 2 apartmana (4+2) -+ studio apartman (projekt uključen u cijenu!)
- Poslovna namjena + studio apartman
- Jedan veći poslovni prostor

PREDNOSTI:
- Dva neovisna ulaza (s ulice i iz hodnika)
- Odvojeni priključci struje, vode i kanalizacije za svaki ulaz
- Visina međukatnog dijela: 2,96 m ispod, 1,56 m iznad - mogućnost spuštanja poda
- Pogled na ulicu, blizina mora

Svakako lijepa nekretnina za obiteljski život, ali pogodna i kao investicija u vidu turizma.

Nekretnina s koje ste pješice do mora za doslovno 1 minutu.

UNIKATNA NEKRETNINA SVAKAKO VRIJEDNA PAŽNJE NA ODLIČNOJ LOKACIJI!

VOLOSKO:
Volosko je manje ribarsko i turističko mjesto na Kvarneru, udaljeno oko 2 kilometra sjeverno od središta Opatije.
Volosko, šarmantno mjestašce prošarano uskim uličicama na kojima se igraju nasmiješena dječja lica, poznato je po vrhunskim restoranima i konobama koje svojim opojnim mirisima pozivaju goste na slastan obrok. Volosko je uvod u prekrasnu priču zvanu Lungomare, omiljenu opatijsku šetnicu koja vas vodi skroz do Lovrana. Kupači su redovni gosti ovog ribarskog mjesta jer ih tamo čeka uvijek opuštajuća plaža Črnikovica. Popijte kavu na prekrasnoj vološćanskoj rivi i promatrajte spretne ribare kako uplovljavaju u lučicu.
U vrijeme dok Opatija još nije postojala kao mondeno turističko odredište, Volosko je bilo sjedište kotara, trgovačka luka i administrativno-upravno središte. Danas je Volosko izgubilo tu svoju važnost, no ostala je čarobna privlačnost slikovitog primorskog mjesta, nepresušnog izvora inspiracija za umjetnike, utočišta svih onih koji traže oazu mira u uskim uličicama, uz šalicu kave na rivi, u jedinstvenom ambijentu ribarske lučice i velog i malog mula. Ima nečeg posebnog u pogledu na pučinu s vrha vološćanske rive: odavde se prema jugu otvara cijelo Jadransko more
Prolazeći uskim ulicama stare vološćanske jezgre, naići ćete na spomenik koji nas podsjeća da je ovdje, u kući na samom početku obalnog šetališta Lungomare, rođen Andrija Mohorovičić, veliki znanstvenik svjetskoga glas, otkrivač plohe diskontinuiteta koja dijeli Zemljinu koru od njezina plašta.
Volosko je danas i sinonim za dobru gastronomiju od tipičnih konoba i ribarnica u kojima se može uživati u domaćim specijalitetima, do vrhunskih restorana koji su svoje mjesto našli u najprestižnijim svjetskim vodičima za gurmane sve to nudi Volosko, i još mnogo toga.
Otkrijte gastronomske užitke, saznajte ribarske tajne, opustite se na terasi ugodnog kafića uz more. Dopustite da vas ponese šarm Voloskog!

OPATIJA:
Opatija, predivan obalni grad smješten na Jadranskom moru poznato je turističko odredište za turiste iz cijelog svijeta. Grad je okružen prekrasnom prirodom, u podnožju planine Učka. Iz nekretnina u Opatiji pruža se neprocjenjivi pogled na more i okolne otoke Krk i Cres. Opatija je okružena šarmantnim malenim gradovima s starim kućama smještenim u uskim uličicama bogate povijesti. Ulice grada Opatije čine nekretnine koje se ističu specifičnom arhitekturom te vilama koje datiraju iz habsburškog perioda. Veliki izbor plaža, kristalno čistog mora i raznovrsne turističke usluge ključni su faktori zbog kojih je Opatija svršena turistička destinacija prepoznata od strane susjednih zemalja kao odličan investicijski izbor. Cijene nekretnina na ovom području rastu, popunjenost iznajmljivanja je izvrsna što je uzrokovalo povrat investicije od 5% do 10% i privlačenje inozemnih ulagača.

Poštovani klijenti, agencijska provizija naplaćuje se u skladu s Općim uvjetima poslovanja:
www.dux-nekretnine.hr/opci-uvjeti-poslovanja

Poštovani potencijalni kupci, najmoprimci i zakupoprimci,
razgledavanje nekretnine koja vas zanima i za koju imate interes moguće je jedino i isključivo uz potpis Ugovora o posredovanju nekretnina, i to u svrhu zaštite vlasnika nekretnine od posjeta neregistriranih osoba, a i u skladu sa Zakonom o zaštiti podataka i Zakonom o posredovanju u prometu nekretnina.
Pri razgledavanju svake nekretnine potencijalni kupac/najmoprimatelj/ zakupoprimac je obavezan ispuniti i potpisati Ugovor o posredovanju nekkretnina u kojem je navedeno sljedeće:
- osnovni podaci o potencijalnom kupcu/najmoprimatelju/ zakupoprimacu
- osnovni podaci o agenciji
- iznos agencijske provizije
Agencijska provizija za kupca iznosi 3% (+25% PDV) od ukupno dogovorene kupoprodajne cijene.
Agencijska provizija za najmoprimca/zakupnika iznosi jednu mjesečnu najamninu/zakupninu (+ 25% PDV).

ID KOD AGENCIJE: 38534

Patrik Hrštić
Agent s licencom
Mob: +385 91 270 3979
Tel: +385 91 480 8808
E-mail: patrik@dux-nekretnine.hr
www.dux-opatija.com
Ako želite znati više, možete razgovarati s Patrik Hrštić.
Značajke
Ugovor
Najam
Površina
85 m²
Prostorije
5 prostorije
Informacije o cijeni
Cijena
€ 1.500/mjesec
Cijena po m²
18 €/m²
Pojedinosti o troškovima
Polog
Nije navedeno
Energetska učinkovitost
  • Klima uređaj

    Samostalno, hlađenje/grijanje
Otkrijte svaki kutak nekretnine
+15
Dodatne mogućnosti

Obratite se oglašivaču

Ili