1/22


Trosobni stan 140 m², Novigrad
Novigrad€ 360.000
Oglas ažuriran 08. 05. 2026.
Značajke
- Vrsta
- Stan
- Ugovor
- Prodaja
- Kat
- 1
- Katovi zgrade
- 2
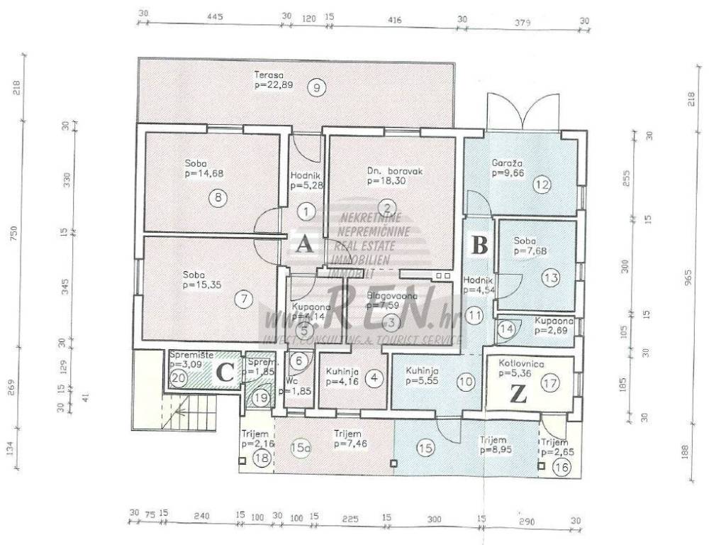
- Površina
- 140 m² | poslovni prostor 170 m²
- Prostorije
- 3
- Kupaonice
- 2
- Garažno mjesto, parkirna mjesta
- 1 na zajedničkom parkingu
Detalji površine
Stambeni prostor
- Kat
- 1
- Površina
- 140,0 m²
- Koeficijent
- 100%
- Vrsta površine
- Glavni
- Komercijalna površina
- 140,0 m²
Zemljište
- Kat
- Prizemlje
- Površina
- 30,0 m²
- Koeficijent
- 100%
- Vrsta površine
- Dodatno
- Komercijalna površina
- 30,0 m²
Informacije o cijeni
- Cijena
- € 360.000
- Cijena po m²
- 2.118 €/m²
Energetska učinkovitost
Godina izgradnje
1980Energetski certifikat
Neklasificirano
Otkrijte svaki kutak nekretnine
Dodatne mogućnosti