map icon

Stan drugi kat, Medulin

Medulin
€ 410.000
82 m²
2
2

Bilješka

Oglas ažuriran 22. 12. 2025.
Opis

referenca: 2396

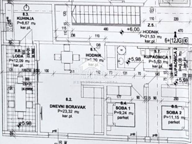
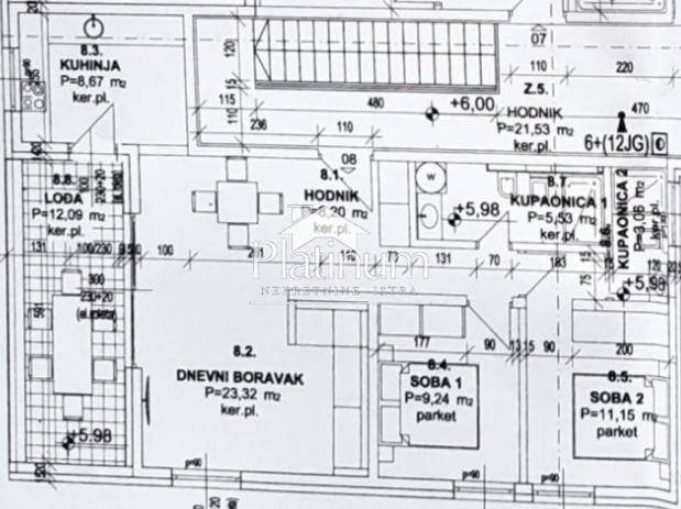
Istra, Banjole, apratman na drugom katu, novogradnja


Banjole, prodaje se apartman na drugom katu ukupne korisne površine površine 78,24m2 koji se sastoji od hodnika, dvije kupaonice, dvije sobe, dnevnog boravka, kuhinje i lođe te pripadaka: parkirnog mjesta. Mogućnost kupnje ostave i posebne garaže 14,69m2.

Kvalitetna stolarija, keramika Lamborgini i sanitarije, u sobama troslojni parket. Grijanje/hlađenje klima uređaji Mitsubishi i električno podno grijanje.

Zgrada je dovršena, etažirana.

Vlasništvo 1/1

Ako želite investirati novac u kvalitetnu nekretninu za iznajmljivanje ili vlastiti boravak ovo je prilika za vas.

Nema poreza na promet nekretnina od 3%.

kontakt 00385951987708
Značajke
Vrsta
Stan
Ugovor
Prodaja
Kat
2 kat
Površina
82 m²
Kupaonice
2
Garažno mjesto, parkirna mjesta
1 na zajedničkom parkingu
Informacije o cijeni
Cijena
€ 410.000
Cijena po m²
5.000 €/m²
Energetska učinkovitost
  • Energetski certifikat

    Neklasificirano
Otkrijte svaki kutak nekretnine
+17
Dodatne mogućnosti

Obratite se oglašivaču

Ili