1/16


Stan prvi kat, Fažana
Fažana€ 277.000
Oglas ažuriran 24. 02. 2026.
Opis
referenca: 3094
ISTRA, FAŽANA PEROJ, NOVI STANOVI NA EXTRA POZICIJI SA GARAŽOM
ISTRA FAŽANA PEROJ
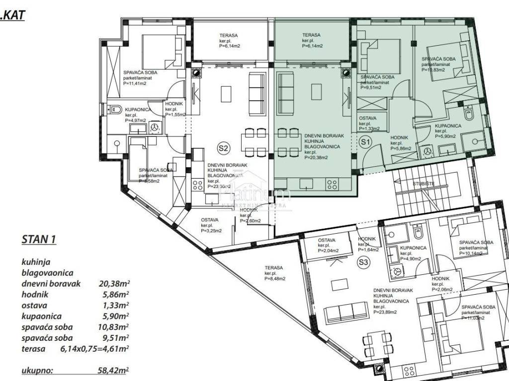
Prodajemo stanove na 1. i 2. katu sa pripadajućim garažama (16m2-25m2).
Stanovi su površine 59m2 i 60m2, te se sastoje od hodnika, kupaone, dnevnog boravka, kuhinje sa blagovaonom i komotne terase sa pogledom na more.
prodajemo prekrasne stanove u izgradnji na top lokaciji.
Zgrada se sastoji od samo 6 prekrasnih stanova izgrađeni vrlo kvalitetno, ugrađeni materijali su na najvišem nivou kvalitete.
Svi stanovi imaju ugrađeno podno grijanje te inverter klime za grijanje i hlađenje.
Mogućnost izbora ugradnje materijala podova (laminat i pločice 1. klase).
Protuprovalna vrata marke DIERRE. Električne roletne na svim prozorima.
500M OD MORA!!!
Završetak gradnje kraj 2025 godine.
CIJENA SA PDV-om
PRIMAMO REZERVACIJE STAN S1 (60M2) + GARAŽA G2 (18M2)
INFO NA 00385911608456
Značajke
- Vrsta
- Stan
- Ugovor
- Prodaja
- Kat
- 1 kat
- Površina
- 59 m²
- Kupaonice
- 1
- Garažno mjesto, parkirna mjesta
- 1 u garaži
Informacije o cijeni
- Cijena
- € 277.000
- Cijena po m²
- 4.695 €/m²
Energetska učinkovitost
Energetski certifikat
Neklasificirano
Otkrijte svaki kutak nekretnine
Dodatne mogućnosti