Građevinsko zemljište za Prodaja

€ 300.000
416 m²

Bilješka

Oglas ažuriran 03. 03. 2026.
Opis

referenca: 1512966

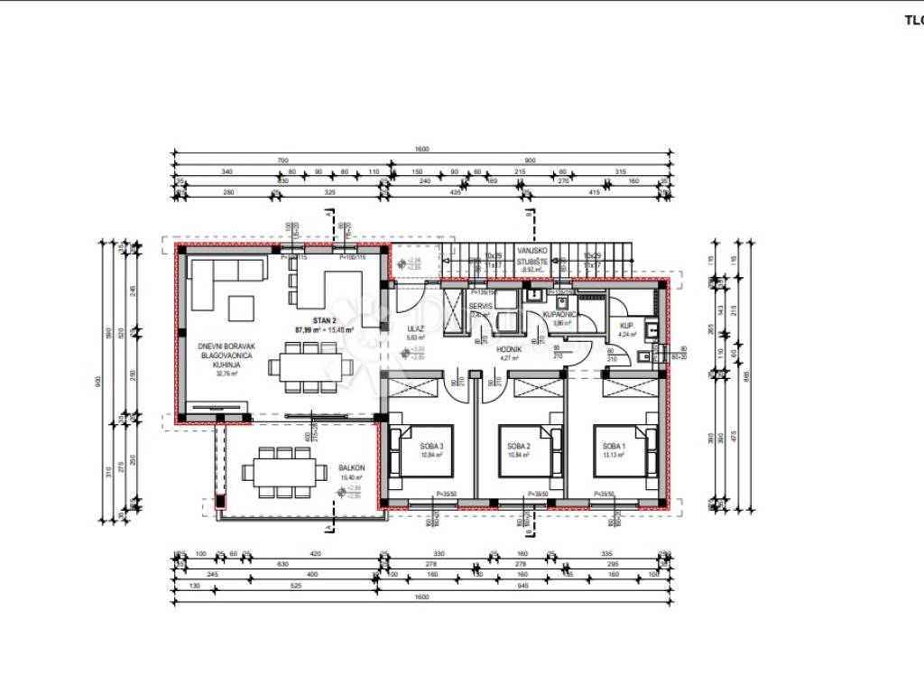
Od ideje do realizacije građevinsko zemljište s projektom u Crikvenici

GRAĐEVINSKO ZEMLJIŠTE S PROJEKTOM CRIKVENICA | ODLIČNA PRILIKA

U ponudi je građevinsko zemljište površine 416 m smješteno u Crikvenici, s gotovim projektom za izgradnju obiteljske kuće s dva stana idealna prilika za sve koji žele preskočiti dugotrajne faze planiranja i odmah nastaviti započeto.
Ova nekretnina predstavlja gotovo rješenje: projekt je već osmišljen, prilagođen lokaciji i spreman za realizaciju, što budućem vlasniku omogućuje značajnu uštedu vremena, energije i troškova. Savršeno za obiteljski život, ali i kao odlična investicija za najam ili kombinaciju stanovanja i zarade.
Izvrsna prilika za privatne investitore i obitelji
Zemljište nudi savršen balans između privatnosti i funkcionalnosti, a već izrađen projekt omogućuje da se cijeli proces izgradnje znatno ubrza i pojednostavi.

Nekretnina za one koji žele siguran i promišljen korak bez početka od nule.
Ovdje ne kupujete samo zemljište, već jasnu viziju i spreman put do realizacije.

Za dodatne informacije i uvid u projekt slobodno se javite:
Krešimir Vidaković, 099/444-3220 ili e-mail: kresimir.vidakovic@dogma-nekretnine.com

ID KOD AGENCIJE: 1512966

Krešimir Vidaković
Asistent u posredovanju
Mob: 099/444-3220
Tel: 031/205-093
E-mail: kresimir.vidakovic@dogma-nekretnine.com
www.dogma-nekretnine.com

Vedrana Čočić
Asistent u posredovanju
Mob: 091/622-2262
Tel: 031/205-093
E-mail: vedrana.cocic@dogma-nekretnine.com
www.dogma-nekretnine.com
Ako želite znati više, možete razgovarati s Krešimir Vidaković.
Značajke
Ugovor
Prodaja
Vrsta
Građevinsko zemljište
Površina
416 m²
Informacije o cijeni
Cijena
€ 300.000
Cijena po m²
721 €/m²
Otkrijte svaki kutak nekretnine
+4
Dodatne mogućnosti

Obratite se oglašivaču

Ili