Građevinsko zemljište za Prodaja

€ 60.000
1.204 m²

Bilješka

Oglas ažuriran 12. 05. 2026.
Opis

referenca: 44321

RAVNA GORA, STARI LAZ građevinsko zemljište 1.204 m za izgradnju dvije kuće za odmor s bazenom

RAVNA GORA, STARI LAZ građevinsko zemljište 1.204 m za izgradnju dvije kuće za odmor s bazenom

U Duxu izdvajamo priliku građevinsko zemljište površine 1.204m2 namijenjeno stambenoj izgradnji.

Prekrasno, atraktivno zemljište na izuzetnoj lokaciji u Ravnoj Gori, idealno za gradnju kuća za odmor.
Zemljište se nalazi svega nekoliko metara od glavne prometnice dovoljno blizu za jednostavan pristup, ali dovoljno udaljeno da osigurava mir i tišinu bez buke.

Ukupna površina iznosi 1.204m.

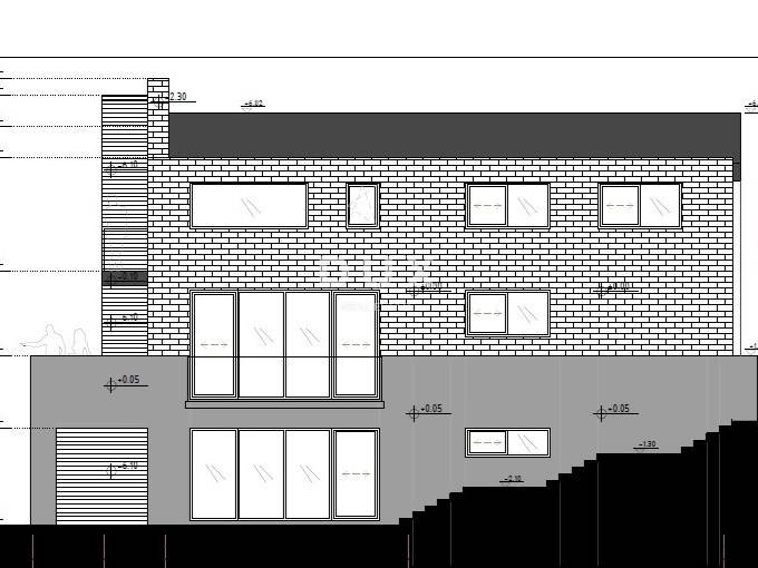
Uz zemljište dolazi i idejni projekt koji uključuje:
- suteren s unutarnjim bazenom i prostorom za zabavu (play room)
- prizemlje s dnevnim prostorijama
- kat s tri spavaće sobe

Naime, parcela je ravna, pravilnog oblika i optimalno iskorištena.
Jedna je od najljepših lokacija u ovom dijelu Ravne Gore mirna, prirodna okolina, a opet blizu svih važnijih prometnica i sadržaja.

Struja i voda nalaze se 50 m od parcele.

Za dogovaranje posjete nekretnine nazovite agenta s povjerenjem - konzultacija na njemačkom jeziku moguća.

Poštovani klijenti, agencijska provizija naplaćuje se u skladu s Općim uvjetima poslovanja:
www.dux-nekretnine.hr/opci-uvjeti-poslovanja

ID KOD AGENCIJE: 44321

Marko Šutanovac
Agent s licencom
Mob: +385 91 189 8332
Tel: +385 91 480 8808
E-mail: marko@dux-nekretnine.hr
www.dux-opatija.com
Ako želite znati više, možete razgovarati s Marko Šutanovac.
Značajke
Ugovor
Prodaja
Vrsta
Građevinsko zemljište
Površina
1.204 m²
Informacije o cijeni
Cijena
€ 60.000
Cijena po m²
50 €/m²
Otkrijte svaki kutak nekretnine
+23
Dodatne mogućnosti

Obratite se oglašivaču

Ili