Četverosobni stan novo, suteren, Kostrena

€ 617.400
4
147 m²
2
1
Da
Balkon
Terasa

Bilješka

Oglas ažuriran 16. 01. 2026.
Opis

referenca: 44549

RIJEKA, KOSTRENA - ekskluzivan dvoetažni stan 147m2 novogradnja s prekrasnim pogledom na more i bazenom + okućnica 151.75m2 - S1-C

RIJEKA, KOSTRENA - ekskluzivan dvoetažni stan 147m2 novogradnja s prekrasnim pogledom na more i bazenom + okućnica 151.75m2 - S1-C

U ponudi imamo nekretninu koja vam pruža moderni dizajn i eleganciju, komfor i vrhunsku opremu, a nalazi se na lijepoj mirnoj lokaciji nedaleko javnog prijevoza, škole, vrtića, trgovačkih centara te desetak minuta vožnje od Rijeke.
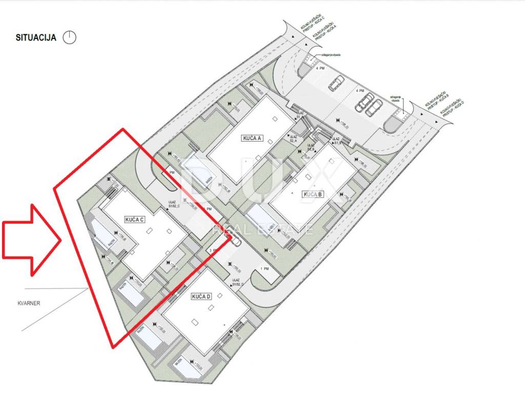
Kompleks od 4 stambene zgrade s ukupno 8 stanova nalazi se sjeverno od jadranske magistrale na području Zelene Kostrene odakle se pruža prekrasan pogled na
cijeli Kvarner.
U neposrednoj blizini nalazi se 10 kilometara uređenih pješačkih, biciklističkih i trim staza koje prolaze najvišim dijelovima Kostrene od vrha Solin do vrha Sopalj.
Pristup kućama uređen je s gornje ceste gdje se planira uređenje i proširenje postojeće prometnice.
Svakoj kući pripadaju četiri vanjska parkirna mjesta, odnosno dva parkirna mjesta po stambenoj jednici.
Svaka kuća sastoji se od dva stana.
Stanovi na gornje dvije parcele smješteni su jedan iznad drugoga, dok su na donje dvije parcele smješteni jedan pored drugoga.
Svakom stanu pripada dio okućnice.

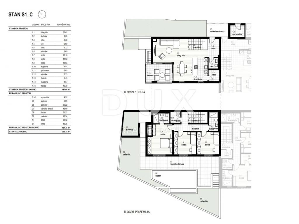
KUĆA C stan S1 - C:
STAMBENI PROSTORI:
- dnevni boravak / blagovaona
36,02
- kuhinja
9,59
- izba
3,38
- WC
2,69
- ulaz
5,72
- stubište
5,65
- soba
18,18
- soba
13,58
- soba
13,58
- kupaona
4,44
- praonica / spremište
3,03
- stubište
7,73
- hodnik
6,45
- kupaona
4,57
- terasa
12,39
STAMBENI PROSTORI UKUPNO:
147,00 m

PRIPADAJUĆI PROSTORI
- spremište
4,57
- zelenilo
9,65
- zelenilo
26,22
- vanjska terasa
45,00
- bazen
21,22
- zelenilo
18,24
- parkirno mjesto 1
13,50
- parkirno mjesto 2
13,35
PRIPADAJUĆI PROSTORI UKUPNO:
151,75 m

STAN S1-C UKUPNO:
298,75 m

Ovaj luksuzan stan je dizajniran za maksimalnu udobnost.

OPREMA:
Kuća u kojoj se stan nalazi je kvalitetno građena i luksuzno opremljena, svi ugrađeni materijali, podne i zidne obloge su po najvišim standardima.
- fasadna izolacija debljine 10cm
- podno grijanje - dizalice topline
- vrhunska aluminijska stolarija.

Stan ima pripadajuću okućnicu i 2 parkirna mjesta.

CIJENA:
Navedena cijena se odnosi na kompletno završen objekt po principu ključ u ruke, bez namještaja.
U cijenu je uključen PDV, kupac je oslobođen plaćanja poreza na promet nekretnina.
U slučaju kupnje na firmu registriranu u Hrvatskoj moguć je povrat kompletnog PDV-a nakon kupoprodaje.

Čisto i uredno vlasništvo.
Svakako lijepa nekretnina za luksuzan obiteljski život, ali pogodna i kao investicija u vidu elitnog turizma.

UNIKATNA NEKRETNINA SVAKAKO VRIJEDNA PAŽNJE NA ODLIČNOJ LOKACIJI!!!

KOSTRENA
Kostrena je staro popularno primorsko mjesto, prvi puta spomenuto početkom 15. stoljeća. Prvu općinsku samostalnost stekla je 1874. godine, ali ju je vrlo kratko zadržala, svega dvije godine. Podijeljena je na dva dijela, Sv. Luciju i Sv. Barbaru, prema imenima dviju crkava koje postoje na njezinom području.
Kostrena je smještena u neposrednoj blizini grada Rijeke, uokvirena uvalom Martinšćica i Bakarskim zaljevom. Kostrenski poluotok dužine je nekih 10 kilometara i blago se spušta prema morskoj obali. Cijelom njegovom dužinom smještene su predivne plaže koje tijekom ljeta posjećuje na tisuće kupača. Najpoznatije i najposjećenije su one u uvali Žurkovo, zatim Smokvinovo, Svežanj, Spužvina, Podražica, Nova voda i Perilo.
Kostrena se sastoji od dvadesetak naselja, od kojih su mnoga dobivala imena prema obiteljima, a danas najviše stanovnika broje Vrh Martinšćice, Glavani, Sv. Lucija, Rožmanići,Doričići i Paveki.
Karakteristično krško područje s mediteranskim biljem i poznatim kostrenskim gromačama, te blaga klima koja ponekad popusti pred jakim naletima bure, obilježja su ovoga kraja.

Poštovani klijenti, agencijska provizija naplaćuje se u skladu s Općim uvjetima poslovanja:
www.dux-nekretnine.hr/opci-uvjeti-poslovanja

Poštovani potencijalni kupci, najmoprimci i zakupoprimci,
razgledavanje nekretnine koja vas zanima i za koju imate interes moguće je jedino i isključivo uz potpis Ugovora o posredovanju nekretnina, i to u svrhu zaštite vlasnika nekretnine od posjeta neregistriranih osoba, a i u skladu sa Zakonom o zaštiti podataka i Zakonom o posredovanju u prometu nekretnina.
Pri razgledavanju svake nekretnine potencijalni kupac/najmoprimatelj/ zakupoprimac je obavezan ispuniti i potpisati Ugovor o posredovanju nekkretnina u kojem je navedeno sljedeće:
- osnovni podaci o potencijalnom kupcu/najmoprimatelju/ zakupoprimacu
- osnovni podaci o agenciji
- iznos agencijske provizije
Agencijska provizija za kupca iznosi 3% (+25% PDV) od ukupno dogovorene kupoprodajne cijene.
Agencijska provizija za najmoprimca/zakupnika iznosi jednu mjesečnu najamninu/zakupninu (+ 25% PDV).

ID KOD AGENCIJE: 44549

Patrik Hrštić
Agent s licencom
Mob: +385 91 270 3979
Tel: +385 91 480 8808
E-mail: patrik@dux-nekretnine.hr
www.dux-opatija.com

Rene Nemarnik
Agent s licencom
Mob: +385 91 737 5328
Tel: +385 91 480 8808
E-mail: rene@dux-nekretnine.hr
www.dux-nekretnine.hr
Ako želite znati više, možete razgovarati s Patrik Hrštić.
Značajke
Vrsta
Stan
Ugovor
Prodaja
Kat
1
Dizalo
Da
Površina
147 m² | poslovni prostor 298 m²
Prostorije
4
Spavaće sobe
3
Kupaonice
2
Balkon
Da
Terasa
Da
Klimatizacija
Samostalno, hlađenje/grijanje
Detalji površine

Stambeni prostor

Kat
1
Površina
147,0 m²
Koeficijent
100%
Vrsta površine
Glavni
Komercijalna površina
147,0 m²

Zemljište

Kat
Prizemlje
Površina
151,0 m²
Koeficijent
100%
Vrsta površine
Dodatno
Komercijalna površina
151,0 m²
Informacije o cijeni
Cijena
€ 617.400
Cijena po m²
2.072 €/m²
Energetska učinkovitost

Potrošnja energije

A+

Otkrijte svaki kutak nekretnine
+11
Dodatne mogućnosti

Obratite se oglašivaču

Ili