Dvosobni stan novo, prvi kat, Žnjan - Stobreč, Split

€ 424.000
2
71 m²
1
1
Balkon

Bilješka

Oglas ažuriran 20. 01. 2026.
Opis

referenca: EK-2403515

DVOSOBAN STAN S PM / NOVOGRADNJA***

Posredujemo u prodaji novog stambenog objekta u Splitu, predio Žnjan-Pazdigrad.

Manja stambena zgrada sastoji se od 6 stambenih jedinica.
Katnost objekta: Prizemlje i dva kata (P+2K)

Sama lokacija objekta koja je na frenkvetnoj lokaciji, moderan oblik zgrade,
kao i bogata hortikultura oko samog objekta s uređenim parking prostorom pod rampom.

Odlična lokacija, u neposrednoj blizini svih ostalih sadržaja potrebnih za lagodan život.
Zgradu oblikuju sive i bijele boje, ali i moderni i luksuzni detalji.

-visoki standard gradnje
-višekomorna stolarija s troslojnim ostakljenjem
-ulazna protuprovalna + protupožarna vrata
-klimatizacijski sustav
-završne obloge keramike 1 klase
-parlafon s videokamerom
-podno grijanje u cijelom stanu
-parking mjesto uključeno u cijenu**

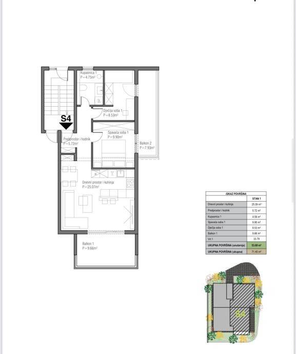
Stan S4 je položen na prvom katu objekta, sastoji se od dvije spavaće sobe (s izlazom na balkon), ulaznog prostora, kupaonice, te dnevnog boravka, kuhinje i blagavaonice u povezanoj cjelini s izlazom na balkon orjentiran prema jugu.
Sastoji se od unutarnjeg prostora veličine 53.8 m2 + balkon južni 9.66 m2 balkon istočni 7.93 m2 = Ukupno 71.39 m2 (Obračunski: 62.5 m2)

CIJENA STANA: 424.000 €
Parking mjesto uključeno u cijenu***

KONTAKT: +385 95 1991 076 -BRUNO

Modus nekretnine
Tel: +385 95 1991 076
Email: modusnekretnine@gmail.com
Ako želite znati više, možete razgovarati s Bruno Krolo.
Značajke
Vrsta
Stan | Puno vlasništvo | Luksuzna nekretnina
Ugovor
Prodaja | Prihodovna nekretnina
Kat
1
Katovi zgrade
2
Površina
71 m²
Prostorije
2
Spavaće sobe
2
Kuhinja
Otvorena kuhinja
Kupaonice
1
Namješteno
Ne
Balkon
Da
Garažno mjesto, parkirna mjesta
1 na zajedničkom parkingu
Grijanje
Samostalno, podno grijanje, napajanje električnom energijom
Klimatizacija
Samostalno, hlađenje/grijanje
Pogled
More
Ostale karakteristike
  • Orijentacija prema van
  • Protuprovalna vrata
  • Video portafon
Detalji površine

Stambeni prostor

Kat
1
Površina
71,3 m²
Koeficijent
100%
Vrsta površine
Glavni
Komercijalna površina
71,3 m²
Informacije o cijeni
Cijena
€ 424.000
Cijena po m²
5.972 €/m²
Energetska učinkovitost
  • Godina izgradnje

    2025
  • Stanje

    Novo / U izgradnji
  • Grijanje

    Samostalno, podno grijanje, napajanje električnom energijom
  • Klima uređaj

    Samostalno, hlađenje/grijanje
Otkrijte svaki kutak nekretnine
+11
Dodatne mogućnosti

Obratite se oglašivaču

Ili