Višeobiteljska kuća Kaštelir, Kaštelir-Labinci, Kaštelir-Labinci

€ 898.750
4
186 m²
3
Ne

Bilješka

Oglas ažuriran 30. 04. 2026.
Opis

referenca: 84

Luksuzna dvojna kuća vrhunske kvalitete sa panoramskim pogledom

Na izuzetno atraktivnoj i traženoj lokaciji smjestila se ova stilski upečatljiva dvojna kuća sa bazenom i pogledom na more koji se pruža sa obje etaže.

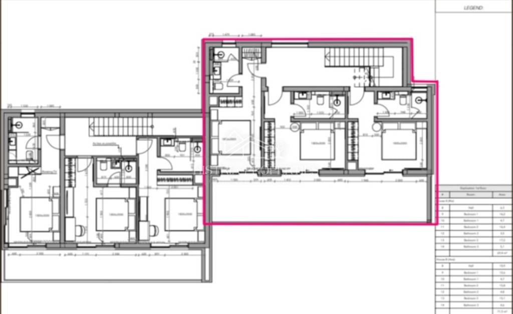
Prizemlje se sastoji od otvorenog dnevnog boravka, kuhinje i blagovaone sa velikim staklenim stijenama, povezanim sa natkrivenom terasom, grijanim bazenom i sunčalištem oko njega. U ovoj fazi gradnje investitor je ostavio mogućnost spajanja i postavljanja staze između oba objekta, ukoliko bi se netko odlučio na kupnju dvaju fantastičnih kuća sa izuzetnim potencijalom za objedinjenje što bi zaokružilo cijelu priču.
Na ovoj etaži se nalazi još gostinjski toalet, tehnička soba, kotlovnica i vanjski toalet.
Na katu se nalaze 3 spavaće sobe sa vlastitim kupaonicama te izlazima na terasu sa koje se proteže umirujući pogled na prekrasne zalaske sunca i more.

U cijeloj kući biti će postavljeno podno grijanje uz klima uređaje za dodatno grijanje i hlađenje.

Vila će biti građena izrazitom kvalitetnim materijalima te se može opremiti dizajnerskim namještajem po mjeri.

U ovoj fazi postoji mogućnost dogovora o završnom uređenju te konačnoj cijeni, uz mogućnost kupnje obje kuće sa velikim potencijalom za turistički posao ili stvaranje vlastitog imanja u centru ovog dobro poznatog istarskog mjesta.
Za sve dodatne informacije o ovome projektu stojimo Vam na raspolaganju.

Razgledati nekretninu moguće je isključivo uz potpisan ugovor o posredovanju koji je temelj za daljnje postupanje u vezi s kupoprodajom i naplatom provizije sukladno Zakonu o posredovanju u prometu nekretnina.
U slučaju kupoprodaje posrednička naknada iznosi 3% bez PDV-a te se naplaćuje od kupca i prodavatelja prilikom sklapanja predugovora/ugovora o kupoprodaji.

ID CODE: 84

Sanel Budimlić
Agent s licencom
Mob: +385 99 205 2733
Tel: +385 99 205 2733
E-mail: sanel@histriaproperties.com
www.histriaproperties.com
Značajke
Vrsta
Višeobiteljska kuća
Ugovor
Prodaja
Katovi zgrade
1
Dizalo
Ne
Površina
186 m²
Prostorije
4
Spavaće sobe
3
Kupaonice
3
Balkon
Ne
Terasa
Ne
Garažno mjesto, parkirna mjesta
2 na zajedničkom parkingu
Grijanje
Samostalno, zrak
Klimatizacija
Samostalno, hlađenje/grijanje
Informacije o cijeni
Cijena
€ 898.750
Cijena po m²
4.832 €/m²
Energetska učinkovitost

Potrošnja energije

A

Tlocrt
Otkrijte svaki kutak nekretnine
+8
Dodatne mogućnosti

Obratite se oglašivaču

Ili