Obiteljska kuća Donji Karin, Benkovac, Benkovac

€ 278.000
5+
150 m²
3
Ne
Terasa

Bilješka

Oglas ažuriran 22. 01. 2026.
Opis

referenca: 112

ZADAR, DONJI KARIN - Samostojeća kuća s tri apartmana i pogledom na more

ZADAR, DONJI KARIN - Samostojeća kuća s tri apartmana i pogledom na more

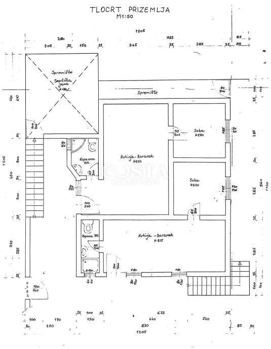
Prodaje se potpuno namještena, samostojeća kuća s tri odvojena apartmana, prostranim terasama i prekrasnim pogledom na more. Stambene površine 150 m², smještena na parceli od 214 m², nekretnina se sastoji od tri zasebno funkcionalne apartmanske jedinice koje je, prema želji budućih vlasnika, moguće povezati u jednu stambenu cjelinu. U prizemlju se nalaze dva apartmana, od kojih svaki ima dnevni boravak s kuhinjom, jednu spavaću sobu te kupaonicu s toaletom. Na katu je smješten veći apartman koji obuhvaća dnevni boravak s kuhinjom, dvije spavaće sobe te kupaonicu s toaletom. Uz kuću se prostire uređena okućnica, a nekretnini pripadaju i velike ostave, uključujući dva spremišta iza kuće te tavan s posebnim pristupom. Vanjski roštilj i prostrane terase pružaju idealan prostor za druženje i opuštanje u mirnom okruženju. Nekretnina je smještena na povišenom položaju, pri čemu se ispred nalazi samo jedna kuća, što omogućuje neometan pogled na more. Udaljena je svega nekoliko minuta hoda od obale, kao i od kafića i restorana. Nekretnina je potpuno namještena i odmah useljiva, što je čini iznimno pogodnom kako za stalno stanovanje, tako i za turističko poslovanje. Ispred objekta nalazi prostran javni parking za veći broj automobila, što predstavlja značajnu prednost na ovoj lokaciji.

Kuća je nedavno obnovljena, pri čemu su izvedeni novi krov, fasada i većina prozora. Građena je klasičnom i kvalitetnom gradnjom od cigle i armiranog betona, s toplinskom izolacijom vanjskih zidova. Unutarnji prostori pretežno su obloženi keramikom, dok je vanjski dio objekta uređen ukrasnim kamenom, što doprinosi autentičnom mediteranskom izgledu. Nekretninu je moguće etažirati, a već je osigurano odvojeno brojilo električne energije za prizemlje i kat.

Nekretnina se nalazi u malom i mirnom naselju Donji Karin, smještenom u zaštićenom zaljevu Karinskog mora. Područje je poznato po ugodnim plažama, čistom i toplom moru te opuštajućem okruženju idealnom za obiteljski odmor. Kuća je udaljena svega 150 metara od mora, zračna luka Zadar nalazi se na približno 25 km udaljenosti, dok je centar Zadra udaljen 38 km. Zahvaljujući blizini rijeke Karišnice i očuvanoj prirodi, Donji Karin nudi jedinstven spoj mediteranskog ugođaja, mira i prirodnih ljepota.

Poštovani klijenti, posrednička naknada naplaćuje se u skladu s Općim uvjetima poslovanja
https://costa-nekretnine.hr/o-nama/opci-uvjeti-poslovanja

ID CODE: 112

Costa Nekretnine d.o.o.
Mob: +385 98 923 9522
Tel: +385 99 864 9125
E-mail: info@costa-nekretnine.hr
www.costa-nekretnine.hr
Značajke
Vrsta
Obiteljska kuća
Ugovor
Prodaja
Katovi zgrade
1
Dizalo
Ne
Površina
150 m²
Prostorije
5+
Spavaće sobe
4
Kupaonice
3
Balkon
Ne
Terasa
Da
Grijanje
Samostalno, zrak
Klimatizacija
Samostalno, hlađenje/grijanje
Informacije o cijeni
Cijena
€ 278.000
Cijena po m²
1.853 €/m²
Energetska učinkovitost
  • Godina izgradnje

    1966
  • Grijanje

    Samostalno, zrak
  • Klima uređaj

    Samostalno, hlađenje/grijanje
  • Energetski certifikat

    Neklasificirano
Tlocrt
Otkrijte svaki kutak nekretnine
+22
Dodatne mogućnosti

Obratite se oglašivaču

Ili