Stan Kostrena, Kostrena

€ 902.000
5
212 m²
2
Ne
Terasa

Bilješka

Oglas ažuriran 22. 01. 2026.
Opis

referenca: 1792

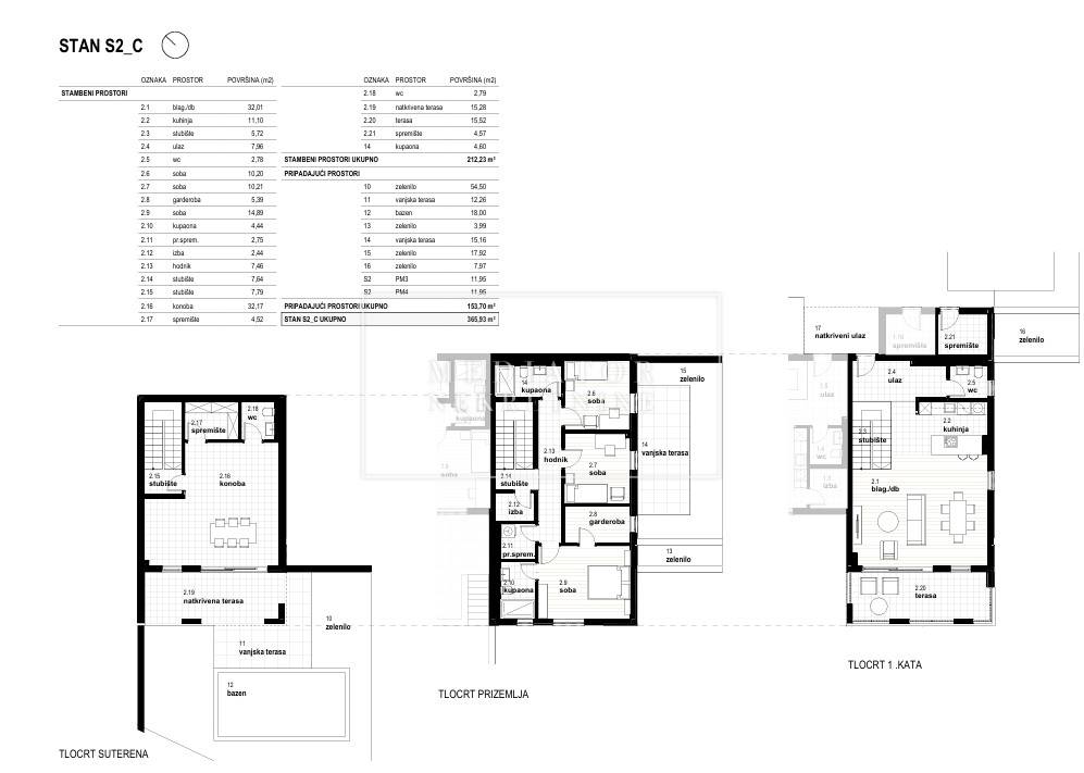
Kostrena – luksuzni četverosobni stan s bazenom, S2_C

RIJEKA, KOSTRENA – ekskluzivan stan od 212,23 m² u novogradnji, s očaravajućim pogledom na more, bazenom i pripadajućom okućnicom od 153,70 m² (oznaka S2-C).

Predstavljamo vam nekretninu koja objedinjuje moderan dizajn, eleganciju, komfor i vrhunske materijale. Smještena je u mirnoj zoni u blizini javnog prijevoza, škole, vrtića, trgovačkih centara te svega desetak minuta vožnje od središta Rijeke. Kompleks se sastoji od četiri stambene zgrade i ukupno osam stanova, smještenih sjeverno od Jadranske magistrale na području Zelene Kostrene, s panoramskim pogledom na cijeli Kvarner.

Okruženje nudi više od deset kilometara uređenih pješačkih, biciklističkih i trim staza koje vode najvišim dijelovima Kostrene, od vrha Solin do vrha Sopalj. Pristup kućama organiziran je s gornje prometnice, za koju je predviđeno proširenje i dodatno uređenje. Svaka kuća ima četiri vanjska parkirna mjesta, odnosno po dva za svaki stan. U svakoj kući nalaze se po dva stana – na gornjim parcelama su vertikalno raspoređeni, dok su na donjim smješteni jedan pored drugoga. Svaki stan ima svoj dio okućnice, a predmetni stan raspolaže s dva parkirna mjesta.

Zgrada u kojoj se stan nalazi građena je kvalitetno i luksuzno opremljena. Ugrađeni su materijali visokog standarda, kao i podne i zidne obloge prema najvišim kriterijima. Fasadna izolacija debljine 10 cm, podno grijanje putem dizalica topline i vrhunska aluminijska stolarija jamče udobnost i energetsku učinkovitost. Stan uključuje vlastitu okućnicu i dva parkirna mjesta.

Cijena se odnosi na potpuno dovršen objekt po principu “ključ u ruke”, bez namještaja. U cijenu je uključen PDV, a kupac je oslobođen plaćanja poreza na promet nekretnina.

ID CODE: 1792

Frano Barunčić
Direktor
Mob: +385 91 151 0186
Tel: +385 51 582 317
E-mail: frano.baruncic@mediator-nekretnine.hr
www.mediator-nekretnine.hr

Vedran Milković
Direktor
Mob: +385 95 563 9510
Tel: +385 51 582 317
E-mail: vedran.milkovic@mediator-nekretnine.hr
www.mediator-nekretnine.hr
Značajke
Vrsta
Stan
Ugovor
Prodaja
Dizalo
Ne
Površina
212 m²
Prostorije
5
Spavaće sobe
4
Kupaonice
2
Balkon
Ne
Terasa
Da
Garažno mjesto, parkirna mjesta
2 na zajedničkom parkingu
Grijanje
Samostalno, zrak
Klimatizacija
Samostalno, hlađenje/grijanje
Informacije o cijeni
Cijena
€ 902.000
Cijena po m²
4.255 €/m²
Energetska učinkovitost
  • Grijanje

    Samostalno, zrak
  • Klima uređaj

    Samostalno, hlađenje/grijanje
  • Energetski certifikat

    Neklasificirano
Otkrijte svaki kutak nekretnine
+6
Dodatne mogućnosti

Obratite se oglašivaču

Ili