Četverosobni stan Centar, Zaprešić, Zaprešić

€ 423.540
4
141 m²
2
3
Da
Terasa

Bilješka

Oglas ažuriran 22. 01. 2026.
Opis

referenca: 37

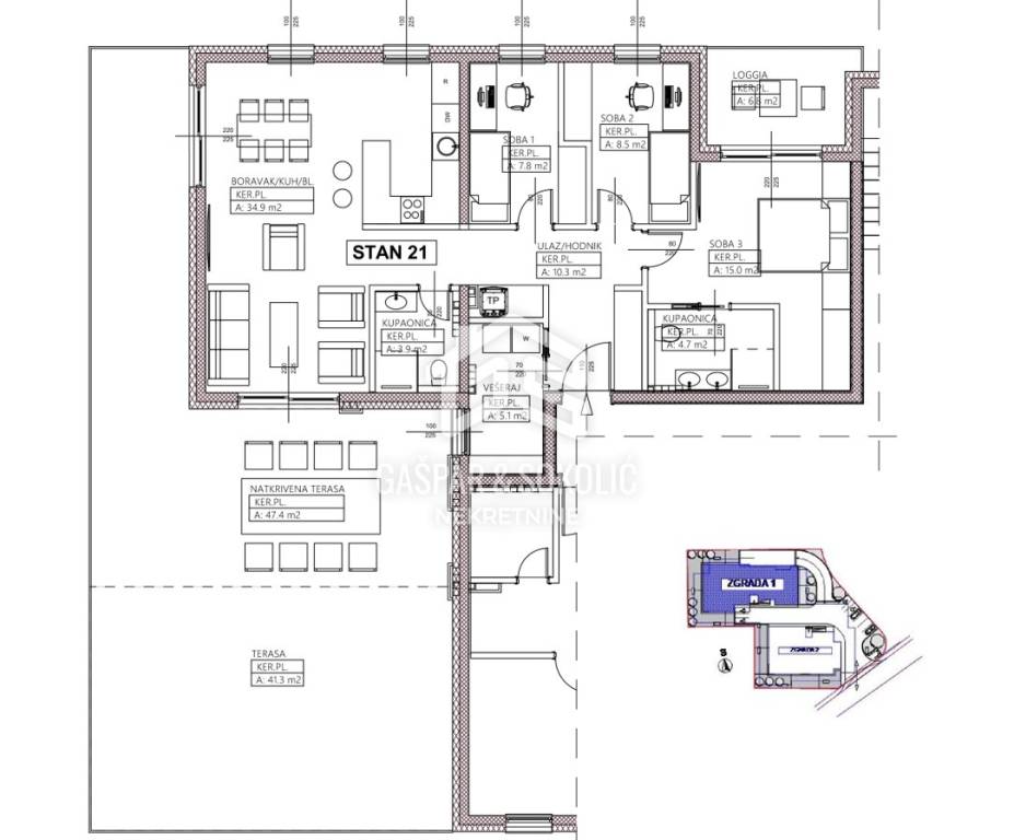
Prodaje se prostrani 4-sobni stan u novogradnji u Zaprešiću

Za Vas izdvajamo stan u novogradnji na 3. katu u Zaprešiću.

Stan se sastoji od ulaznog hodnika, open space kuhinje s blagovaonicom i dnevnim boravkom, 3 spavaće sobe od kojih jedna ima vlastitu kupaonicu i izlaz na loggiu, vešeraja te dvije terase – jednu natkrivenu i jednu nenatkrivenu. Objekt je projektiran prema najnovijim građevinskim standardima s naglaskom na kvalitetu, dugovječnost i udobnost stanovanja. Građevina je toplinski i zvučno izolirana, a svi zidovi, podovi, stropovi i krov izvedeni su prema specifičnim zahtjevima konstrukcije. Podovi su plivajući, s elastificiranim ekspandiranim polistirenom i cementnim estrihom, dok su završne obloge protuklizne keramičke pločice i parket. Vanjski otvori (prozori i balkonska vrata) napravljeni su od PVC profila s izo staklom niske emisije, što osigurava visoku energetsku učinkovitost.

Nosiva konstrukcija sastoji se od armiranobetonskih zidova, dok su horizontale izvedene armiranobetonskim pločama. Građevina je temeljena temeljnim pločama debljine 50 cm, čime je osigurana čvrstoća i stabilnost. Krov je blagog nagiba, s hidroizolacijskom folijom kao pokrovom. Pregradni zidovi unutar stanova izvedeni su po Knauf sustavu, a vrata u podrumu zaštićena su sukladno zahtjevima zaštite od požara.

Vanjski prostor je uređen s ukrasnim biljem, asfaltiranim pristupnim i parkirnim površinama, dok je nogostup obložen betonskim opločnicima. Građevina se nalazi u mirnom dijelu Zaprešića, s odličnim pristupom svim ključnim sadržajima.

Za više informacija slobodno nas kontaktirajte.

NOVOGRADNJA/ ZAPREŠIĆ/ 142 KVADRATA/ 4 SOBAN

ID CODE: 37

Ante Gašpar
Agent s licencom
Mob: 099 350 0036
E-mail: ante@gsnekretnine.hr
www.gsnekretnine.hr
Značajke
Vrsta
Stan
Ugovor
Prodaja
Kat
3 kat
Katovi zgrade
3
Dizalo
Da
Površina
141 m²
Prostorije
4
Spavaće sobe
3
Kupaonice
2
Balkon
Ne
Terasa
Da
Garažno mjesto, parkirna mjesta
1 u garaži
Klimatizacija
Samostalno, hlađenje/grijanje
Ostale karakteristike
  • Protuprovalna vrata
Informacije o cijeni
Cijena
€ 423.540
Cijena po m²
3.004 €/m²
Energetska učinkovitost

Potrošnja energije

B

Tlocrt
Otkrijte svaki kutak nekretnine
+6
Dodatne mogućnosti

Obratite se oglašivaču

Ili