Četverosobni stan Strmec, Sveta Nedelja, Sveta Nedelja

€ 363.072
4
117 m²
2
PR
Ne

Bilješka

Oglas ažuriran 22. 01. 2026.
Opis

referenca: 389

Dvoetažni stan u novogradnji, Strmec, SVETA NEDELJA

GS nekretnine vam predstavljaju dvoetažni stan u novogradnji smješten u Strmcu Samoborskom, u mirnom i zelenom okruženju koje kombinira privatnost i praktičnost svakodnevnog života. Riječ je o dvojnom objektu s odvojenim prizemljem i prvim katom, izvedenom prema visokim standardima gradnje i suvremenog dizajna.

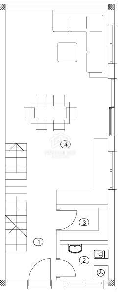
Stan obuhvaća neto površinu od 98,12 m², dok bruto površina iznosi 112,12 m².

Prizemlje površine 47,13 m² sastoji se od ulaznog hodnika, WC-a/vešeraja, spremišta te dnevnog boravka s blagovaonicom i kuhinjom otvorenog koncepta, pružajući prostran i funkcionalan dnevni boravak.

Prvi kat površine 51 m² sastoji se od hodnika i stubišta, te uključuje tri spavaće sobe i dvije moderne kupaonice, što osigurava dovoljno privatnog prostora za cijelu obitelj.

Uz stan dolaze dva parkirna mjesta od 25 m² (obračunski 5 m²) i vrt površine 140 m², koji nudi dodatni prostor za odmor i vanjske aktivnosti.

Očekivani završetak radova je u mjesecu travnju, 2026.
Stan je opremljen podnim grijanjem na dizalicu topline, hrastovim parketom, keramikom vrhunske kvalitete, aluminijskom stolarijom te električnim roletama, čime je osigurana visoka razina udobnosti, energetske učinkovitosti i modernog dizajna.

Ova nekretnina predstavlja idealnu kombinaciju komfora, funkcionalnosti i suvremenog stanovanja, savršena za obitelji koje traže prostran, moderan i kvalitetan dom u mirnom dijelu Strmca Samoborskog, a ujedno u neposrednoj blizini Samobora i svega nekoliko minuta vožnje do Zagreba.

Za više informacija i dogovora oko razgleda, obratite se s povjerenjem - GS nekretnine!

ID CODE: 389

Ante Gašpar
Agent s licencom
Mob: 099 350 0036
E-mail: ante@gsnekretnine.hr
www.gsnekretnine.hr

Hrvoje Sokolić
Agent s licencom
Mob: 095 310 4969
E-mail: hrvoje@gsnekretnine.hr
www.gsnekretnine.hr
Značajke
Vrsta
Stan
Ugovor
Prodaja
Kat
Prizemlje
Katovi zgrade
1
Dizalo
Ne
Površina
117 m²
Prostorije
4
Spavaće sobe
3
Kupaonice
2
Balkon
Ne
Terasa
Ne
Garažno mjesto, parkirna mjesta
2 na zajedničkom parkingu
Klimatizacija
Samostalno, hlađenje/grijanje
Ostale karakteristike
  • Protuprovalna vrata
Informacije o cijeni
Cijena
€ 363.072
Cijena po m²
3.103 €/m²
Energetska učinkovitost
  • Klima uređaj

    Samostalno, hlađenje/grijanje
  • Energetski certifikat

    Neklasificirano
Tlocrt
Dodatne mogućnosti

Obratite se oglašivaču

Ili