Trosobni stan Mala Erpenja, Krapinske Toplice, Krapinske Toplice

€ 135.000
3
100 m²
1
PR
Ne

Bilješka

Oglas ažuriran 22. 04. 2026.
Opis

referenca: 349

Stan, 3S, Prizemlje, 100m2, 2VPM, Mala Erpenja, NOVOGRADNJA

NA PRODAJU – PROSTRANI STAN U PRIZEMLJU S 2 PARKIRNA MJESTA, MALA ERPENJA
U ponudu stavljamo komforan stan površine 100 m², smješten u prizemlju stambene zgrade u idiličnom okruženju zagorskih brežuljaka, u naselju Mala Erpenja. Lokacija je idealna za miran obiteljski život, ali i za investiciju u turizam, zahvaljujući blizini Krapinskih i Tuheljskih Toplica.

RASPORED PROSTORIJA:
Ulazni hodnik
Spremište
Otvoreni koncept kuhinje, blagovaonice i dnevnog boravka
Prostrana kupaonica s WC-om
Dvije velike spavaće sobe
Dodatna garderoba

DODATNE POGODNOSTI:
Dva vlastita parkirna mjesta ukupne površine 25 m²
Pripadajuće spremište u prizemlju zgrade – 4 m²
Stan ima izvrsnu orijentaciju na tri strane svijeta što mu osigurava obilje prirodnog svjetla
Visoki standard sigurnosti: protuprovalna vrata i portafon
PVC stolarija, novi laminat i keramika

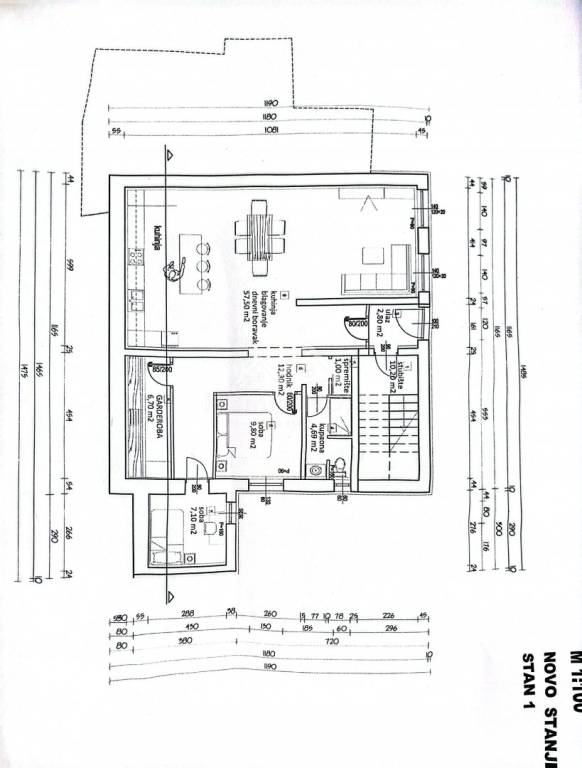
STAN PRIZEMLJE:
Dnevni boravak, kuhinja, blagavaonica 57,50m2
Garderoba 6,70m2
Spremište 1,00m2
Hodnika 12,30m2
Kupaona 4,69m2
Soba 1 9,80m2
Soba 2 7,10m2
Ukupno stambeno: 100m2

U TIJEKU KOMPLETNA OBNOVA:
Nova termo-fasada (15 cm)
Kompletno nove instalacije (struja, voda, grijanje)
Plinsko etažno centralno grijanje
Priprema za klima uređaj
Završetak radova predviđen za ljeto 2026. (predana je sva dokumentacija, čeka se uporabna dozvola i etažiranje)

LOKACIJA:
Mala Erpenja se nalazi na idealnoj poziciji između dvaju lječilišnih središta:
2,5 km od Krapinskih Toplica (3 minute autom)
2,5 km od Tuheljskih Toplica
Odlično je prometno povezana s autobusnim linijama, a u neposrednoj blizini nalaze se:

bolnica, dom zdravlja, trgovine, vrtići, škole, restorani i wellness centri.

ZDRAVLJE I ODMOR:
Područje je poznato po termalnim izvorima, medicinskoj rehabilitaciji i wellness turizmu. Idealno za ljubitelje prirode, biciklizma, šetnji i vinskih cesta.
Ova nekretnina nudi izvrsnu vrijednost za novac, bilo kao obiteljski dom ili kao atraktivna investicija za iznajmljivanje u regiji poznatoj po turizmu i zdravlju.

Za dodatne informacije ili razgled, slobodno nas kontaktirajte!

Kontakt:
Matej Erdelja (licencirani agent)
E-mail: m.erdelja@homefinder.hr
Mob: 099 299 9990
www.homefinder.hr

ID CODE: 349

Kristian Mikec
Direktor
Mob: 095 299 9996
E-mail: k.mikec@homefinder.hr
www.homefinder.hr
Značajke
Vrsta
Stan
Ugovor
Prodaja
Kat
Prizemlje
Katovi zgrade
2
Dizalo
Ne
Površina
100 m²
Prostorije
3
Spavaće sobe
3
Kupaonice
1
Balkon
Ne
Terasa
Ne
Garažno mjesto, parkirna mjesta
2 na zajedničkom parkingu
Grijanje
Samostalno, zrak
Klimatizacija
Samostalno, hlađenje/grijanje
Informacije o cijeni
Cijena
€ 135.000
Cijena po m²
1.350 €/m²
Energetska učinkovitost
  • Godina izgradnje

    2025
  • Grijanje

    Samostalno, zrak
  • Klima uređaj

    Samostalno, hlađenje/grijanje
  • Energetski certifikat

    Neklasificirano
Tlocrt
Virtualni obilazak
Otkrijte svaki kutak nekretnine
+18
Dodatne mogućnosti

Obratite se oglašivaču

Ili