Trgovina - Poslovni prostor za Prodaja

€ 779.000
5+
194 m²

Bilješka

Oglas ažuriran 19. 02. 2026.
Opis

referenca: PP8

VODICE - SRIMA, novo, top lokacija, 1.red do mora, 2 poslovna prostora,

SRIMA - Na prodaju dva atraktivna poslovna prostora, na odličnoj lokacijiu mjestu Srima, uz glavnu šetnicu i plažu, 1. red do mora!

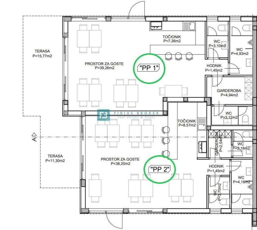
Nalazu se u prizemlju stambeno-poslovne zgrade, ukupne korisne površine s koeficijentima 196,44 m2, terase s prekrasnim pogledom, te posjeduju dva parkirna mjesta. Prostori su etažirani, po potrebi se mogu prenamijeniti u jedan veći poslovni prostor.

Poslovni prostor PP1 sastoji se od otvorenog prostora, garderobe, WC-a za osoblje, hodnika, WC-a za žene, WC-a za muškarce. PP2 sastoji se od otvorenog prostora, garderobe, WC-a za osoblje, hodnika, WC-a za žene, WC-a za muškarce. Prostori su prepuni svjetla i imaju predivan opuštajući pogled na more i arhipelag. Kompletno su uređeni.

Zbog idealne pozicije i pristupnosti, pogodni su za ugostiteljski objekt svih vrsta.

Cijena je 779.000 € (PDV uključen - kupac je oslobođen plaćanja 3% poreza na promet nekretninama).

Za više informacija kontaktirajte nas putem e-maila ili telefona.

ID CODE: PP8

Fidius Broker
Voditelj ureda
Mob: ++385 91 3375522
Tel: ++385 91 5135719
E-mail: info@fidiusbroker.hr
www.fidiusbroker.hr
Značajke
Ugovor
Prodaja
Površina
194 m²
Prostorije
5+ prostorije
Katovi zgrade
3
Informacije o cijeni
Cijena
€ 779.000
Cijena po m²
4.015 €/m²
Energetska učinkovitost
  • Energetski certifikat

    Neklasificirano
Tlocrt
Otkrijte svaki kutak nekretnine
+25
Dodatne mogućnosti

Obratite se oglašivaču

Ili