Trosobni stan Krk, Centar, Krk

€ 320.000
3
67 m²
1
PR
Ne
Terasa

Bilješka

Oglas ažuriran 22. 01. 2026.
Opis

referenca: 1419

Krk, novogradnja, apartman u prizemlju s okućnicom

Otok Krk, grad Krk, komforni jednoetažni apartman u kvalitetno izgrađenom objektu smješten je na prizemnoj etaži ukupne površine 67 m², s okućnicom od 20 m2.
Sastoji se od hodnika, dnevnog boravka, kuhinje s blagovaonicom, dvije spavaće sobe, kupaonice, ostave, wc-a i velike terase s pogledom na prirodu i zelenilo. U gradnji i opremanju nekretnine korišteni su vrhunski materijali koje investitor tijekom svojeg dugogodišnjeg iskustva koristi u gradnji. Stanu pripadaju dva parkirna mjesta na okućnici zgrade. Planirani završetak radova za ljeto 2025g. Nekretnina se nalazi na odličnoj lokaciji blizu svih potrebnih sadržaja i plaže. Nekretnina je u sustavu PDV-a što znači da kupac prilikom kupnje nekretnine ne plaća porez na promet nekretnina. Vlasnik jamči brz prijenos vlasništva na novog kupca. Posjetite nas i pronađite kvadrat vašeg doma!

ID CODE: 1419

Miroslav Grđan
Agent s licencom
Mob: +385 98 924 9293
Tel: +385 (0) 51 570 101
E-mail: miro@mironekretnine.hr
www.mironekretnine.hr
Značajke
Vrsta
Stan
Ugovor
Prodaja
Kat
Prizemlje
Dizalo
Ne
Površina
67 m²
Prostorije
3
Spavaće sobe
2
Kupaonice
1
Balkon
Ne
Terasa
Da
Garažno mjesto, parkirna mjesta
2 na zajedničkom parkingu
Klimatizacija
Samostalno, hlađenje/grijanje
Ostale karakteristike
  • Protuprovalna vrata
Informacije o cijeni
Cijena
€ 320.000
Cijena po m²
4.776 €/m²
Energetska učinkovitost
  • Godina izgradnje

    2024
  • Klima uređaj

    Samostalno, hlađenje/grijanje
  • Energetski certifikat

    Neklasificirano
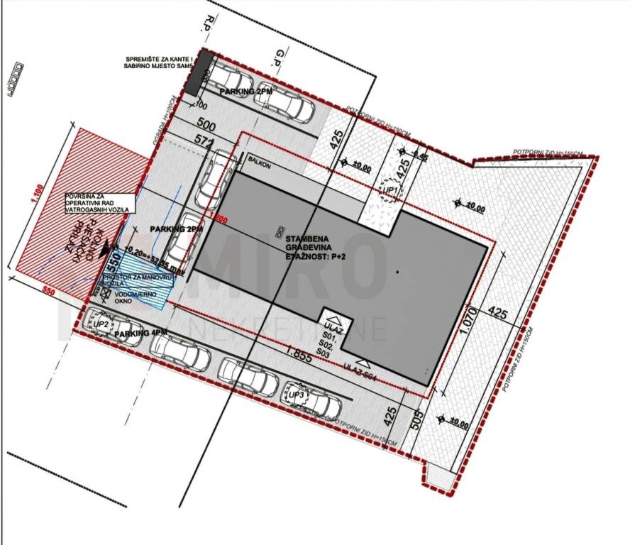
Tlocrt
Otkrijte svaki kutak nekretnine
+14
Dodatne mogućnosti

Obratite se oglašivaču

Ili