Trosobni stan Povile, Novi Vinodolski, Novi Vinodolski

€ 385.000
3
107 m²
1
PR
Ne
Balkon
Terasa

Bilješka

Oglas ažuriran 22. 01. 2026.
Opis

referenca: 584

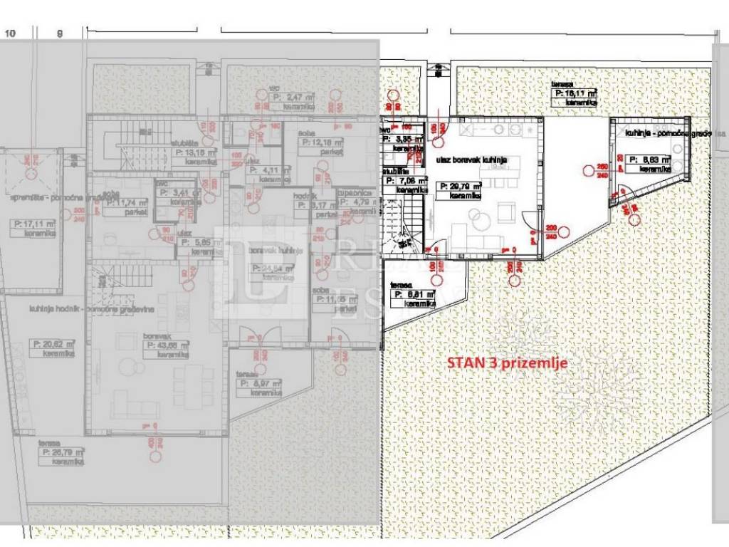
POVILE - stan s vrtom od 170 m2 u modernoj novogradnji

Ova moderna novogradnja smjestila se na svega 250 metara od plaže, a čini ju 6 stambenih jedinica.

Dvoetažni stan unutarnje površine 77,64 m2 sastoji se od kuhinje s blagovaonom, dnevnog boravka i WC-a u prizemlju te dvije spavaće sobe i kupaonice na katu. Etaže su povezane unutarnjim stepenicama.

Iz spavaće sobe na katu izlazi se na balkon s kojeg se pruža otvoreni pogled na more.

Stan ima još dvije terase u prizemlju, površina 16,11 m2 i 8,81 m2. Uz navedeno, pripada mu i vlastita okućnica površine čak 170 m2 koja omogućuje kvalitetno provođenje vremena s obitelji i prijateljima na otvorenom te pruža mogućnost za brojne dodatne sadržaje čime ova nekretnina dobiva vrijednost više.

Jedno parkirno mjesto je uključeno u cijenu, a postoji i dodatna mogućnost kupnje garaže.

Zbpg lokacije nekretnine, pogled na more se pruža već iz prizemlja objekta.

Nekretnina se prodaje po principu ključ u ruke, a planirani završetak radova i useljenje je krajem 2025. godine.

ID CODE: 584

Paula Šupraha, mag.oec.
Agent s licencom
Mob: 095 511 6518
Tel: +385 95 511 6518
E-mail: paula@lp-realestate.com
www.lp-realestate.com
Značajke
Vrsta
Stan
Ugovor
Prodaja
Kat
Prizemlje
Katovi zgrade
2
Dizalo
Ne
Površina
107 m²
Prostorije
3
Spavaće sobe
2
Kupaonice
1
Balkon
Da
Terasa
Da
Garažno mjesto, parkirna mjesta
1 na zajedničkom parkingu
Grijanje
Samostalno, zrak
Klimatizacija
Samostalno, hlađenje/grijanje
Informacije o cijeni
Cijena
€ 385.000
Cijena po m²
3.598 €/m²
Energetska učinkovitost

Potrošnja energije

A

Otkrijte svaki kutak nekretnine
+12
Dodatne mogućnosti

Obratite se oglašivaču

Ili