Građevinsko zemljište za Prodaja

€ 89.000
389 m²

Bilješka

Oglas ažuriran 22. 01. 2026.
Opis

referenca: 4511

PAG, KOLAN, Građevinsko zemljište s građevinskom dozvolom

Građevinsko zemljište s građevinskom dozvolom – Kolan, otok Pag

Na prodaju je građevinsko zemljište smješteno u samom centru Kolana, svega 150 metara od zgrade Općine. Parcela se nalazi na povišenom položaju te pruža prekrasan panoramski pogled.

Zemljište dolazi s ishođenom građevinskom dozvolom za izgradnju dvojnog objekta, koji se sastoji od dvije identične stambene jedinice (prizemlje + kat), s jednim zajedničkim bazenom dimenzija 6 x 3 m.

**Infrastruktura:**

* Priključci struje (trofazna) i vode već su izvedeni na terenu
* Svi komunalni doprinosi su plaćeni

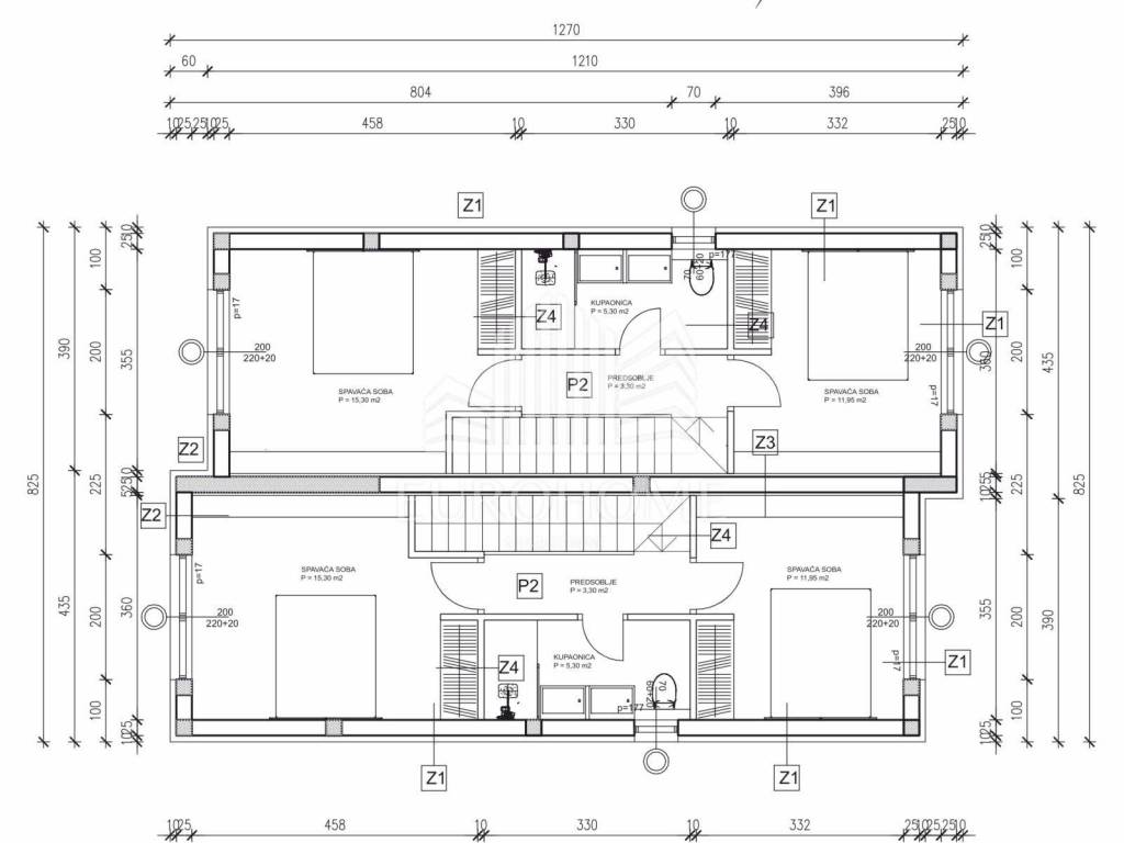
**Tlocrt jedne stambene jedinice:**

**Prizemlje:**

* Dnevni boravak s kuhinjom i blagovaonicom, sa stepeništem – 24 m²
* Ulazni prostor s garderobnim ormarom – 3,5 m²
* Kupaonica – 4,55 m²
* Terasa – cca 10 m²

**Kat:**

* Spavaća soba 1 – 15,3 m²
* Spavaća soba 2 – 11,95 m²
* Predsoblje – 3,3 m²
* Kupaonica – 5,3 m²

**Dodatno:**

* Svakoj jedinici pripadaju 2 parkirna mjesta i pripadajući dio dvorišta
* Neto korisna površina jedne jedinice: 73 m² (ukupno 146 m²)
* Bruto površina građevine: 180,4 m² (prizemlje 80,3 m² + kat 100,1 m²)
* Tlocrtna površina objekta: 100,1 m²
* Prema projektu predviđena su i 4 vanjska parkirna mjesta

Gradnja može započeti odmah po stupanju u posjed. Vlasništvo uredno.

Za sve dodatne informacije i dokumentaciju dostupnu na upit, slobodno se obratite.

Maja Tieško
Savjetnik u prodaji nekretnina
091/986-9699

Agencijska naknada: 2% + PDV.

ID CODE: 4511

Maja Tieško
Savjetnik u prodaji
Mob: 091 9869 699
Tel: 01 6231 365
E-mail: maja@eurohome-nekretnine.hr
www.eurohome-nekretnine.hr
Značajke
Ugovor
Prodaja
Vrsta
Građevinsko zemljište
Površina
389 m²
Informacije o cijeni
Cijena
€ 89.000
Cijena po m²
229 €/m²
Otkrijte svaki kutak nekretnine
+10
Dodatne mogućnosti

Obratite se oglašivaču

Ili