Građevinsko zemljište za Prodaja

€ 1.100.000
2.796 m²

Bilješka

Oglas ažuriran 22. 01. 2026.
Opis

referenca: 4564

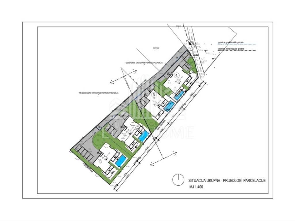
PROJEKT SKRADIN, 4 objekta s 5 apartmana pored Krke

Na prodaju su četiri građevinska zemljišta ukupne površine 2796 m², smještena uz cestu koja vodi od Skradina prema Prokljanskom jezeru.

Parcela se nalazi svega 1,6 km od centra Skradina, u neposrednoj blizini Nacionalnog parka Krka, što lokaciju čini izuzetno atraktivnom.

Ishođena je građevinska dozvola za izgradnju četiri objekta, svaki s pet apartmana.
BITNO: Plaćeni su svi troškovi izrade vodovodne mreže, kao i akontacija za priključak na električnu mrežu.
*Gradilište je spremno za prijavu početka gradnje.

Prema projektu, planirano je ukupno 1819 m² neto prodajne površine. Svaki objekt predviđen je s vlastitim bazenom, a svaki apartman ima osigurano parkirno mjesto.

Ova nekretnina predstavlja izvrsnu priliku za investiciju u turizam na jednoj od najposjećenijih lokacija u Dalmaciji.

Za sve dodatne informacije i dokumentaciju dostupnu na upit, slobodno se obratite.

Maja Tieško

Savjetnik u prodaji nekretnina
091/986-9699

Agencijska naknada: 2% + PDV.

ID CODE: 4564

Maja Tieško
Savjetnik u prodaji
Mob: 091 9869 699
Tel: 01 6231 365
E-mail: maja@eurohome-nekretnine.hr
www.eurohome-nekretnine.hr
Značajke
Ugovor
Prodaja
Vrsta
Građevinsko zemljište
Površina
2.796 m²
Informacije o cijeni
Cijena
€ 1.100.000
Cijena po m²
393 €/m²
Otkrijte svaki kutak nekretnine
+30
Dodatne mogućnosti

Obratite se oglašivaču

Ili