map icon

Stan Punta Kolova, Opatija, Opatija

OpatijaPunta Kolova, Opatija
€ 1
5
296 m²
3+
Da
Balkon
Terasa

Bilješka

Oglas ažuriran 02. 04. 2026.
Opis

referenca: 3242

OPATIJA, MODERAN PENTHOUSE S KROVNIM BAZENOM I PANORAMSKIM POGLEDOM

OPATIJA, u ponudu smo dobili moderan 4SB+DB u vrhunskoj novogradnji s osam stanova i panoramskim pogledom na samo 300 m od mora.

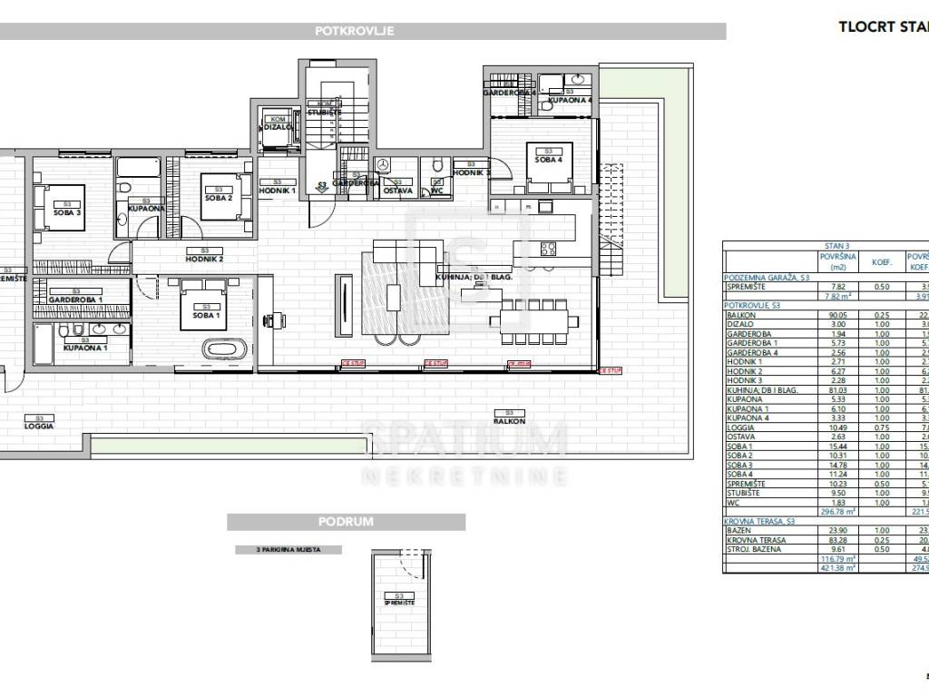
Penthouse S3 nalazi se u potkrovlju, ukupne izgrađene površine 545 m2, od čega unutarnji prostor 174 m2, terase 185 m2, preljevni krovni bazen 22 m2, garažna parkirna mjesta 42 m2, spremište 19 m2 i zelenilo 104 m2.
Sastoji se od ulaznog hodnika, lifta, ostave, četiri spavaće sobe, četiri kupaonice, tri garderobe te "open space" kuhinje s blagovaonicom i dnevnim boravkom iz kojega se izlazi na balkon s panoramskim pogledom na Kvarnerski zaljev. Na balkonu se nalazi i lođa te stepenište koje vodi na krovnu terasu gdje se nalazi "Infinity" bazen s najboljim pogledom u cijeloj Opatiji.

Stanu pripadaju tri garažna parkirna mjesta kao i spremište.
Prilikom gradnje, korišteni su samo vrhunski materijali (troslojni hrastov parket, Schuco aluminijska stolarija s troslojnim staklom, električne rolete, podno grijanje putem toplinske pumpe, video nadzor i ventilirana vanjska fasada).

OPATIJA, prekrasan primorski grad na Jadranskom moru i poznato lječilište 19. stoljeća, popularna je destinacija za turiste iz cijelog svijeta.
Grad je okružen neponovljivim prirodnim ljepotama. Nalazi se ispod planine Učke koja je omiljeno odredište planinara i izletnika, na prijelazu je između zelene istarske regije i primorja te čini savršenu ravnotežu krajolika. Iz grada se pruža prekrasan pogled na more i obližnje otoke Krk i Cres. Okružena je šarmantnim povijesnim gradićima uskih uličica i bogate povijesti. Opatiju krasi velik broj nesvakidašnjih znamenitosti, veliki broj plaža, čisto more, a njene gradske ulice prošarane su kućama zanimljive arhitekture i vilama iz habsburškog doba.

Za sve ostale informacije obratite nam se s povjerenjem.

Sanjin Latinčić
Agent s licencom
+385 91 28 99 599
sanjin@spatium.hr

Spatium nekretnine
+385 51 272 903
info@spatium.hr

ID CODE: 3242

Sanjin Latinčić
Agent s licencom
Mob: +385 91 289 9599
Tel: +385 51 272 903
E-mail: sanjin@spatium.hr
www.spatium.hr
Značajke
Vrsta
Stan
Ugovor
Prodaja
Katovi zgrade
2
Dizalo
Da
Površina
296 m²
Prostorije
5
Spavaće sobe
4
Kupaonice
3+
Balkon
Da
Terasa
Da
Garažno mjesto, parkirna mjesta
1 u garaži, 3 na zajedničkom parkingu
Grijanje
Samostalno, zrak
Klimatizacija
Samostalno, hlađenje/grijanje
Ostale karakteristike
  • Alarmni sustav
Informacije o cijeni
Cijena
€ 1
Cijena po m²
0 €/m²
Energetska učinkovitost
  • Godina izgradnje

    2024
  • Grijanje

    Samostalno, zrak
  • Klima uređaj

    Samostalno, hlađenje/grijanje
  • Energetski certifikat

    Neklasificirano
Otkrijte svaki kutak nekretnine
+18
Dodatne mogućnosti

Obratite se oglašivaču

Ili