Trosobni stan Orebić, Orebić

€ 312.250
3
116 m²
Ne

Bilješka

Oglas ažuriran 22. 01. 2026.
Opis

referenca: 701

Prostran stan s vrtom i garažom + 340 m² građevinskog zemljišta – Centar Orebića

EKSKLUZIVNA PONUDA – PRODAJA STANA U CENTRU OREBIĆA

Prodaje se prostran stan u prizemlju kuće, smješten u samom srcu Orebića, na samo 380 m od mora. Uz stan dolazi i građevinsko zemljište od 340 m² ispred njega – rijetka prilika na ovako atraktivnoj lokaciji!

✅ Ključne karakteristike:

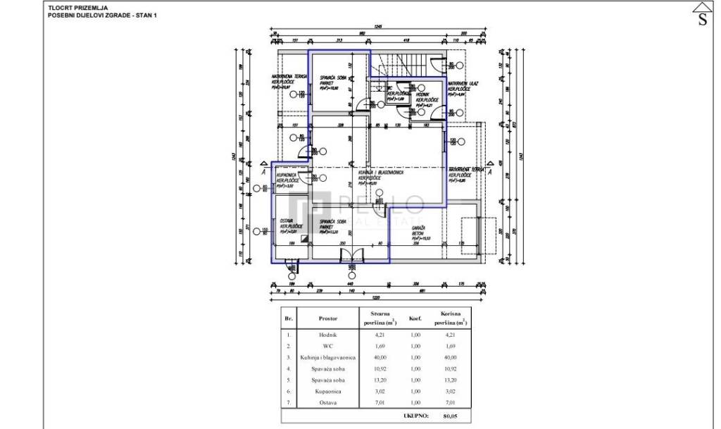
Stan: 80 m²

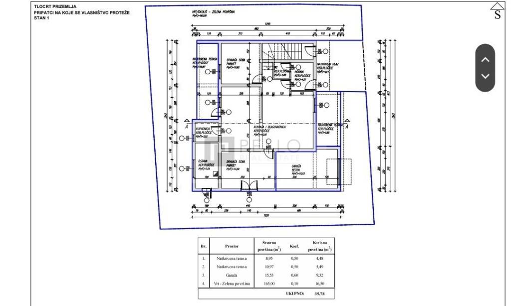
Ukupna površina (stan + vrt + garaža + natkriveno dvorište): 116 m²

Građevinsko zemljište: 340 m²

Raspored: Dvije prostrane spavaće sobe

Dodatno: Vrt, garaža i natkriveno dvorište

Rok useljenja: Najkasnije 90 dana od potpisa predugovora

✨ Stan je odmah useljiv, bez dodatnih ulaganja. Kuća se redovito održava uz godišnja ulaganja u očuvanje zgrade.

???? Lokacija: Centralni dio Orebića – idealna za miran obiteljski život, ali i kao izvrsna investicija za turistički najam zbog blizine mora i svih sadržaja.

ID CODE: 701

Frano Radić
Voditelj ureda
Mob: +385996896693
Tel: +385 99 6896 693
E-mail: frano.radic@pello-realestate.com
www.pello-realestate.com
Značajke
Vrsta
Stan
Ugovor
Prodaja
Dizalo
Ne
Površina
116 m²
Prostorije
3
Spavaće sobe
2
Balkon
Ne
Terasa
Ne
Garažno mjesto, parkirna mjesta
2 na zajedničkom parkingu
Klimatizacija
Samostalno, hlađenje/grijanje
Informacije o cijeni
Cijena
€ 312.250
Cijena po m²
2.692 €/m²
Energetska učinkovitost
  • Godina izgradnje

    2005
  • Klima uređaj

    Samostalno, hlađenje/grijanje
  • Energetski certifikat

    Neklasificirano
Tlocrt
Otkrijte svaki kutak nekretnine
+33
Dodatne mogućnosti

Obratite se oglašivaču

Ili