Trosobni stan Stomorska, Šolta, Šolta

€ 3.050
3
72 m²
Ne

Bilješka

Oglas ažuriran 25. 03. 2026.
Opis

referenca: 712

Stanovi u Stomorskoj(Šolta)NOVOGRADNJA

EKSKLUZIVNO!
PRODAJA STANOVA STOMORSKA-ŠOLTA *NOVOGRADNJA*ZGRADA S BAZENOM
Prodaje se zgrada se 4 stana u Stomorskoj (Šolta) te bazenom u mjestu Stomorska na otoku Šolti, udaljena 220 m od plaže.
Plan plaćanja: 20% kapara - 50 % PO ROHBAU FAZI- OSTATAK PO ISHOĐENJU UPORABNE DOZVOLE

Predviđen završetak radova kraj 2026 godine /početak 2027 godine

Stan 1 Površine 103,11 m2 se nalazi na sjevernoj strani stambene zgrade. Stan 1 je troetažni stan gdje se ulazi na razinu prizemlja.
Na razini prizemlja nalazi se ulazni prostor, spavaća soba s kupaonicom i loggiom. Na etaži suterena se također
nalazi spavaća soba s pripadajućom kupaonicom i loggiom te na razini prvog kata se nalazi zahod s dnevnim
prostorima i loggiom. Etaže su povezane unutarnjim stubištem.Stanu pripada i 35 m2 okućnice.Stanu pripadaju 2 parking mjesta.
CIJENA: 262 931 EUR + PDV

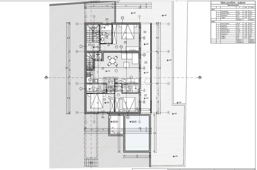
Stan 2 površine 72,45 m2 se nalazi na razini suterena u srednjem i južnom dijelu stambene zgrade. Stanu 2 se pristupa preko
vanjskog stubišta se sastoji od ulaznog prostora, dnevnih prostora, kupaonice, spavaće sobe te druge spavaće
sobe s pripadajućom kupaonicom. Od vanjskih prostora stan sadrži dvije loggie.Stanu pripada i 60 m2 okućnice.Stan ima 1 parking mjesto.
CIJENA:184 748 EUR + PDV

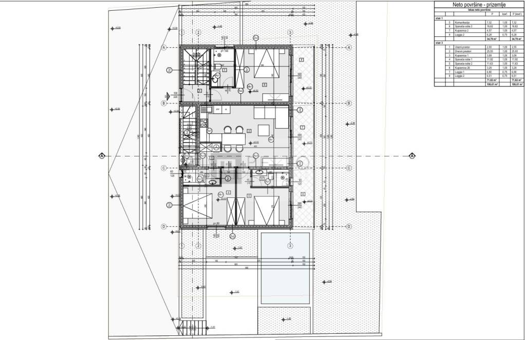
Stan 3 površine 71,82 m2 se nalazi na razini prizemlja u srednjem i južnom dijelu stambene zgrade. Stan 3 se sastoji od ulaznog
prostora, dnevnih prostora, kupaonice, spavaće sobe te druge spavaće sobe s pripadajućom kupaonicom. Od
vanjskih prostora stan sadrži dvije loggie.Stan ima 1 parking mjesto
CIJENA:190 323 EUR + PDV

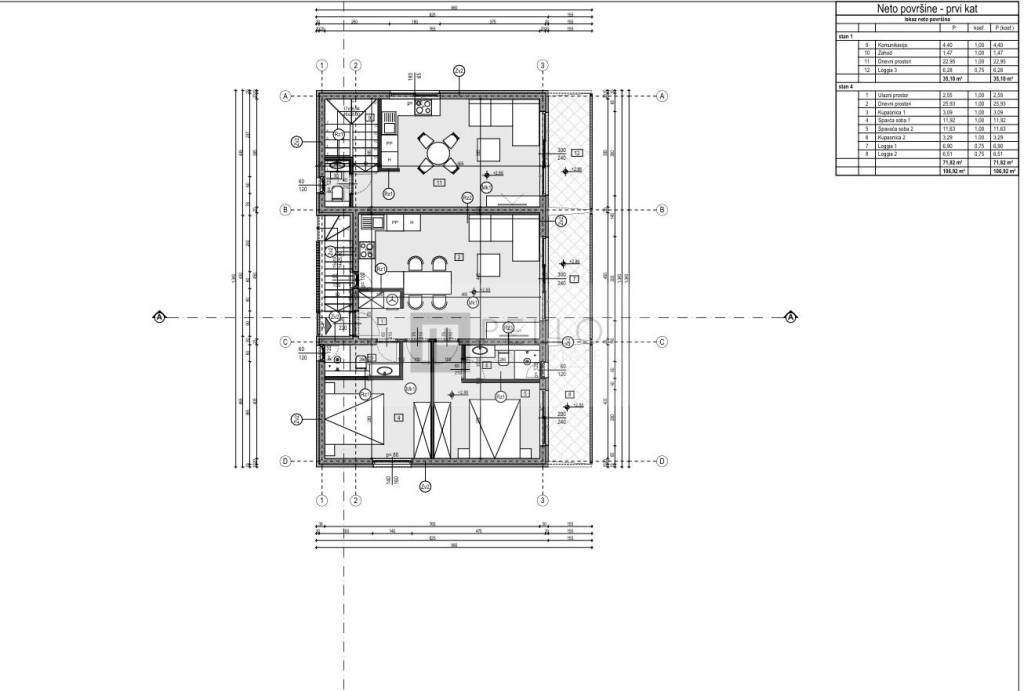
Stan 4 površine 71,82 m2 se nalazi na razini prvog kata u srednjem i južnom dijelu stambene zgrade. Stanu 4 se pristupa preko
vanjskog stubišta te se sastoji od ulaznog prostora, dnevnih prostora, kupaonice, spavaće sobe te druge spavaće
sobe s pripadajućom kupaonicom. Od vanjskih prostora stan sadrži dvije loggie.Stan ima 1 parking mjesto
CIJENA:190 323 EUR + PDV

ID CODE: 712

Frano Radić
Voditelj ureda
Mob: +385996896693
Tel: +385 99 6896 693
E-mail: frano.radic@pello-realestate.com
www.pello-realestate.com
Značajke
Vrsta
Stan
Ugovor
Prodaja
Dizalo
Ne
Površina
72 m²
Prostorije
3
Spavaće sobe
2
Balkon
Ne
Terasa
Ne
Klimatizacija
Samostalno, hlađenje/grijanje
Informacije o cijeni
Cijena
€ 3.050
Cijena po m²
42 €/m²
Energetska učinkovitost
  • Godina izgradnje

    2026
  • Klima uređaj

    Samostalno, hlađenje/grijanje
  • Energetski certifikat

    Neklasificirano
Tlocrt
Otkrijte svaki kutak nekretnine
+28
Dodatne mogućnosti

Obratite se oglašivaču

Ili