Trosobni stan Krk, Centar, Krk

€ 720.000
3
117 m²
1
P
Ne
Terasa

Bilješka

Oglas ažuriran 29. 04. 2026.
Opis

referenca: 2360

Krk, Krk, Grad Krk, novogradnja, stan s bazenom, 117m2

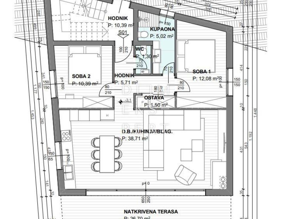
Prodaje se namješten, useljiv, trosoban stan ukupne površine 117.56 m² u suterenu urbane vile u centru Krka.

POVRŠINA STANA:
- 75.32 m² - unutarnja, podna površina
- ukupna površina stana iznosi 117.56 m² s pripadcima (vrt, terasa, bazen i dva parkirna mjesta) obračunato prema pripadajućim koeficijentima.

STAN SE SASTOJI OD:
- hodnika (7.54 m²)
- dnevnog boravka s kuhinjom i blagovaonicom (38.37 m²)
- dvije spavaće sobe (10.33 m² i 12.35 m²)
- ostave (1.51 m²)
- kupaonice (5.22 m²)
- natkrivene terase (21.09 m²)
- vrta (201 m²)
- bazena (26 m²)

Stan je ugodan i pun svjetla, odličnog i funkcionalnog rasporeda. Potpuno je namješten u skladu sa slikama iz ovog oglasa, cijena iznosi 780.000 EUR.

Oprema:
- aluminijska stolarija s roletama i komarnicima
- protuprovalna ulazna vrata
- video portafoni
- troslojni parket prilagođen za podno grijanje
- kupaonice opremljene sanitarnim uređajima i opremom vrhunske kvalitete
- grijanje dizalicom topline (podno grijanje)
- klima uređaji u svakoj prostoriji

Lokacija: Centar grada Krka, 250 metara od mora.

Stanom prošećite na virtualnoj šetnji: https://www.klapty.com/tour/XwM08t9bg2

KONTAKT:
Snježana Čabraja
Tel: 01 2013 007
Mob: +385 99 360 1634
E-mail: snjezana.cabraja@domekspert.hr

ID CODE: 2360
Značajke
Vrsta
Stan
Ugovor
Prodaja
Kat
Podrum (-1)
Dizalo
Ne
Površina
117 m²
Prostorije
3
Spavaće sobe
2
Kupaonice
1
Balkon
Ne
Terasa
Da
Grijanje
Samostalno, zrak
Klimatizacija
Samostalno, hlađenje/grijanje
Informacije o cijeni
Cijena
€ 720.000
Cijena po m²
6.154 €/m²
Energetska učinkovitost

Potrošnja energije

A+

Virtualni obilazak
Otkrijte svaki kutak nekretnine
+19
Dodatne mogućnosti

Obratite se oglašivaču

Ili