Građevinsko zemljište za Prodaja

€ 460.000
1.608 m²

Bilješka

Oglas ažuriran 22. 01. 2026.
Opis

referenca: 2775

Belovar, Atraktivna parcela za gradnju stambenog kompleksa - Belovar -1600 m2

Prodaje se građevinsko zemljište s ishođenom pravomoćnom građevinskom dozvolom za stambeni objekt s 22 stana i 4 garaže.
Nalazi se u blizini Sesveta, naselje Belovar. Ukupna površina mu je 1608 m², trapezastog je oblika.

Smješteno je u izgrađenom dijelu građevinskog područja, a namjena je stambena.

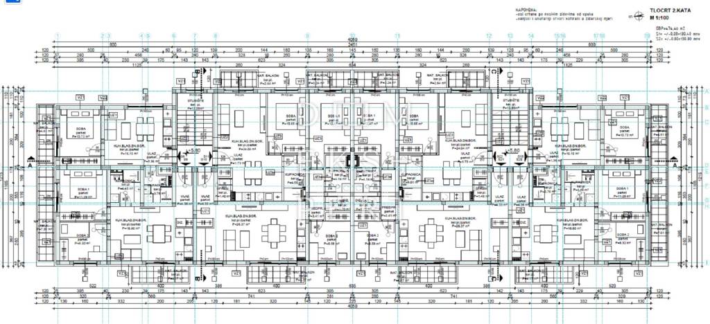
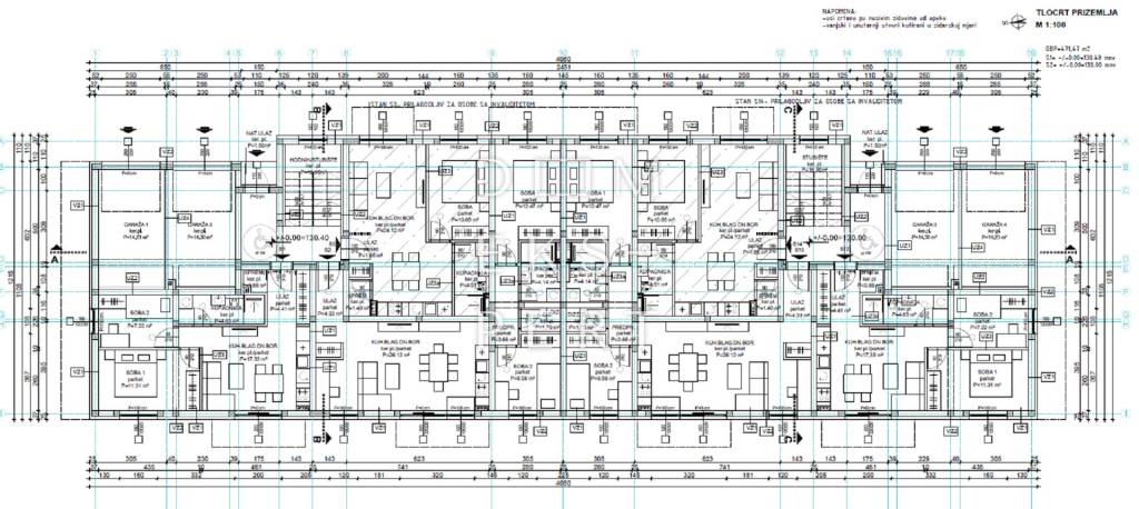
Budući objekt se sastoji od:
-PRIZEMLJA (sa 6 stambenih jedinica i 4 garaže) površine 474,42 m²
-1.KATA (s 8 stambenih jedinica)
-2.KATA (s 8 stambenih jedinica)

Bruto građevinska površina je: 1420,33 m2, dok je neto površina 1190 m2.

Na parceli je predviđeno 18 parkirališnih mjesta te 477 m2 zelene površine.

Pregled stanova:
Projektom su predviđene 22 stambene jedinice od čega je 10 stambenih jedinica s 1 spavaćom sobom, i 12 stambenih jedinica s 2 spavaće sobe, a površine stanova u objektu su od 37 m2 do 68 m2.

LOKACIJA:
Zemljište se nalazi u obiteljskom naselju Belovar, udaljeno 8 km od Sesveta. Nalazi se blizu križišta puteva Zagreb, Varaždin, Dugo Selo, Marija Bistrica.
Naseljem prometuju 4 linije ZET-ovog autobusa koji vozi do željezničkog kolodvora u Sesvetama i tramvajskog terminala u Dupcu.

KONTAKT:
Mirna Poljak
Tel: 091 5444 915
E-mail: mirna.poljak@domekspert.hr

ID CODE: 2775
Značajke
Ugovor
Prodaja
Vrsta
Građevinsko zemljište
Površina
1.608 m²
Informacije o cijeni
Cijena
€ 460.000
Cijena po m²
286 €/m²
Tlocrt
Otkrijte svaki kutak nekretnine
+12
Dodatne mogućnosti

Obratite se oglašivaču

Ili