Građevinsko zemljište za Prodaja

€ 165.000
1.106 m²

Bilješka

Oglas ažuriran 24. 03. 2026.
Opis

referenca: E3478

Zadar, Rtina, zemljište 1106 m2 s dozvolom

Zadar, Rtina, zemljište 1106 m2 s dozvolom

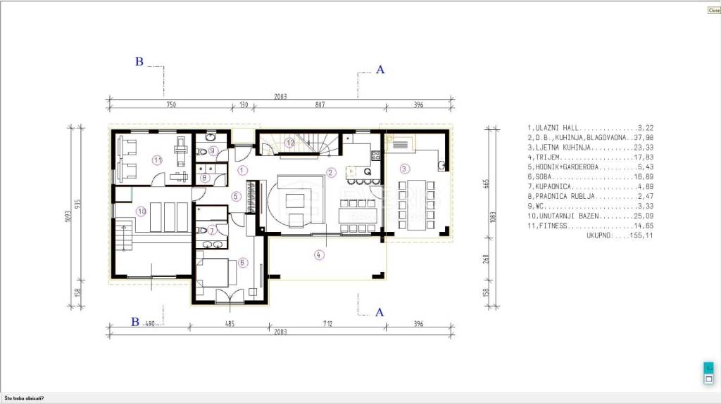
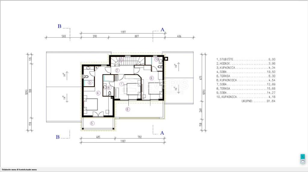
Građevinsko zemljište ukupne površine 1,106 m2 s građevinskom dozvolom i projektom za samostojeću kuću s unutarnjim i vanjskim bazenom te odvojenim apartmanom.

Projektirana nekretnina bi imala 285 m2, a sastojala bi se od samostojeće kuće te pomoćne zgrade zamišljene kao hobby prostorijom.

Samostojeća kuća je previđene katnosti prizemlje + kat, ukupne bruto površine GBP 233,10 m2.

Koeficijent izgrađenosti iznosi 0,26, dok koeficijent iskoristivosti iznosi 0,30.

Uz zemljište dobivate građevinski materijal koji je već osiguran za gradnju kuće.

Za više dodatnih informacija slobodno nas kontaktirajte.

Poštovani klijenti, agencijska provizija naplaćuje se u skladu s Općim uvjetima poslovanja
EVERIS REAL ESTATE, koje možete preuzeti na našoj web stranici https://nekretnine.everis.hr/o-nama/opci-uvjeti-poslovanja

ID CODE: E3478

Kristijan Kopić
Agent s licencom
Mob: +385 (91) 5954 045
Tel: +385 (0)91 5954 045
E-mail: k.kopic@everis.hr
https://nekretnine.everis.hr/
Značajke
Ugovor
Prodaja
Vrsta
Građevinsko zemljište
Površina
1.106 m²
Informacije o cijeni
Cijena
€ 165.000
Cijena po m²
149 €/m²
Tlocrt
Otkrijte svaki kutak nekretnine
+6
Dodatne mogućnosti

Obratite se oglašivaču

Ili