Jednosobni stan Grebaštica, Šibenik - Okolica, Šibenik

€ 199.000
1
70 m²
1
1
Ne
Balkon
Terasa

Bilješka

Oglas ažuriran 22. 01. 2026.
Opis

referenca: 4315

TOP PRILIKA- ŠIBENIK- Grebaštica, 70 m2, novogradnja

Top prilika – novi luksuzni apartman u Grebaštici, samo 200 m od mora
Vrhunska lokacija • pogled na more • novogradnja • parkirno mjesto • useljivo 2025.

Na prodaju je moderno opremljen apartman u novogradnji, smješten u mirnoj ulici, svega 200 metara od mora i plaže, te nadomak centra Grebaštice.
Idealan za odmor, stanovanje ili turističko iznajmljivanje.

Gradnja je započela, a završetak se planira do kraja 2025.
Vlasništvo je uredno, 1/1, s mogućnošću etapnog plaćanja.

Stan 70 m² | Cijena: 190.000 €

* 2 spavaće sobe ( jedna 10,80 m²)
* dnevni boravak s kuhinjom i blagovaonicom (15,97 m²)
* hodnik (2,71 m²), kupaonica (3,87 m²)
* balkon (7,89 m²)
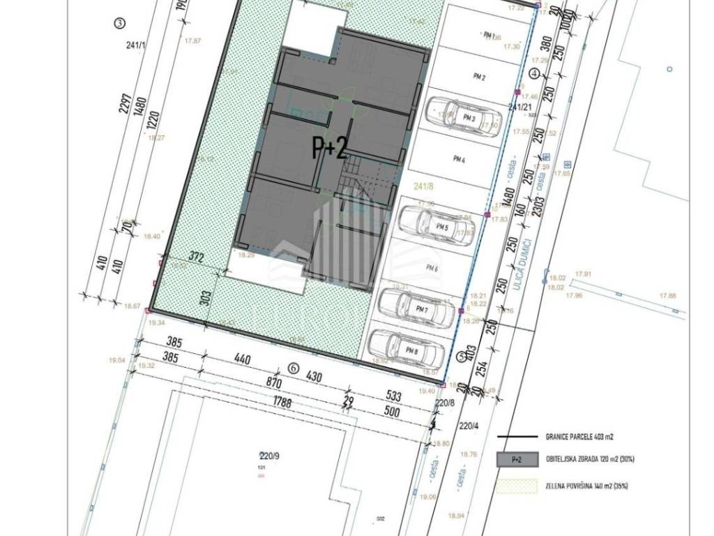
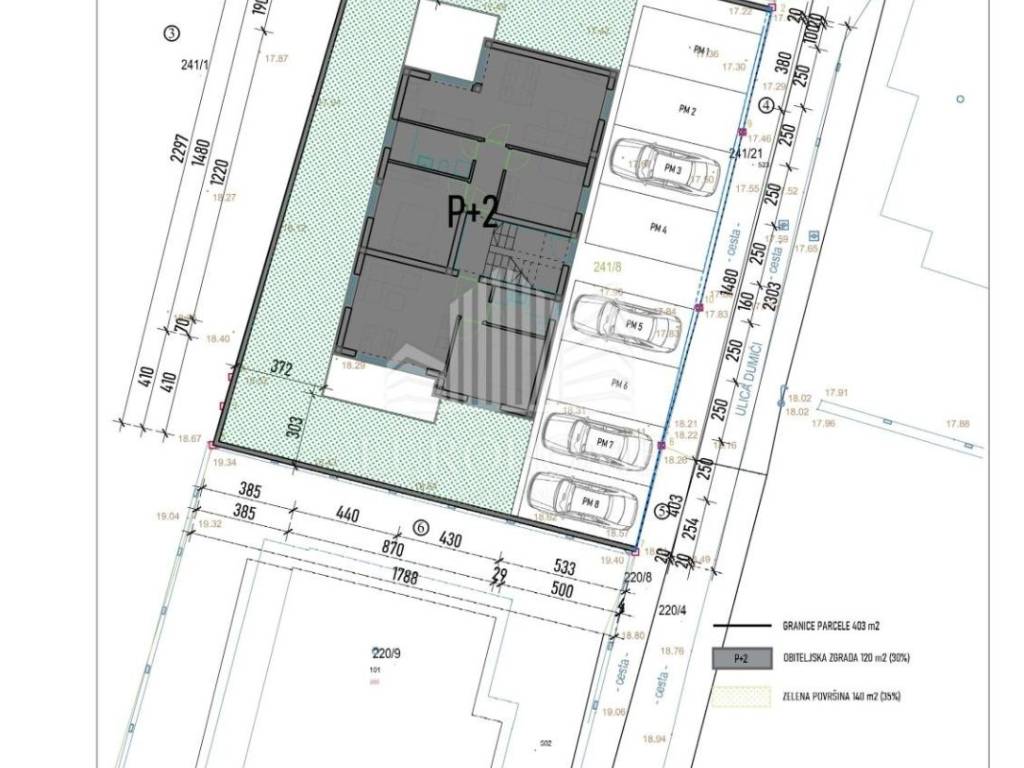
* vlastito vanjsko parkirno mjesto

Vrhunska oprema uključuje:

* klima uređaji s WiFi modulima u svakoj prostoriji
* električno podno grijanje u kupaonici
* PVC stolarija s ClimaGuard staklom
* Geberit ugradbeni vodokotlići
* Hansgrohe tuš sustavi
* Villeroy\&Boch sanitarije
* ETICS fasadni sustav s 10 cm izolacije
* ravni krov s 15 cm termoizolacije, pokriven batudom
* staklene ograde na balkonima

Zašto je ovo odlična prilika:

* mirna, a centralna lokacija
* udaljenost do plaže: 2 minute pješice
* visoki standard gradnje i opreme
* izvrsno za osobno korištenje ili investiciju
* parkirno mjesto uključeno u cijenu, bez dodatnih troškova

Za više informacija, tlocrt ili dogovor razgledavanja, slobodno se javite:
Maja Tieško
091/986-9699

Agencijska naknada: 2% + PDV

ID CODE: 4315

Maja Tieško
Savjetnik u prodaji
Mob: 091 9869 699
Tel: 01 6231 365
E-mail: maja@eurohome-nekretnine.hr
www.eurohome-nekretnine.hr
Značajke
Vrsta
Stan
Ugovor
Prodaja
Kat
1 kat
Katovi zgrade
2
Dizalo
Ne
Površina
70 m²
Prostorije
1
Spavaće sobe
1
Kupaonice
1
Balkon
Da
Terasa
Da
Garažno mjesto, parkirna mjesta
1 na zajedničkom parkingu
Klimatizacija
Samostalno, hlađenje/grijanje
Informacije o cijeni
Cijena
€ 199.000
Cijena po m²
2.843 €/m²
Energetska učinkovitost

Potrošnja energije

A+

Otkrijte svaki kutak nekretnine
+13
Dodatne mogućnosti

Obratite se oglašivaču

Ili