Građevinsko zemljište za Prodaja

€ 488.400
1.221 m²

Bilješka

Oglas ažuriran 22. 01. 2026.
Opis

referenca: 853

ZATON – NIN, Građevinsko zemljište s idejnim projektom za modernu stambenu zgradu – 60 m od mora!!!

ZATON – NIN, Građevinsko zemljište s idejnim projektom za modernu stambenu zgradu – 60 m od mora!!!

Na prodaju je atraktivno građevinsko zemljište površine 1.221 m², smješteno u trećem redu od mora, svega 60 metara od obale u Zatonu, pitoresknom mjestu između povijesnog Nina (2 km) i Zadra (12 km). Lokacija se odlikuje mirnim okruženjem, blizinom pješčano-šljunčane plaže i izvrsnom turističkom infrastrukturom.

Karakteristike zemljišta i projekta:
Površina parcele: 1.221 m²
Dimenzije: cca 15 m × 80 m, pravilan oblik
Pristup: asfaltirani put širine 3 m
Infrastruktura: struja i voda u neposrednoj blizini
Vlasništvo: uredno, 1/1
Idejno rješenje i planirana gradnja:
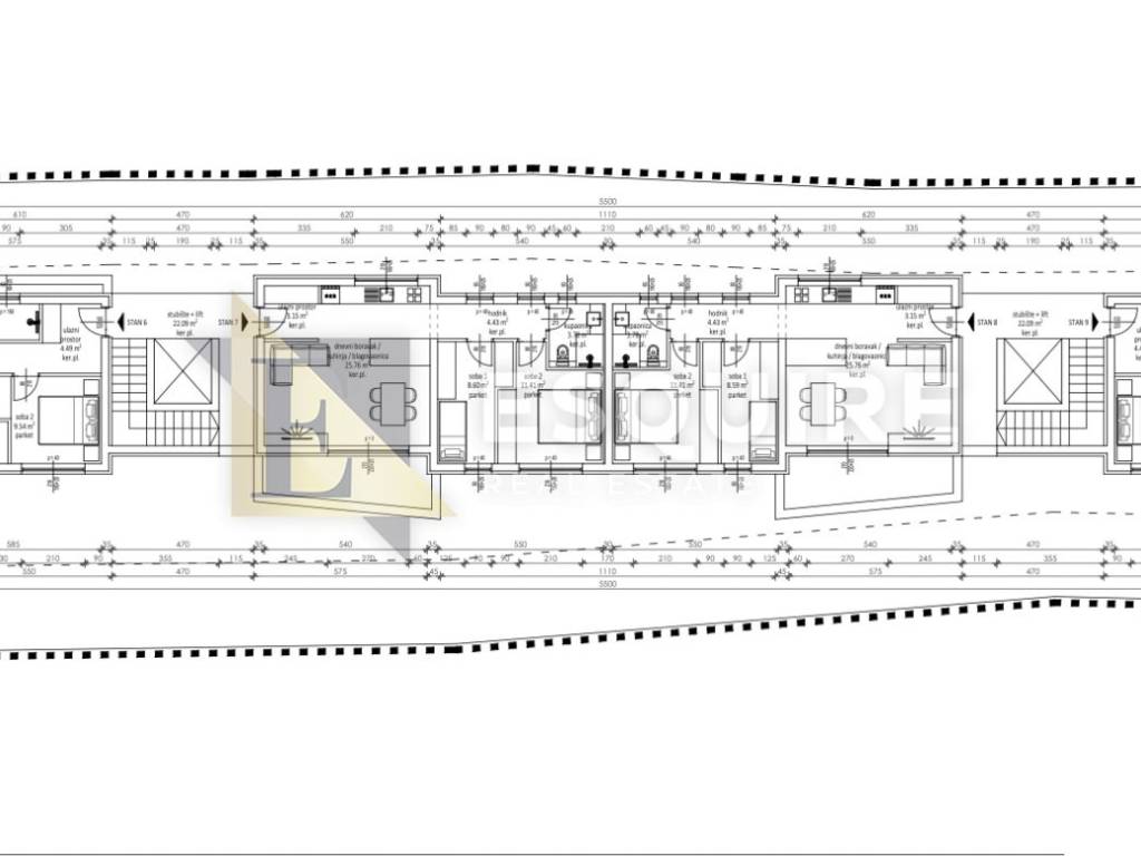
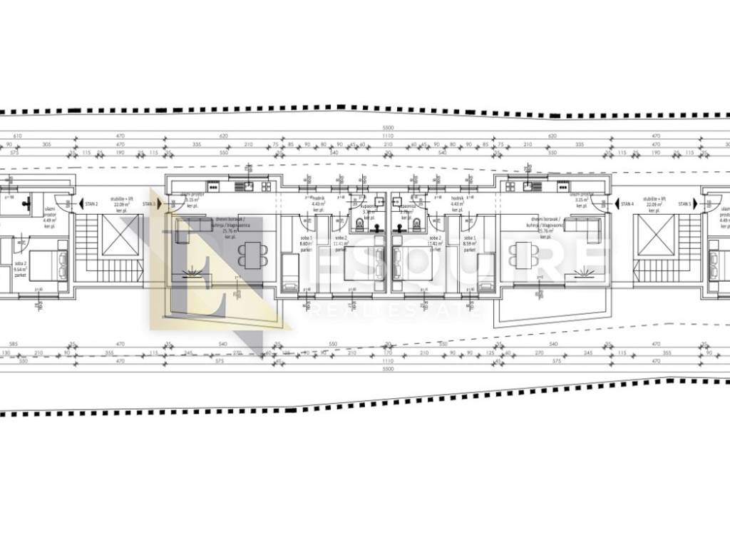
Prema idejnom projektu predviđena je izgradnja samostojeće stambene zgrade tipa C, katnosti P+2 (prizemlje + dva kata) s ukupno 9 stambenih jedinica raspoređenih po tri na svakoj etaži.

Svaki stan obuhvaća:
prostrani dnevni boravak s kuhinjom i blagovaonicom
2 spavaće sobe
kupaonicu i hodnik
balkon ili terasu s pogledom na more
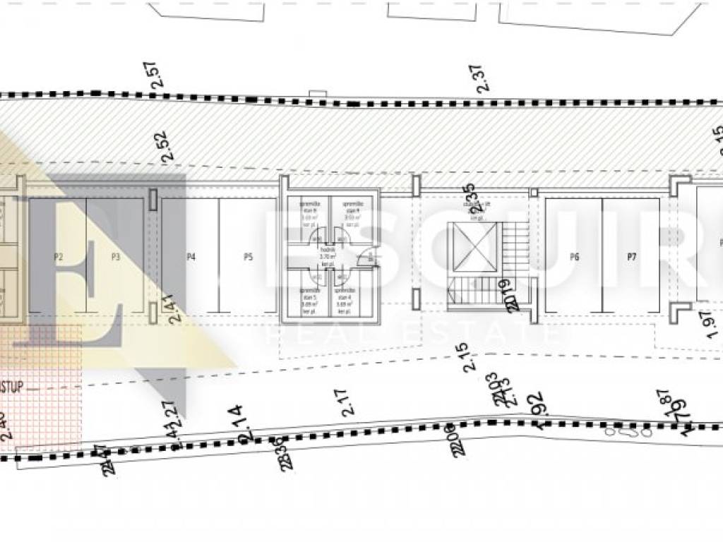
Projektom je osigurano 12 parkirnih mjesta na parceli.
Regulacijski pravac smješten je na spoju s prometnicom, dok je građevinski pravac udaljen 16,94 m od njega.

Tlocrtne i vizualne značajke:
Moderna arhitektura s čistim linijama i prostranim terasama
Funkcionalna raspodjela prostora i maksimalna iskoristivost površine
Orijentacija koja omogućava obilje prirodnog svjetla u stanovima
Ravni prohodni krov s mogućnošću uređenja dodatnog vanjskog prostora

O lokaciji:
Zaton je mirno primorsko naselje poznato po dugoj pješčano-šljunčanoj plaži, plitkom i toplom moru idealnom za obitelji s djecom te bogatoj turističkoj ponudi. U blizini se nalaze restorani, kafići, sportski sadržaji i brojne mogućnosti za rekreaciju.

Idealno za investitore – projekt omogućuje izgradnju kvalitetnog višestambenog objekta s iznimnim potencijalom za turistički najam ili prodaju pojedinih jedinica.

Vlasništvo: uredno, bez tereta!
Investitor je pravna osoba i u sustavu je PDV-a, te kupac ne plaća porez na promet nekretnina!

Zainteresirane kupce molimo da nas kontaktiraju putem:

Telefona: +385 91 788 2020
Email: jkl@esquire.hr

ID CODE: 853

Jelena Kolovrat Lisica
Ovlašteni posrednik
Mob: +385 91 788 2020
E-mail: jelena@esquire.hr
www.esquire.hr
Značajke
Ugovor
Prodaja
Vrsta
Građevinsko zemljište
Površina
1.221 m²
Informacije o cijeni
Cijena
€ 488.400
Cijena po m²
400 €/m²
Otkrijte svaki kutak nekretnine
+9
Dodatne mogućnosti

Obratite se oglašivaču

Ili