Građevinsko zemljište za Prodaja

€ 570.000
3.376 m²

Bilješka

Oglas ažuriran 22. 01. 2026.
Opis

referenca: ID01015

Poreč okolica, projekt sa pet kuća za odmor sa bazenima


Na prodaju je zemljište pravilnog oblika, smješteno na blago uzdignutom terenu na rubu urbane zone. Trenutno je u tijeku parcelacija, a zahtjevi za građevinske dozvole su već predani.

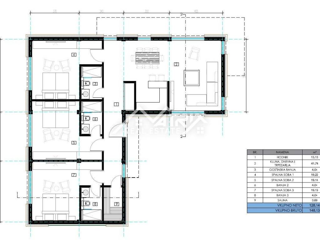
Za ovo zemljište izrađen je idejni projekt za gradnju pet modernih kuća s bazenima. Projekt obuhvaća tri prizemne kuće, svaka s tri spavaće sobe, i dvije katnice, svaka s četiri spavaće sobe.

Zemljište je udaljeno samo 20 minuta vožnje automobilom od centra Poreča, a pristup je osiguran asfaltnim putem. Priključci za vodu i struju bit će dovedeni do same parcele.

Zemljište je u vlasništvu firme, stoga se prilikom kupnje ne plaća porez na promet nekretnina.

Ovo je izvrsna prilika za investitore, idealno za izgradnju kuća za odmor, stanovanje ili turističke svrhe.

Za više informacija, kontaktirajte nas!

ID CODE: ID01015

Kristijan Benić
Agent s licencom
Mob: +385 95 905 75 31
Tel: +385 52 417 779
E-mail: kristijan@matrixrealestate.hr
www.matrixrealestate.hr

Matrix Real Estate
Voditelj ureda
Mob: +385 52 417 779
Tel: +385 52 417 779
E-mail: info@matrixrealestate.hr
https://matrixrealestate.hr/
Značajke
Ugovor
Prodaja
Vrsta
Građevinsko zemljište
Površina
3.376 m²
Informacije o cijeni
Cijena
€ 570.000
Cijena po m²
169 €/m²
Otkrijte svaki kutak nekretnine
+17
Dodatne mogućnosti

Obratite se oglašivaču

Ili