Građevinsko zemljište za Prodaja

€ 150.000
758 m²

Bilješka

Oglas ažuriran 22. 01. 2026.
Opis

referenca: ID01017

Poreč okolica, građevinsko zemljište sa projektom za prizemnicu

Na prodaju je građevinsko zemljište pravilnog oblika površine 758 m², smješteno na blago uzdignutom terenu na rubu urbane zone. Trenutno je u tijeku parcelacija, a zahtjevi za građevinsku dozvolu su već predani.

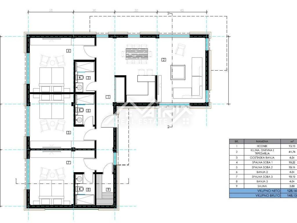
Za ovo zemljište izrađen je idejni projekt za modernu prizemnicu koja obuhvaća dnevni boravak, kuhinju i blagovaonicu, tri spavaće sobe, svaka s vlastitom kupaonicom, mali gostinjski WC te vanjski bazen.

Zemljište je udaljeno samo 20 minuta vožnje automobilom od centra Poreča, a pristup je osiguran asfaltnim putem. Priključci za vodu i struju bit će dovedeni do same parcele.

Zemljište je u vlasništvu firme, stoga se prilikom kupnje ne plaća porez na promet nekretnina.

Ovo je izvrsna prilika za investitore, idealno za gradnju kuće za odmor, stanovanje ili turističke svrhe.

Za više informacija, kontaktirajte nas!

ID CODE: ID01017

Kristijan Benić
Agent s licencom
Mob: +385 95 905 75 31
Tel: +385 52 417 779
E-mail: kristijan@matrixrealestate.hr
www.matrixrealestate.hr

Matrix Real Estate
Voditelj ureda
Mob: +385 52 417 779
Tel: +385 52 417 779
E-mail: info@matrixrealestate.hr
https://matrixrealestate.hr/
Značajke
Ugovor
Prodaja
Vrsta
Građevinsko zemljište
Površina
758 m²
Informacije o cijeni
Cijena
€ 150.000
Cijena po m²
198 €/m²
Otkrijte svaki kutak nekretnine
+5
Dodatne mogućnosti

Obratite se oglašivaču

Ili