Obiteljska kuća Brtonigla, Brtonigla

€ 260.000
5+
261 m²
2
Ne

Bilješka

Oglas ažuriran 22. 01. 2026.
Opis

referenca: ID03194

Novigrad okolica, dvojna kuća s pogledom na more

Prodaje se dvojna kuća s pogledom na more u okolici Novigrada.

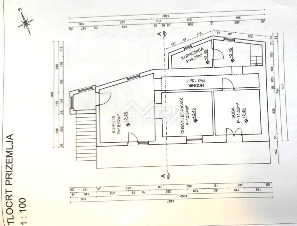
Kuća se prostire na tri etaže – prizemlje, prvi kat i drugi kat – ukupne površine 261 m².
U prizemlju se nalazi prostrana konoba s kaminom, soba, kupaonica, spremište te garaža. Vanjskim stepenicama dolazi se do prvog kata na kojem su smješteni dnevni boravak, kuhinja s blagovaonicom, spavaća soba, kupaonica, hodnik i terasa s koje se pruža prekrasan pogled na more i okolnu prirodu.
Unutarnjim stepenicama vodi se na drugi kat gdje su tri spavaće sobe, kupaonica, hodnik i još jedna terasa.

Kuća se prodaje namještena. Raspored prostorija je izuzetno funkcionalan, a s određenim adaptacijama ova nekretnina ima zaista veliki potencijal.

Grijanje je riješeno putem klima uređaja, centralnog grijanja na lož ulje i kamina, a zahvaljujući postojećoj instalaciji moguće je i postavljanje dizalice topline.
Okućnica površine 150 m² sastoji se od dvorišta s dodatnim parkirnim mjestima i lijepo uređenim vrtom. Postoji i mogućnost izgradnje bazena.

Kuća se nalazi u mirnoj ulici, a u blizini su svi potrebni sadržaji: restorani, agroturizmi, vinarije, kafići, trgovine, banka, pošta, škola, vrtić i drugi sadržaji. More je udaljeno svega nekoliko minuta vožnje.

Zbog odlične lokacije i potencijala, ova je kuća idealna kako za obiteljski život, tako i za odmor ili turističko iznajmljivanje.

ID CODE: ID03194

Lemi Brajković Bassanese
Suradnik u procesu obuke
Mob: +385 99 206 38 91
Tel: +385 52 417 779
E-mail: lemi@matrixrealestate.hr
https://matrixrealestate.hr/

Matrix Real Estate
Voditelj ureda
Mob: +385 52 417 779
Tel: +385 52 417 779
E-mail: info@matrixrealestate.hr
https://matrixrealestate.hr/
Značajke
Vrsta
Obiteljska kuća
Ugovor
Prodaja
Dizalo
Ne
Površina
261 m²
Prostorije
5+
Spavaće sobe
4
Kupaonice
2
Balkon
Ne
Terasa
Ne
Grijanje
Samostalno, štednjak
Klimatizacija
Samostalno, hlađenje/grijanje
Informacije o cijeni
Cijena
€ 260.000
Cijena po m²
996 €/m²
Energetska učinkovitost
  • Grijanje

    Samostalno, štednjak
  • Klima uređaj

    Samostalno, hlađenje/grijanje
  • Energetski certifikat

    Neklasificirano
Tlocrt
Otkrijte svaki kutak nekretnine
+23
Dodatne mogućnosti

Obratite se oglašivaču

Ili