Trosobni stan Vrbnik, Vrbnik

€ 1
3
82 m²
1
1
Ne
Terasa

Bilješka

Oglas ažuriran 08. 04. 2026.
Opis

referenca: 4411

Vrbnik, apartman u urbanoj vili, s pogledom na more!

Vrbnik, prodaja, apartman u novogradnji s prekrasnim pogledom na more!

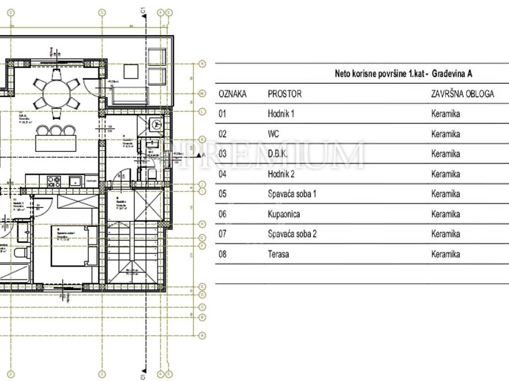
Apartman se nalazi na prvom katu urbane vile koja je trenutno u izgradnji.
Površine 82 m2, sastoji se od ulaznog prostora, hodnika, wc-a, kupaonice, dvije spavaće sobe, kuhinje s blagovaonom i dnevnim boravkom, s izlazom na terasu, s koje će se pružati prekrasni, otvoreni pogled na more!

Dva parkirna mjesta.

Apartman će krasiti moderan dizajn, funkcionalan raspored prostorija, visokokvalitetni materijali korišteni za izgradnju, PVC stolarija, podne obloge od keramike, sanitarije renomiranih proizvođača, klimatizacija svih prostorija.

Blizina centra i mora!

Prodaja po sistemu "ključ u ruke", useljenje je predviđeno za proljeće 2027 godine.
PDV u cijeni, kupac ne plaća porez na promet nekretnina!

ID CODE: 4411

Premium nekretnine Malinska
Mob: +385915474709
Tel: +38551858364
E-mail: info@premium-nekretnine.com
Značajke
Vrsta
Stan
Ugovor
Prodaja
Kat
1 kat
Katovi zgrade
1
Dizalo
Ne
Površina
82 m²
Prostorije
3
Spavaće sobe
2
Kupaonice
1
Balkon
Ne
Terasa
Da
Garažno mjesto, parkirna mjesta
2 na zajedničkom parkingu
Grijanje
Samostalno, zrak
Klimatizacija
Samostalno, hlađenje/grijanje
Informacije o cijeni
Cijena
€ 1
Cijena po m²
0 €/m²
Energetska učinkovitost
  • Godina izgradnje

    2026
  • Grijanje

    Samostalno, zrak
  • Klima uređaj

    Samostalno, hlađenje/grijanje
  • Energetski certifikat

    Neklasificirano
Otkrijte svaki kutak nekretnine
+9
Dodatne mogućnosti

Obratite se oglašivaču

Ili