Obiteljska kuća Dobrinj, Dobrinj

€ 295.000
5
134 m²
2
Ne
Terasa

Bilješka

Oglas ažuriran 06. 02. 2026.
Opis

referenca: 3829

Uvala Soline, započeta gradnja s bazenom i pogledom na more!

Uvala Soline, prodaja, započeta gradnja samostojeće kuće s bazenom!

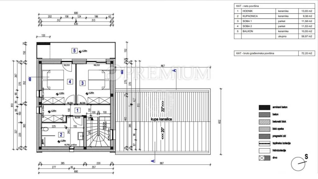
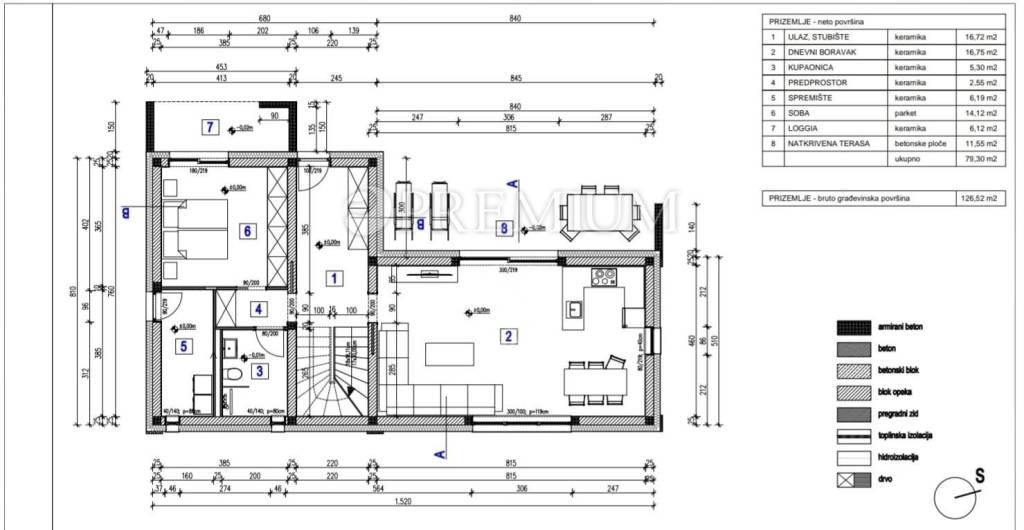
Na parceli od 640 m2 po projektu predviđena je građevina ukupne stambene površine 134 m2, u obliku velikog slova ''L''.
Sastoji se od dva dijela. Osnovni dio je pravokutnog tlocrtnog oblika širine 6,80 m i dužine 8,10 m. Sekundarni dio zgrade koji se nalazi na sjevernoj strani je četverokutnik, tlocrtnih dimenzija 5,10 x 15,20 m. Sa zapadne strane dodana je natkrivena terasa tlocrtnih dimenzija 1,50 x 4,53 m.

Namjena građevine je stambena građevina za stanovanje – obiteljska kuća sa uređenim jednim stanom. Arhitektonsko-urbanističke karakteristike objekta definirane su lokalnom izgradnjom, odrednicama prostornog plana i specifičnostima parcele.

U prizemlju, površine 79 m2, predviđeni su slijedeći sadržaji: ulaz sa predprostorom i stubištem, dnevni prostor s dnevnim boravkom, kuhinjom, blagovaonicom i nenatkrivenom terasom, soba, kupaona, spremište, predprostor i natkrivena terasa odnosno loggia, a na katu, površine 55 m2, dvije spavaće sobe, predprostor, stubište, kupaonica te balkon.

Na okućnici je previđeno više parkirnih mjesta.

Mirna lokacija, 2 km od mora, blizina svih sadržaja.

ID CODE: 3829

Premium nekretnine Malinska
Mob: +385915474709
Tel: +38551858364
E-mail: info@premium-nekretnine.com
Značajke
Vrsta
Obiteljska kuća
Ugovor
Prodaja
Katovi zgrade
1
Dizalo
Ne
Površina
134 m²
Prostorije
5
Spavaće sobe
3
Kupaonice
2
Balkon
Ne
Terasa
Da
Garažno mjesto, parkirna mjesta
2 na zajedničkom parkingu
Klimatizacija
Samostalno, hlađenje/grijanje
Ostale karakteristike
  • Protuprovalna vrata
Informacije o cijeni
Cijena
€ 295.000
Cijena po m²
2.201 €/m²
Energetska učinkovitost
  • Godina izgradnje

    2025
  • Klima uređaj

    Samostalno, hlađenje/grijanje
  • Energetski certifikat

    Neklasificirano
Tlocrt
Dodatne mogućnosti

Obratite se oglašivaču

Ili