1/20


Trosobni stan Rogoznica, Rogoznica
€ 250.000
Oglas ažuriran 20. 03. 2026.
Opis
referenca: 334
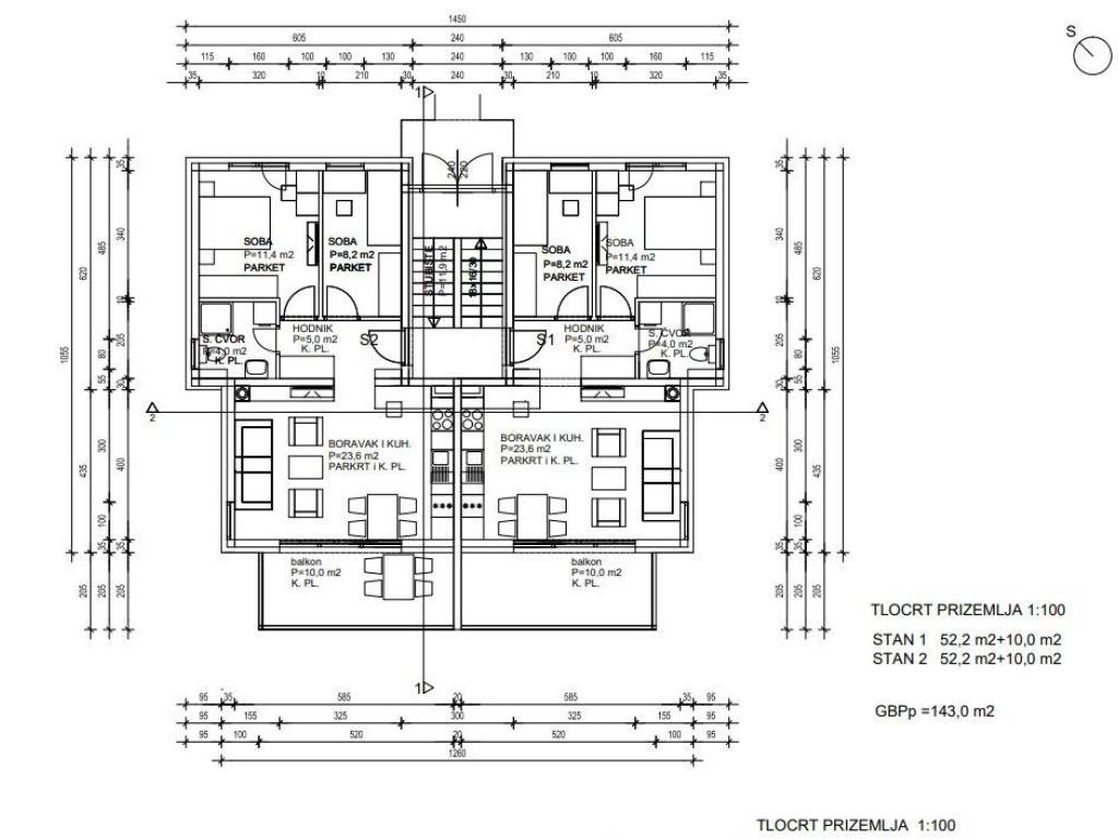
ROGOZNICA - NOVOGRADNJA, DVOSOBNI STANOVI P = 59.10 M2
Prodaje se 9 stanova u dvije zgrade u novogradnji u Rogoznici.
Tlocrt i raspored prostorija:
Hodnik
Spavaća soba 1
Spavaća soba 2
Kupaonica
Dnevni boravak s kuhinjom i blagovaonicom
Balkon
Parkirno mjesto
S terasa se pruža otvoren pogled na more, što stanu daje dodatnu vrijednost te ga čini idealnim za cjelogodišnje uživanje u mediteranskom ambijentu.
Dostupni stanovi u projektu:
Zgrada 1
S3 - 250 000€
S4 - 250 000€
S5 - 250 000€
S6 - 250 000€
Zgrada 2
S1 - 250 000€
S2 - 250 000€
S4 - 250 000€
S5 - 250 000€
S6 - 250 000€
Lokacija i udaljenosti:
Centar Rogoznice: 300 m
Zračna luka Split: cca 35 km
Grad Šibenik: cca 35 km
Za dodatne informacije ili dogovor oko obilaska nekretnine, slobodno nas kontaktirajte.
ID CODE: 334
Iva Kalabrić
Mob: +385995616651
E-mail: iva@materra.estate
www.materra.estate
Značajke
- Vrsta
- Stan
- Ugovor
- Prodaja
- Katovi zgrade
- 2
- Dizalo
- Ne
- Površina
- 59 m²
- Prostorije
- 3
- Spavaće sobe
- 2
- Kupaonice
- 1
- Balkon
- Da
- Terasa
- Ne
- Garažno mjesto, parkirna mjesta
- 1 na zajedničkom parkingu
Informacije o cijeni
- Cijena
- € 250.000
- Cijena po m²
- 4.237 €/m²
Energetska učinkovitost
Godina izgradnje
2025Energetski certifikat
Neklasificirano
Otkrijte svaki kutak nekretnine
Dodatne mogućnosti