Trosobni stan Rogoznica, Rogoznica

€ 250.000
3
59 m²
1
PR
Ne

Bilješka

Oglas ažuriran 20. 03. 2026.
Opis

referenca: 335

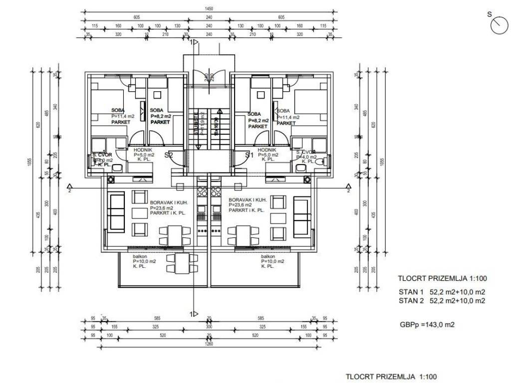
ROGOZNICA - NOVOGRADNJA, DVOSOBNI STAN S1-2 P = 59.10 M2

Stan S1-2 nalazi se u prizemlju moderne stambene zgrade i ističe se funkcionalnim rasporedom te prostranim vanjskim prostorima. Neto korisna površina 59,10 m².

Tlocrt i raspored prostorija:
Hodnik – 5,00 m²
Spavaća soba 1 – 11,40 m²
Spavaća soba 2 – 8,20 m²
Kupaonica – 4,00 m²
Dnevni boravak s kuhinjom i blagovaonicom – 23,60 m²
Balkon – 10,00 m²
Parkirno mjesto – 12,5 m²

S terasa se pruža otvoren pogled na more, što stanu daje dodatnu vrijednost te ga čini idealnim za cjelogodišnje uživanje u mediteranskom ambijentu.

Dostupni stanovi u projektu:

Zgrada 1
S3-1 - 250 000€
S4-1 - 250 000€
S5-1 - 250 000€
S6-1 - 250 000€

Zgrada 2
S1-2 - 250 000€
S2-2 - 250 000€
S4-2 - 250 000€
S5-2 - 250 000€
S6-2 - 250 000€

Lokacija i udaljenosti:

Centar Rogoznice: 300 m
Zračna luka Split: cca 35 km
Grad Šibenik: cca 35 km

Za dodatne informacije ili dogovor oko obilaska nekretnine, slobodno nas kontaktirajte.

ID CODE: 335

Iva Kalabrić
Mob: +385995616651
E-mail: iva@materra.estate
www.materra.estate
Značajke
Vrsta
Stan
Ugovor
Prodaja
Kat
Prizemlje
Katovi zgrade
2
Dizalo
Ne
Površina
59 m²
Prostorije
3
Spavaće sobe
2
Kupaonice
1
Balkon
Ne
Terasa
Ne
Garažno mjesto, parkirna mjesta
1 na zajedničkom parkingu
Informacije o cijeni
Cijena
€ 250.000
Cijena po m²
4.237 €/m²
Energetska učinkovitost
  • Godina izgradnje

    2025
  • Energetski certifikat

    Neklasificirano
Otkrijte svaki kutak nekretnine
+8
Dodatne mogućnosti

Obratite se oglašivaču

Ili