Dvosobni stan Brodarica, Šibenik - Okolica, Šibenik

€ 200.000
2
53 m²
1
Ne

Bilješka

Oglas ažuriran 29. 04. 2026.
Opis

referenca: 386

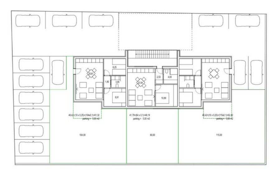
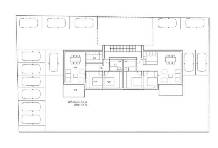
BRODARICA- NOVOGRADNJA, STANOVI OD 67,42M2 - 79,37M2,

U ponudi je 5 stambenih jedinica smještenih u suvremeno dizajniranoj zgradi koja se nalazi u mirnom i atraktivnom dijelu naselja.

Svakoj stambenoj jedinici pripadaju dva vlastita parkirng mjesta, koje su uključeno u cijenu.

Zgrada se projektira i izvodi prema najnovijim standardima moderne gradnje

Dostupni stanovi

Stan S3 - 67.42 m² - 235 000€
Stan S4 - 79.36 m² - 260 000€
Stan S5 - 79.36 m² - 260 000€
Stan S6 - 79.36 m² - 280 000€
Stan S7 - 79.36 m² - 285 000€

Lokacija je izuzetno pogodna kako za svakodnevno stanovanje tako i za odmor, s obzirom na to da se plaža nalazi na svega 400 metara udaljenosti. Završetak gradnje planiran je za 2026. godinu.

Za sve dodatne informacije i dogovor o razgledavanju, stojimo na raspolaganju.

ID CODE: 386

Andro Jakoliš
Mob: +385 99 347 3562
E-mail: andro@materra.estate
www.materra.estate
Značajke
Vrsta
Stan
Ugovor
Prodaja
Katovi zgrade
2
Dizalo
Ne
Površina
53 m²
Prostorije
2
Spavaće sobe
1
Kupaonice
1
Balkon
Ne
Terasa
Ne
Garažno mjesto, parkirna mjesta
2 na zajedničkom parkingu
Klimatizacija
Samostalno, hlađenje/grijanje
Informacije o cijeni
Cijena
€ 200.000
Cijena po m²
3.774 €/m²
Energetska učinkovitost
  • Godina izgradnje

    2026
  • Klima uređaj

    Samostalno, hlađenje/grijanje
  • Energetski certifikat

    Neklasificirano
Otkrijte svaki kutak nekretnine
+4
Dodatne mogućnosti

Obratite se oglašivaču

Ili