Četverosobni stan Pješčana Uvala, Medulin, Pješčana Uvala, Vinkuran, Medulin

€ 455.000
4
120 m²
2
2
Ne
Terasa

Bilješka

Oglas ažuriran 31. 03. 2026.
Opis

referenca: 2921

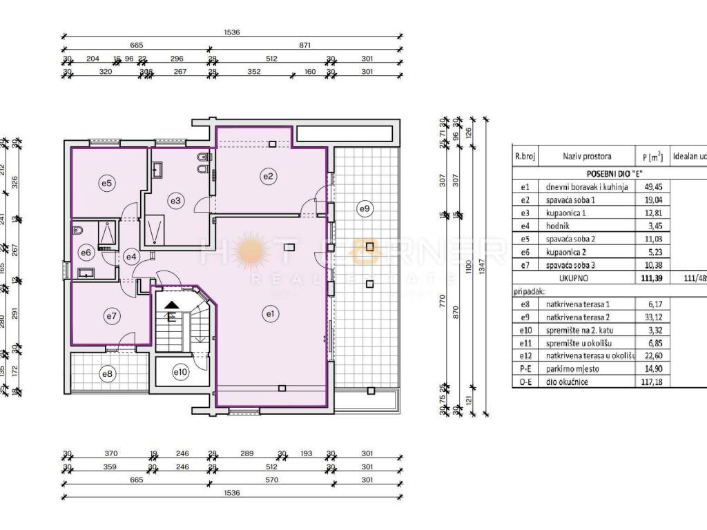
PENTHOUSE, 120 m2, 3SS+DB, jacuzzi, pogled more

Pula, na odličnoj lokaciji samo 150 m od mora, prodaje se prekrasan
PENTHOUSE na 2. katu površine 120 m2, s pogledom na more.

Stan je netto površine 120 m2, te se sastoji od 2 prostrane kupaonice,
ulaznog hodnika, 3 spavaće sobe, prostora u kojem se nalaze
kuhinja, blagovaonica i dnevni boravak, te velike vanjske terase.

Stan je namješten i opremljen kvalitetnim namještajem izrađenim na
mjeru, kao i klimatizacijskim sustavom.U kupaonicama je instalirano i
podno grijanje.

Savršena nekretnina na savršenoj lokaciji (5 minuta pješice do mora).

Na ugovorenu prodajnu cijenu kupac plača agencijsku proviziju od 3% + pdv.

Uredno vlasništvo 1/1.

Za sve informacije i razgledavanja: +38598829209 (Viber, WhatsApp)

ID CODE: 2921

Maja Jurišić
Ovlašteni agent
Mob: +385 98 82 92 09
Tel: +385 52 212 841
Fax: +385 52 212 841
E-mail: maja@hotcorner.hr
www.hotcorner.hr
Značajke
Vrsta
Stan
Ugovor
Prodaja
Kat
2 kat
Katovi zgrade
2
Dizalo
Ne
Površina
120 m²
Prostorije
4
Spavaće sobe
3
Kupaonice
2
Balkon
Ne
Terasa
Da
Garažno mjesto, parkirna mjesta
1 na zajedničkom parkingu
Grijanje
Samostalno, zrak
Klimatizacija
Samostalno, hlađenje/grijanje
Informacije o cijeni
Cijena
€ 455.000
Cijena po m²
3.792 €/m²
Energetska učinkovitost
  • Grijanje

    Samostalno, zrak
  • Klima uređaj

    Samostalno, hlađenje/grijanje
  • Energetski certifikat

    Neklasificirano
Otkrijte svaki kutak nekretnine
+34
Dodatne mogućnosti

Obratite se oglašivaču

Ili