Četverosobni stan Supetar, Supetar

€ 343.320
4
114 m²
2
PR
Ne
Terasa

Bilješka

Oglas ažuriran 22. 01. 2026.
Opis

referenca: 172

Brač, Supetar, stan prizemlje, parking

Supetar

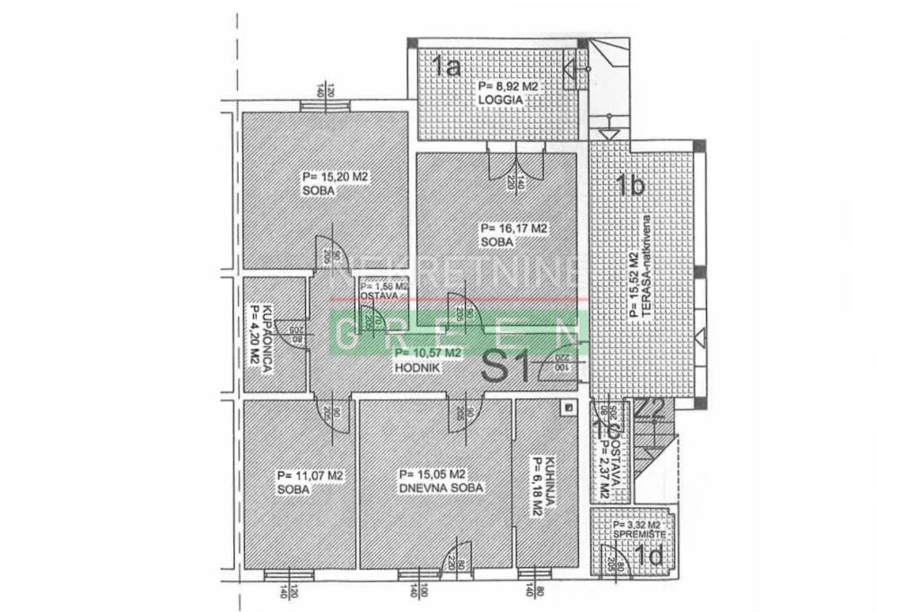
Stan površine 114,44 m2 u prizemlju dvojne kuće izgrađene 1990. godine.

Unutarnji zatvoreni dio (neto površina 80,00 m2):
- 2 dnevna boravka s kuhinjom i blagovaonicom, 2 sobe, 2 kupaonice s wc-om i tuš kadom, ostava i hodnik

Vanjski zatvoreni dio (neto površina 2,49 m2):
- ostava i spremište

Vanjski otvoreni dio (neto površina 31,95 m2)
- loggia površine 8,92 m2, natkrivena terasa površine 15,52 m2,
- 2 parkirna mjesta, svako površine 17,20 m2, 2 vrta površine 45,50 m2 i 60,70 m2

Do centra mjesta i trajektne luke udaljenost 1 km.

U naravi se u etaži prizemlja nalaze 2 apartmana s uhodanim poslom turističkog iznajmljivanja.

Orijentacija: sjever, istok
Energetski razred: B
Priključena komunalna infrastruktura: el. energija, voda, odvodnja
Grijanje/hlađenje: klima uređaj
Cijena: 343.320,00 EUR
Posrednička naknada: Kupac ne plaća posredničku naknadu

https://nekretnine-green.hr/
ID: 172

ID CODE: 172

Danijel Mrković
Agent s licencom
Mob: 095 352 0311
Tel: 095 3520 311
E-mail: info@nekretnine-green.hr
www.nekretnine-green.hr
Značajke
Vrsta
Stan
Ugovor
Prodaja
Kat
Prizemlje
Katovi zgrade
2
Dizalo
Ne
Površina
114 m²
Prostorije
4
Spavaće sobe
2
Kupaonice
2
Balkon
Ne
Terasa
Da
Garažno mjesto, parkirna mjesta
2 na zajedničkom parkingu
Klimatizacija
Samostalno, hlađenje/grijanje
Informacije o cijeni
Cijena
€ 343.320
Cijena po m²
3.012 €/m²
Energetska učinkovitost

Potrošnja energije

B

Tlocrt
Otkrijte svaki kutak nekretnine
+9
Dodatne mogućnosti

Obratite se oglašivaču

Ili