Četverosobni stan Supetar, Supetar

€ 342.000
4
100 m²
2
1
Ne
Terasa

Bilješka

Oglas ažuriran 22. 01. 2026.
Opis

referenca: 173

Brač, Supetar, stan 1. kat, parking

Supetar

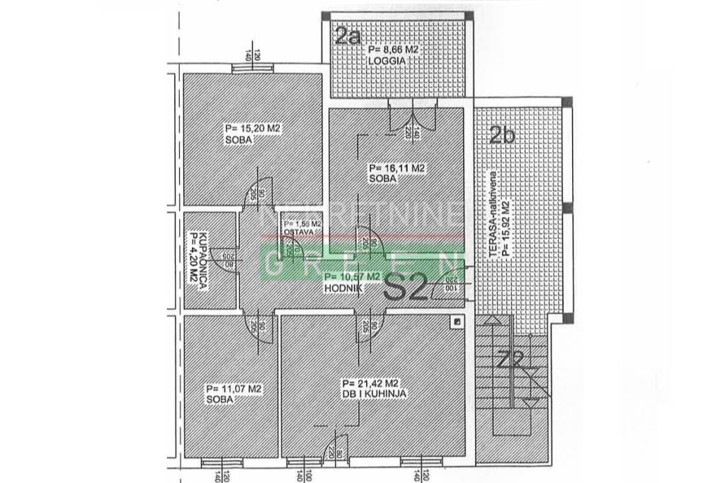
Stan površine 100,59 m2 na 1. katu dvojne kuće izgrađene 1990. godine.

Zatvoreni dio (neto površina 80,13 m2):
- 2 dnevna boravka s kuhinjom i blagovaonicom, 2 sobe, 2 kupaonice s wc-om i tuš kadom, ostava i hodnik

Otvoreni dio (neto površina 20,46 m2)
- loggia površine 8,66 m2, natkrivena terasa površine 15,52 m2,
- 2 parkirna mjesta, površine 15,40 m2 i 15,60 m2

Do centra mjesta i trajektne luke udaljenost 1 km.

U naravi se u etaži 1. kata nalaze 2 apartmana s uhodanim poslom turističkog iznajmljivanja.

Orijentacija: sjever, istok
Energetski razred: B
Priključena komunalna infrastruktura: el. energija, voda, odvodnja
Grijanje/hlađenje: klima uređaj
Cijena: 342.000,00 EUR
Posrednička naknada: Kupac ne plaća posredničku naknadu

https://nekretnine-green.hr/
ID: 173

ID CODE: 173

Danijel Mrković
Agent s licencom
Mob: 095 352 0311
Tel: 095 3520 311
E-mail: info@nekretnine-green.hr
www.nekretnine-green.hr
Značajke
Vrsta
Stan
Ugovor
Prodaja
Kat
1 kat
Katovi zgrade
2
Dizalo
Ne
Površina
100 m²
Prostorije
4
Spavaće sobe
2
Kupaonice
2
Balkon
Ne
Terasa
Da
Garažno mjesto, parkirna mjesta
2 na zajedničkom parkingu
Klimatizacija
Samostalno, hlađenje/grijanje
Informacije o cijeni
Cijena
€ 342.000
Cijena po m²
3.420 €/m²
Energetska učinkovitost

Potrošnja energije

B

Tlocrt
Otkrijte svaki kutak nekretnine
+18
Dodatne mogućnosti

Obratite se oglašivaču

Ili