Obiteljska kuća Labin, Labin

€ 700.000
5+
283 m²
3+
Ne

Bilješka

Oglas ažuriran 22. 01. 2026.
Opis

referenca: 2006-139

Labin, okolica, villa sa bazenom i prostranom okućnicom

Labin, okolica, moderna villa sa bazenom, novogradnja.

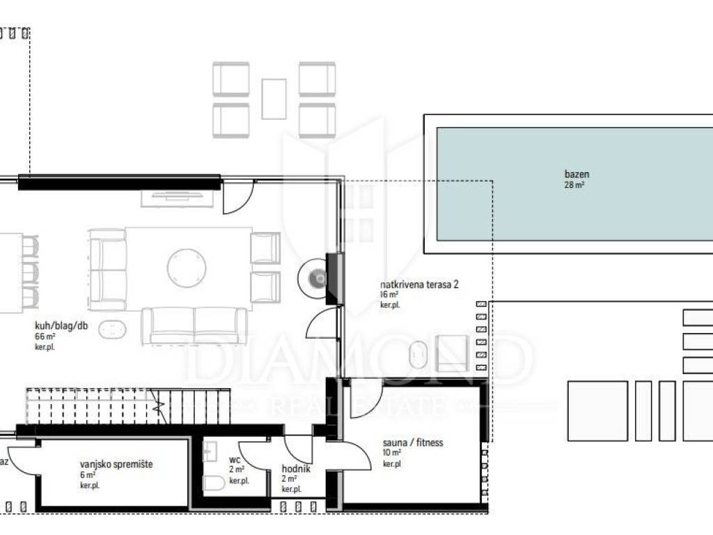
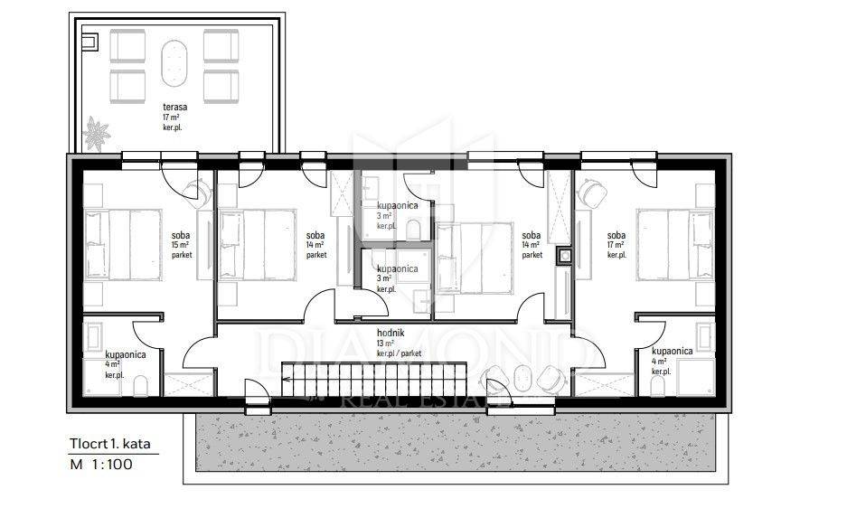
Ukoliko tražite savršeno mjesto za odmor, ova prekrasna villa sa bazenom u novogradnji u okolici Labina je idealna za vas. Villa ukupne površine 283 kvadratnih metara stambenog prostora nalazi se na 2000 kvadratnih metara okućnice. Villa se sastoji od prizemlja i kata. Prizemlje ove prekrasne ville sastoji se od prostranog open-space prostora koji uključuje kuhinju, blagovaonicu i dnevni boravak. U prizemlju se također nalazi prostorija za saunu sa koje prelazimo na natkrivenu terasu koja je opremljena ljetnom kuhinjom i grijanim bazenom ukupne kvadrature 48m2. Na prvom katu ove ville smjestile su nam se 4 spavaće sobe, svaka sa vlastitom kupaonicom. Pitanje grijanja i hlađenja riješeno je postavljenim klima uređajima, fan coil sistemom podnog grijanja te su postavljene solarne elektrane za smanjenu potrošnju energije. Villa se nalazi u mirnoj ulici a opet blizu svih potrebnih sadržaja potrebnih za život. Od grada Labina villa je udaljena deset minuta dok do prve plaže svega petnaestak minuta vožnje.

ID CODE: 2006-139
Značajke
Vrsta
Obiteljska kuća
Ugovor
Prodaja
Katovi zgrade
1
Dizalo
Ne
Površina
283 m²
Prostorije
5+
Spavaće sobe
4
Kupaonice
3+
Balkon
Ne
Terasa
Ne
Ostale karakteristike
  • Alarmni sustav
Informacije o cijeni
Cijena
€ 700.000
Cijena po m²
2.473 €/m²
Energetska učinkovitost
  • Godina izgradnje

    2024
  • Energetski certifikat

    Neklasificirano
Otkrijte svaki kutak nekretnine
+9
Dodatne mogućnosti

Obratite se oglašivaču

Ili