Dvosobni stan Štinjan, Pula, Štinjan, Pula

€ 215.000
2
52 m²
1
1
Ne
Terasa

Bilješka

Oglas ažuriran 22. 01. 2026.
Opis

referenca: MS-1203

Istra, Štinjan, prodaje se stan na 1.katu novogradnja.

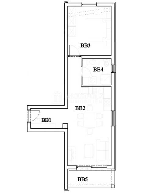
Istra, Štinjan, prodaje se stan na prvom katu stambene zgrade sa jednom spavaćom sobom, dnevnim boravkom, kupatilom, terasom, ukupne kvadrature 52,04m2 koji se nalazi na 600m udaljenosti od uređenih plaža. Stan je opremljen podnim grijanjem, električnim podizačima roletna, komarnicima te vlastitim parking mjestom.
Odlična gradnja!! NOVO!!!

stambene zgrade sa jednom spavaćom sobom, dnevnim boravkom, kupatilom, terasom, ukupne kvadrature 52,04m2.
Stan se nalazi na 600m udaljenosti od uređenih plaža. Stan je opremljen podnim grijanjem, električnim podizačima roletna, komarnicima te vlastitim parking mjestom.
Odlična gradnja!! NOVO!!!

ID CODE: MS-1203

Mila Marković
Agent s licencom
Mob: 00385976199610
Tel: 097 619 9610
E-mail: milamarkovic5@gmail.com
www.akropola-immobilien.com
Značajke
Vrsta
Stan
Ugovor
Prodaja
Kat
1 kat
Dizalo
Ne
Površina
52 m²
Prostorije
2
Spavaće sobe
1
Kupaonice
1
Balkon
Ne
Terasa
Da
Garažno mjesto, parkirna mjesta
1 na zajedničkom parkingu
Klimatizacija
Samostalno, hlađenje/grijanje
Informacije o cijeni
Cijena
€ 215.000
Cijena po m²
4.135 €/m²
Energetska učinkovitost
  • Godina izgradnje

    2025
  • Klima uređaj

    Samostalno, hlađenje/grijanje
  • Energetski certifikat

    Neklasificirano
Otkrijte svaki kutak nekretnine
+5
Dodatne mogućnosti

Obratite se oglašivaču

Ili