map icon

Dvosobni stan Punta Kolova, Opatija, Opatija

OpatijaPunta Kolova, Opatija
€ 598.000
2
179 m²
1
M
Ne
Terasa

Bilješka

Oglas ažuriran 21. 04. 2026.
Opis

referenca: 101-062

Opatija – Nezavršen stan 1S+DB se zasebnim apartmanom i fantastičnim pogledom

Agencija za nekretnine Kaiser Immobilien iz Opatije predstavlja iz svoje ponude nezavršen prostrani stan koji se nalazi u novijoj vili s ukupno tri stana smještenoj na maksimalno mirnoj lokaciji u neposrednoj blizini centra Opatije i obale.

Stan se nalazi u visokom prizemlju i suterenu i u ovoj fazi nudi veliki broj opcija za završetak finalnog rasporeda stana.

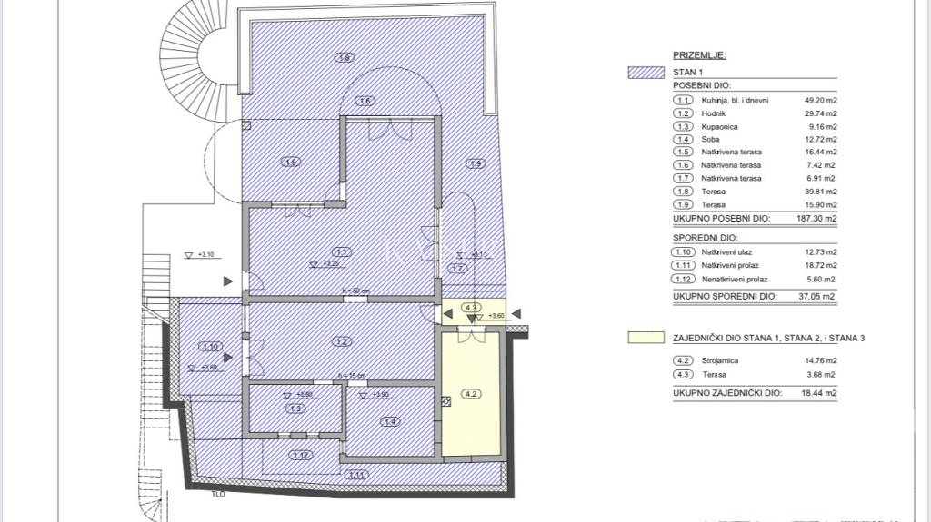
Stan se sastoji od kuhinje s blagavaonicom i dnevnim boravkom, hodnika, kupaonice, sobe, tri natkrivene terase i dvije nenatkrivene terase u prizemlju ukupne površine 187,30 m2.
Stanu pripada i sporedni dio - natkriveni ulaz površine 12,73 m2, natkriveni prolaz površine 18,72 m2 i nenatkriveni prolaz površine 5,60 m2, sve u visokom prizemlju.
U suterenu se nalazi još i loggia površine 39,33 m2.
Stan ima i vlastito parkirno mjesto površine 12,50 m2.

Ukupna površina stana bez vanjskih dijelova iznosi 100,82 m2, terase i balkoni dodaju još 162,86 m2.
Sveukpna površina nekretnine je 276,18 m2, čista površina uzimajući u obzir odgovarajuće koeficijente je 179.26 m2.

U stanu su provedene sve instalacije, prozore i vrata trebat će zamijeniti novima.

Sama vila u kojoj se stan nalazi bila je izgrađena na padini a sa sjeveroistočne i sjeverozapadne strane je okružena zelenilom.
Iz gotovo svih dijelova stana i prije svega ogromne terase ispred njega pruža se zaista fenomenalan panoramski pogled na more.
Osim cijelog Kvarnerskog zaljeva će novi vlasnici imati kao na dlanu i dio opatijske obale ili grad Rijeku.
Zahvaljujući velikim staklenim površinama i gotovo savršenoj orijentaciji je stan pun dnevne sjetlosti i sunca kroz cijeli dan.

Ispred loggie u suterenu eventualno bilo bi moguće napraviti bazen te loggiu ostakliti i koristiti kao zimski vrt ili zaseban studio (priložena vizualizacija).
Mogućnosti je zaista mnogo i samo će o mašti novih vlasnika ovisiti kako će ogroman potencijal cijelog prostora iskoristiti.

Nekretnina idealna za luksuzan obiteljski život sa svim sadržajima u neposrednoj blizini ili perspektivna investicija u svrhu elitnog turizma.
Na prodaju su i ostala dva stana a kupiti se može i cijela vila.

Obala i plaža: 650 m / 9 minuta hoda
Restoran: 900 m / 13 minuta hoda
Centar Opatije: 1,2 km / 15 minuta hoda
Centar Rijeke: 12 km / 20 minuta
Zračna luka Rijeka: 35 km / 30 minuta
Zračna luka Pula: 95 km / 60 minuta
Zagreb, Ljubljana: 120 km
Budimpešta, Beč, München: 500 km

Provizija agencije za kupca iznosi 3% + PDV.
Provizija pokriva sve usluge vezane uz kupnju i plaća se samo u slučaju kupovine nekretnine, kod zaključenja prvog pravnog akta.

Kuporodajna cijena nekretnine: 598.000,00 EUR
Posrednička naknada (3,75%): 22.425,00 EUR
Ukupna investicija: 620.425,00 EUR

Za detaljnije informacije, molimo Vas, kontaktirajte:
Jirka Nerad
Tel: +385 911 632 884
E-mail: jirka@kaiser-immobilien.hr
Hvala!

ID CODE: 101-062

Jirka Nerad
Agent s licencom u posredovanju u prometu nekretnina
Mob: +385911632884, +385995677888
E-mail: jirka@kaiser-immobilien.hr
www.kaiser-immobilien.hr
Značajke
Vrsta
Stan
Ugovor
Prodaja
Kat
Visoko prizemlje
Katovi zgrade
2
Dizalo
Ne
Površina
179 m²
Prostorije
2
Spavaće sobe
1
Kupaonice
1
Balkon
Ne
Terasa
Da
Garažno mjesto, parkirna mjesta
1 na zajedničkom parkingu
Grijanje
Centralno, podno grijanje
Informacije o cijeni
Cijena
€ 598.000
Cijena po m²
3.341 €/m²
Energetska učinkovitost
  • Godina izgradnje

    1980
  • Grijanje

    Centralno, podno grijanje
  • Energetski certifikat

    Neklasificirano
Tlocrt
Otkrijte svaki kutak nekretnine
+26
Dodatne mogućnosti

Obratite se oglašivaču

Ili