Dvosobni stan Njivice, Omišalj, Njivice, Omišalj

€ 236.000
2
53 m²
1
PR
Ne

Bilješka

Oglas ažuriran 11. 04. 2026.
Opis

referenca: 609

Luksuzni stan u prizemlju s vrtom, 53m2, VPM, Njivice, Otok Krk, NOVOGRADNJA

Luksuzni stan u novogradnji s vrtom – Njivice, otok Krk (400 m od mora)

U prodaji je moderan stan u prizemlju novogradnje smješten u mirnom dijelu Njivica na otoku Krku, svega 400 metara od mora i prekrasnih plaža. Ova elegantna novogradnja kombinira suvremenu arhitekturu, vrhunske materijale i funkcionalan raspored prostora, idealan za ugodan boravak ili investiciju.

Osnovne informacije
Lokacija: Njivice, otok Krk
Udaljenost od mora: 400 m
Kat: Prizemlje s vrtom
Neto korisna površina: 53,38 m²
Vrt: 8,89 m²
Parkirno mjesto: 2,5 m² obračunski (12,5 m² stvarno)
Početak radova: 10/2025
Završetak radova: 9/2026

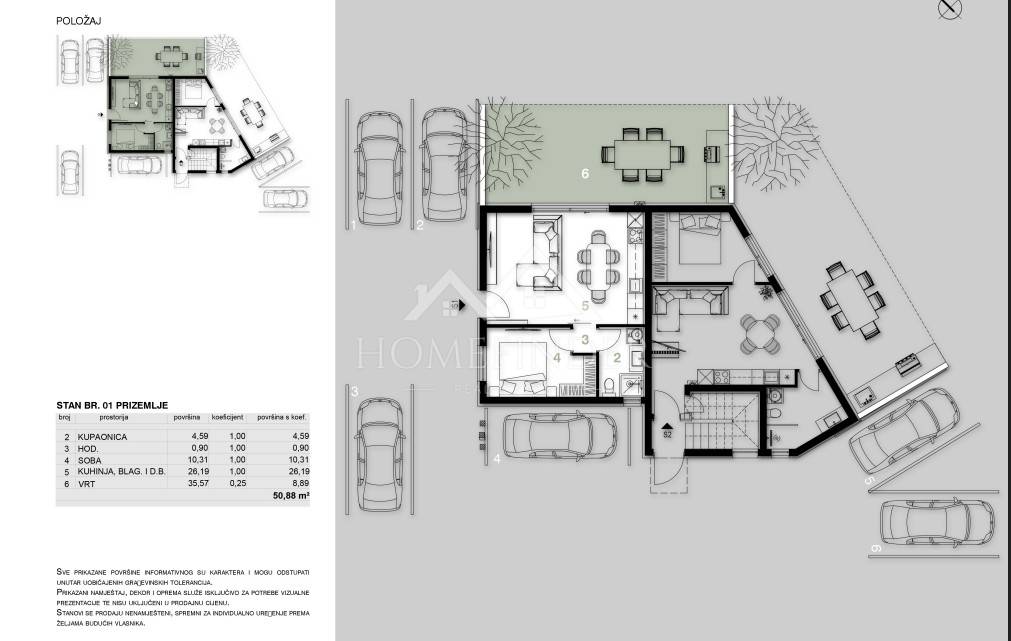
Raspored prostorija
Dnevni boravak, kuhinja i blagovaonica – 26,19 m²
Spavaća soba – 10,31 m²
Kupaonica – 4,59 m²
Hodnik – 0,90 m²
Vrt – 8,89 m² (35,57m2)
Parkirno mjesto – 2,5 m² obračunski (12,50m2)

Opis i oprema
Stan se odlikuje vrhunskom kvalitetom gradnje i pažljivo odabranim materijalima:
Podno grijanje u cijelom stanu s termostatom u svakoj prostoriji
PVC troslojna stolarija Rehau s podizno-kliznim stijenkama i ravnim pragom
Električne rolete i ugrađeni komarnici
Klima uređaji Mitsubishi u dnevnom boravku i svakoj spavaćoj sobi
Keramičke pločice visoke kvalitete u cijelom stanu
Walk-in tuš, sanitarije Hansgrohe, Geberit ugradbeni kotlić, Villeroy & Boch školjke
Protuprovalna i protupožarna ulazna vrata
Portafon sustav
Vanjski zid prizemlja obložen prirodnim kamenom
Fasada debljine 10 cm s izvrsnom toplinskom izolacijom

Dodatno
Zgrada se gradi prema najvišim standardima energetske učinkovitosti i modernog dizajna. Vrt nudi privatnost i prostor za opuštanje, a lokacija u Njivicama pruža mir, blizinu mora te brzi pristup svim sadržajima — trgovinama, restoranima i šetnicama.

Prednosti:
Mirna lokacija blizu mora
Vrhunski materijali i oprema
Privatni vrt i parkirno mjesto

Idealno za odmor ili dugoročno ulaganje

Za više informacija i rezervaciju termina prezentacije projekta, slobodno nas kontaktirajte.

KUPAC NE PLAČA AGENCIJSKU PROVIZIJU!

Kontakt:
Kristian Mikec (Direktor)
E-mail: info@homefinder.hr
Mob: 095 299 9996
www.homefinder.hr

ID CODE: 609

Kristian Mikec
Direktor
Mob: 095 299 9996
E-mail: k.mikec@homefinder.hr
www.homefinder.hr
Značajke
Vrsta
Stan
Ugovor
Prodaja
Kat
Prizemlje
Katovi zgrade
2
Dizalo
Ne
Površina
53 m²
Prostorije
2
Spavaće sobe
1
Kupaonice
1
Balkon
Ne
Terasa
Ne
Garažno mjesto, parkirna mjesta
1 na zajedničkom parkingu
Grijanje
Samostalno, zrak
Klimatizacija
Samostalno, hlađenje/grijanje
Ostale karakteristike
  • Alarmni sustav
Informacije o cijeni
Cijena
€ 236.000
Cijena po m²
4.453 €/m²
Energetska učinkovitost
  • Godina izgradnje

    2026
  • Grijanje

    Samostalno, zrak
  • Klima uređaj

    Samostalno, hlađenje/grijanje
  • Energetski certifikat

    Neklasificirano
Tlocrt
Otkrijte svaki kutak nekretnine
+11
Dodatne mogućnosti

Obratite se oglašivaču

Ili