Trosobni stan Opatija - Centar, Opatija, Centar, Opatija

€ 685.000
3
101 m²
2
2
Da
Balkon

Bilješka

Oglas ažuriran 05. 02. 2026.
Opis

referenca: 2870

OPATIJA CENTAR, 2+db u ekskluzivnoj novogradnji P5

Prodaje se luksuzni stan 2S+DB u novogradnji s bazenom, liftom i podzemnom garažom u srcu Opatije, smješten na idealnoj lokaciji s pogledom na more.

Stan se sastoji od hodnika, WC-a, dnevnog boravka s kuhinjom i blagavaonom, dvije sobe i dvije kupaonice, balkona, te dva mjesta u podzemnoj garaži.

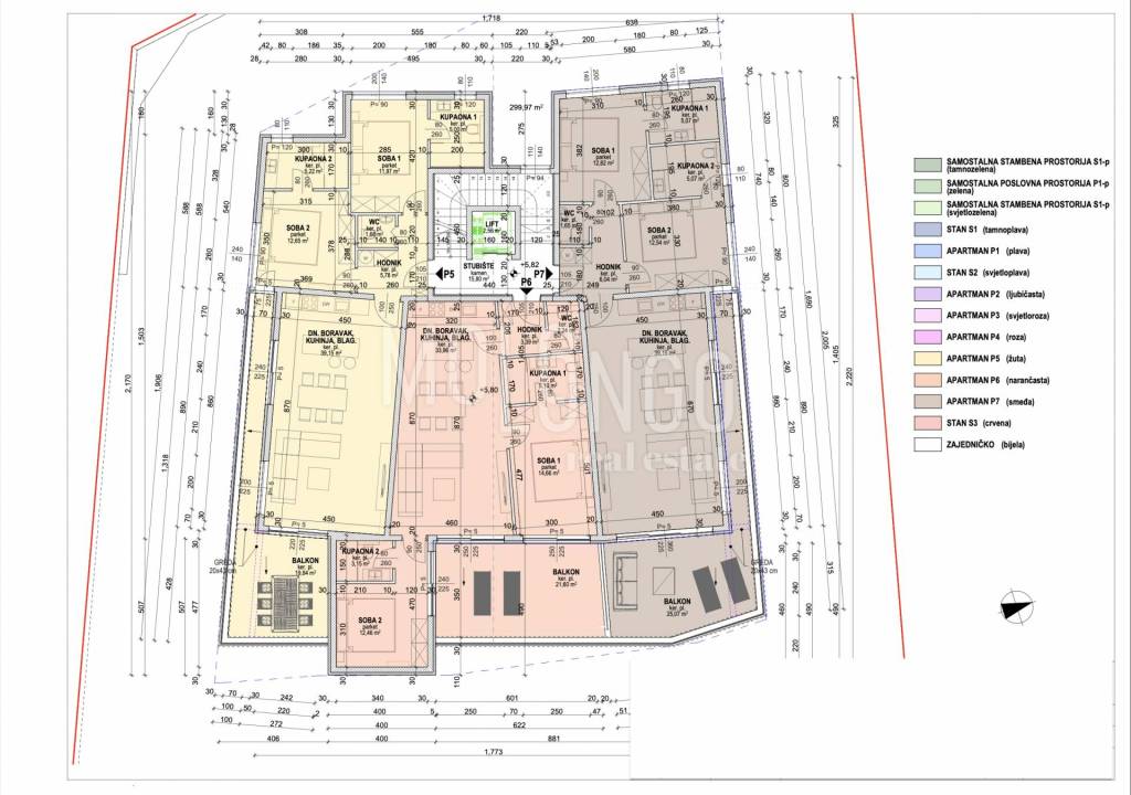
STAN P5
• 2 spavaće sobe, 2 kupaonice, 1 WC
• ukupna površina stana s pripadcima: 129.39 m2
• neto površina stana s pripadcima: 101.29 m2
• unutarnja površina stana: 81.45 m2
• balkon: 19.84 m2
• 2 garažna parkirna mjesta PM 9, PM 20: 13.14 m2, 13.25 m2
• spremište BIC 1: 1.71 m2

OPREMA

• Sustav grijanje i priprema tople vode putem dizalica topline

• Vrhunska aluminijska stolarija

• Električno pokretane aluminijske žaluzine

• Vrhunske sanitarije

• Protuprovalna ulazna vrata

• Lift

• Zajednički bazen

Opatija, biser Jadrana, predstavlja jedno od najtraženijih i najpoželjnijih mjesta za život i odmor u Hrvatskoj. Njezina neodoljiva kombinacija prirodne ljepote, bogate povijesti i arhitekture, te modernih sadržaja čini je zaista izvanrednom i očaravajućom destinacijom.



U cijenu je uključen PDV 25%, kupac je oslobođen plaćanja poreza na promet nekretnina. U slučaju kupovine na firmu registriranu u Hrvatskoj, moguć je povrat PDV-a nakon kupoprodaje.

Izvrsna nekretnina vrijedna pažnje.

Za više informacija i razgledavanje, kontaktirati agenta.

ID CODE: 2870

Filip Popović
Suradnik u procesu obuke
Mob: +385 91 9722 244
Tel: +385 51 858 544
E-mail: filip.popovic@mololongorealestate.com
www.mololongorealestate.com
Značajke
Vrsta
Stan
Ugovor
Prodaja
Kat
2 kat
Katovi zgrade
3
Dizalo
Da
Površina
101 m²
Prostorije
3
Spavaće sobe
2
Kupaonice
2
Balkon
Da
Terasa
Ne
Garažno mjesto, parkirna mjesta
1 u garaži, 2 na zajedničkom parkingu
Informacije o cijeni
Cijena
€ 685.000
Cijena po m²
6.782 €/m²
Energetska učinkovitost
  • Energetski certifikat

    Neklasificirano
Tlocrt
Otkrijte svaki kutak nekretnine
+25
Dodatne mogućnosti

Obratite se oglašivaču

Ili