map icon

Četverosobni stan novo, prvi kat, Vodice

Vodice
€ 300.440
4
88 m²
1
1
Terasa

Bilješka

Oglas ažuriran 01. 04. 2026.
Opis

referenca: 345-1

Srima - stanovi u novogradnji, prvi red do mora

Novi projekt, dovršetak i useljenje 2023.

Prodaju se stanovi u novogradnji na odličnoj lokaciji na Srimi.
Ukupno osam stanova.
Stanovi u prizemlju imaju pripadajući dio vrta 78-99m2, dok stanovi (penthouse) na drugom katu imaju prostrane krovne terase.

PRIZEMLJE:

SJ1 - PRODANO
- kuhinja, dnevni boravak i blagovaonica open space koncepta, dvije spavaće sobe, kupaonica, terasa, vrt (78m2), parkirno mjesto

Ukupna površina = 154,51 m2
Ukupna korisna površina = 79, 66 m2
Cijena = 294 742, 00

SJ2 - kuhinja, dnevni boravak i blagovaonica open space koncepta, dvije spavaće sobe, dvije kupaonice, terasa, vrt (98,33m2), parkirno mjesto

Ukupna površina = 189, 96 m2
Ukupna korisna površina = 98, 30 m2
Cijena = 363 710, 00 - PRODANO




PRVI KAT

SJ3 - kuhinja, dnevni boravak i blagovaonica open space koncepta, dvije spavaće sobe, kupaonica, toalet, terasa, parkirno mjesto

Ukupna površina = 87,52 m2
Ukupna korisna površina = 75,11 m2
Cijena = 300 440, 00 - PRODANO

SJ4 - PRODANO
- kuhinja, dnevni boravak i blagovaonica open space koncepta, dvije spavaće sobe, kupaonica, toalet, terasa, parkirno mjesto

Ukupna površina = 81,41 m2
Ukupna korisna površina = 69,95 m2
Cijena = 279 800, 00

SJ5 - PRODANO
- kuhinja, dnevni boravak i blagovaonica open space koncepta, dvije spavaće sobe, kupaonica, terasa, parkirno mjesto

Ukupna površina = 71,73 m2
Ukupna korisna površina = 60,84 m2
Cijena = 231 192, 00

SJ6 - PRODANO
- kuhinja, dnevni boravak i blagovaonica open space koncepta, dvije spavaće sobe, dvije kupaonice, terasa, parkirno mjesto

Ukupna površina = 85,31 m2
Ukupna korisna površina = 73,94 m2
Cijena = 280 792,00




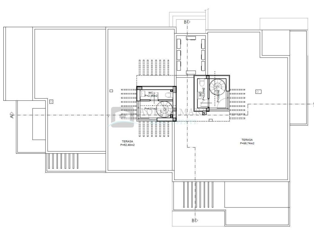
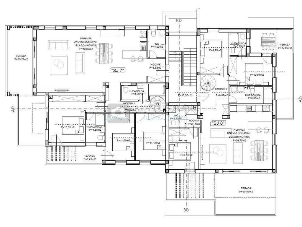
DRUGI I TREĆI KAT - PENTHOUSE

Penthouse se prostire na dvije etaže - drugi i treći kat.
Na drugome katu se nalazi stan, dok je na trećem katu privatna krovna terasa s toaletom.

SJ 7 - kuhinja, dnevni boravak i blagovaonica open space koncepta (53,02 m2), tri spavaće sobe, dvije kupaonice, toalet, spremište, tri terase (25,22 m2+ 8,40 m2+ 62,48m2), parkirno mjesto

Ukupna površina = 232,15 m2
Ukupna korisna površina = 183,77 m2
Cijena = 735 080, 00

SJ8 - kuhinja, dnevni boravak i blagovaonica open space koncepta (34,75 m2), tri spavaće sobe, dvije kupaonice, toalet, spremište, tri terase ( 30,56 m2+ 17,82 m2+ 98,74 m2), parkirno mjesto

Ukupna površina = 253,95 m2
Ukupna korisna površina = 183,74 m2
Cijena = 716 586,00

Za dodatne informacije i dogovor oko razgledavanja nekretnine, slobodno nas kontaktirajte.

Interni ID 345-1
Ako želite znati više, možete razgovarati s Zvonimir Silov.
Značajke
Vrsta
Stan
Ugovor
Prodaja
Kat
1 kat
Površina
88 m²
Prostorije
4
Spavaće sobe
2
Kupaonice
1
Namješteno
Ne
Terasa
Da
Informacije o cijeni
Cijena
€ 300.440
Cijena po m²
3.414 €/m²
Energetska učinkovitost
  • Godina izgradnje

    2022
  • Stanje

    Novo / U izgradnji
  • Energetski certifikat

    Neklasificirano
Otkrijte svaki kutak nekretnine
+11
Dodatne mogućnosti

Obratite se oglašivaču

Ili