Dvosobni stan novo, Mušalež - Varvari, Poreč

€ 307.760
2
76 m²
2
Da
Balkon

Bilješka

Oglas ažuriran 03. 02. 2026.
Opis

referenca: 101200-739

POREČ, STAN, NOVOGRADNJA SAMO 1.3 KM OD PLAŽE I CENTRA GRADA

POREČ, STAN, NOVORADNJA SAMO 1.3 KM OD MORA I PLAŽE

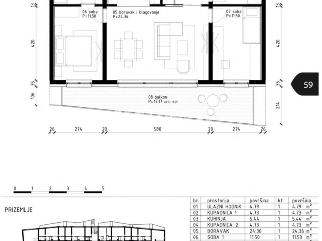
Prodaje se stan u Poreču, 2,5-sobni (2S+DB), površine NETTO korisne površine 76.94 m2 (BRUTTO površine 86.63 m2) m2, smješten u visokom prizemlju stambene zgrade. Ovaj stan nudi modernu arhitekturu i visok standard izgradnje.
Stan se sastoji od ulaznog hodnika, kuhinje sa blagavaonom i dnevnim boravkom otvorenog tipa, dvije spavaće sobe, dvije kupaonice, prostrane i osunčane terase površine 17.17 m2.

Stanu pripada i ostava te parkirno mjesto u podzemnoj garaži.
Smješten na mirnoj lokaciji, stan ima orijentaciju prema jugozapadu, što osigurava obilje prirodnog svjetla i prekrasan pogled. Blizina mora i prirode čini ovu nekretninu idealnom za one koji cijene život u harmoniji s okruženjem, te samo 1.3 km od mora i plaže.

Izgradnja te materijali koji se upotrebljavaju je na najvišoj razini.

Fasadni sustav kamena vuna debljine 15 cm, troslojni Weitler parketi, moderna keramikq velikog formata, sustav grijanja/hlađenja Daikin dizalica topline parapetno, lift, vanjska stolarija kombinacija drvo/aluminij sa troslojnim staklom, unutarnaj stolarija drvo, protuprovalna i protupožarna vrata, balkonska ograda kaljeno staklo 2x10 mm.

Upravljanje i održavanje zgrade biti će omogućeno od strane investitora.

Poreč, kao prestižna lokacija na Jadranu, nudi bogatstvo kulturnih i prirodnih atrakcija, uz blizinu svih potrebnih sadržaja za svakodnevni život. Stan je savršeno pozicioniran za uživanje u svim blagodatima koje ova regija nudi.

Za više informacija ili dogovor za razgledavanje, slobodno nas kontaktirajte. Iskoristite priliku za posjedovanje nekretnine na jednoj od najpoželjnijih lokacija na Jadranu.
Ako želite znati više, možete razgovarati s Kristijan Fraj.
Značajke
Vrsta
Stan | Prosječna klasa nekretnine
Ugovor
Prodaja
Katovi zgrade
3
Dizalo
Da
Površina
76 m²
Prostorije
2
Spavaće sobe
2
Kupaonice
2
Balkon
Da
Terasa
Ne
Grijanje
Centralno, radijatori
Informacije o cijeni
Cijena
€ 307.760
Cijena po m²
4.049 €/m²
Energetska učinkovitost
  • Godina izgradnje

    2025
  • Stanje

    Novo / U izgradnji
  • Grijanje

    Centralno, radijatori
  • Energetski certifikat

    Certifikacija je u tijeku
Otkrijte svaki kutak nekretnine
+14
Dodatne mogućnosti

Obratite se oglašivaču

Ili