Građevinsko zemljište za Prodaja

€ 52.000
612 m²

Bilješka

Oglas ažuriran 05. 02. 2026.
Opis

referenca: ZG-1218

Istra, Barban, Pavlići, građevinsko zemljište 612 m2, idejni projkat za prizemnicu s bazenom, #prodaja

Građevinsko zemljište na prodaju smješteno je u Barbanu, mjesto Pavlići. Ova parcela predstavlja izvrsnu priliku za realizaciju raznih investicijskih planova zahvaljujući svojoj građevinskoj namjeni. Lokacija u Barbanu pruža prednost blizine svih sadržaja ovog područja, što je posebno važno za one koji traže parcelu na atraktivnoj i pristupačnoj lokaciji.

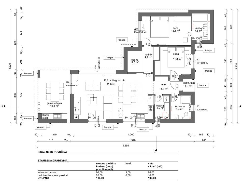
Zemljište je kategorizirano kao građevinsko, što omogućuje izgradnju objekata sukladno važećim prostornim planovima i propisima. Smještaj u ovoj regiji nudi odličnu priliku za izgradnju stambenih objekata, razvoj turističkih kapaciteta ili druge investicijske projekte u skladu s urbanističkim planom. Napravljen je idejni projekat za prizemnicu ukupne netto površine od 116m2 i bazen od 24m2. Priključak vode plaćen.

Ova nekretnina je zanimljiva za različite profile kupaca, bilo da se radi o privatnim investitorima, tvrtkama ili osobama koje žele razvijati vlastiti projekt na području Barbana. Pozivamo vas da razmotrite ovu ponudu te istražite sve mogućnosti koje nudi ova parcela za ostvarenje vaših planova.

#prodaja
Značajke
Ugovor
Prodaja
Vrsta
Građevinsko zemljište
Površina
612 m²
Ostale karakteristike
  • Priključak za vodu
Informacije o cijeni
Cijena
€ 52.000
Cijena po m²
85 €/m²
Otkrijte svaki kutak nekretnine
+6
Dodatne mogućnosti

Obratite se oglašivaču

Ili